Ai trong chúng ta cũng mơ ước sẽ có một căn nhà dành riêng thật đẹp cho tổ ấm của mình. Với sự chuyển mình của nghành kiến trúc hiện nay nhà ở không chỉ cầu che mưa che nắng như trước kia nữa mà hiện nay còn đáp ứng cả nhu cầu thẩm mĩ của con người. Cũng chính vì điều này mà đã có rất nhiều gia đình tìm đến lối thiết kế biệt thự. Bài viết của chúng tôi hôm nay sẽ giúp quý khách có được những mẫu biệt thự 10x25m đẹp đến nao lòng các chủ đầu tư trên cả nước.
Hình ảnh 3D những mẫu nhà biệt thự 10x25m đẹp nao lòng

Sự thoáng đãng và hiện đại giúp căn biệt thự này trở nên cuốn hút các chủ đầu tư. Khi các gia chủ lựa chọn màu sơn ngoại thất và chất liệu khác nhau, từ lan can sắt tĩnh điện đến hệ thống kính cường lực. Các vật liệu ấy đã được lựa chọn để tạo ra một sự sắp xếp kiến trúc tuyệt vời cho căn biệt thự này, kính cường lực cao cấp được lựa chọn cho cửa trước và bệ cửa sổ, lan can được sử dụng với sắt tĩnh điện sơn màu đen chống han rỉ, xỉn màu bền đẹp cùng thời gian.
Màu sơn ngoại thất được lựa chọn là gam màu tươi sáng đặt trong sự kết hợp rất hài hòa. Chọn màu sơn phù hợp nó giống như việc bạn khoác một chiếc áo đẹp phù hợp với mình, với màu sơn này dù đặt trong thời tiết lạnh giá hay nắng nóng, ngôi nhà của bạn vẫn có cảm giác dễ chịu, thoải mái. Hơn hết màu sơn trắng còn có khả năng ăn gian diện tích rất hiệu quả.

Ngoại thất của mẫu thiết kế biệt thự mini 10x25m có vị trí được xem là đẹp khi hướng ra mặt phố chính. Mặt tiền của căn biệt thự được ví như bộ mặt của gia chủ, vì vậy nó phải được thiết kế sao cho thật sang trọng, lịch lãm và độc đáo. Cái hay của mẫu thiết kế này là phía chân tường được thiết kế màu xám khó có thể bám bụi và được phủ bóng trơn dễ vệ sinh và không lo lắng dễ bị hư hại do ánh nắng mặt trời, ẩm mốc... Bởi lẽ mặt đá rất dễ rửa sạch.
Trên khu vực tầng 2 xa với khói bụi nên được lựa chọn là gam màu trắng sáng. Nó sáng bóng hơn bao giờ hết tạo nên vẻ ngoại thất rất bắt mắt của mẫu thiết kế biệt thự mini 2 tầng phù hợp ở cả nông thôn và thành phố. Sự hài hòa, đơn giản, tinh tế và nổi bật giúp cho ngôi biệt thự mini trở nên thu hút và ấn tượng mang đến một không gian nhà sang trọng và lôi cuốn tất cả mọi người.

Bề thế hơn, sang trọng hơn, chi phí cao hơn đó là những gì chúng tôi muốn giới thiệu đến các chủ đầu tư về mẫu biệt thự cổ điển pháp này. Sang trọng, bề thế từ bên ngoài đến bên trong của ngôi nhà. Với sự đẳng cấp này những căn biệt thự này thường dành cho những gia chủ có tiềm lực kinh tế mạnh. Vì mỗi m2 xây dựng của căn biệt thự cổ điển có thể lên đến 9.000.000 – 10.000.000 VNĐ/m2. Nên khi hoàn thiện căn biệt thự, sắm sửa nội thất trang hoàng thì căn biệt thự theo phong cách này có chi phí khá lớn. Tuy nhiên cha ông ta xưa nay đã có câu rằng “ Đắt sắt ra miếng” là cũng có cơ sở và đúng với mọi thời đại. Khi bạn bỏ ra một số tiền lớn cho căn biệt thự này sẽ mang đến cho gia đình bạn một căn biệt thự uy nghi, lộng lẫy, khẳng định được bề thế, đẳng cấp của gia đình.

Biệt thự mái thái ở mức chi phí phù hợp với túi tiền của nhiều chủ đầu tư. Rõ ràng chúng ta nhận thấy ở mẫu thiết kế này là sự độc đáo từ khuôn viên bên ngoài, cả hệ thống hàng dào cũng đủ để bạn phải ngỡ ngàng. Mỗi trụ cổng được đặt một bóng điện tròn, chắc chắn khi về đêm căn nhà của gia đình bạn sẽ trở lên lung linh và thu hút mọi ánh nhìn.

Bên trong căn biệt thự này sẽ đáp ứng không chỉ nhu cầu sử dụng, nhu cầu sinh hoạt mà còn cả nhu cầu thẩm mĩ ở mức tối ưu nhất. Vẻ đẹp hiện đại được thể hiện từ một căn phòng khách hiện đại, một căn phòng bếp đầy đủ tiện nghi và những phòng ngủ gọn gàng, thanh lịch.
Phối cảnh bản vẽ, mặt bằng tổng thể nội thất mẫu thiết kế biệt thự 10x25m

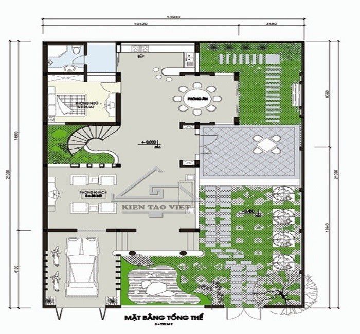
Bạn là người không có kinh nghiệm trong lĩnh vực xây dựng, bạn muốn tìm hiểu công năng cụ thể của căn biệt thự, bạn có thể lên ý tưởng qua mặt bằng tổng thể tầng trệt của một căn biệt thự có diện tích 10x25m của chúng tôi trên đây. Tại mặt bằng tổng thể chi tiết này bạn có thể dễ dàng nhận thấy tại tầng trệt ngoài khu vực sân vườn ở phía trước và sau thì còn được thiết kế với một phòng khách, một phòng bếp thông với phòng ăn và 1 phòng ngủ dành cho ông bà để việc sinh hoạt được diễn ra thuận lợi khi không phải di chuyển lên tầng 2 khó khăn.

Nếu gia đình bạn có đông thành viên, bạn muốn tận dụng hết quỹ đất hiện có để xây dựng mà không cần đến khoảng sân vườn thì bạn có thể đến với mẫu thiết kế trên đây của chúng tôi. Tại bản vẽ này chúng ta có thể dễ dàng nhận thấy căn biệt thự phát huy tối đa công năng sử dụng với mặt bằng tầng trệt được xây dựng với 2 phòng ngủ, 1 phòng khách thông với phòng bếp gọi chung là phòng sinh hoạt chung. Tại tầng trệt này cũng được thiết kế thêm với 1 nhà vệ sinh chung. Rõ ràng chỉ với tầng trệt của căn biệt thự 10x25m ta đã thấy nó phát huy được tối đa công năng sử dụng.

Bạn lựa chọn một căn biệt thự theo phong cách tân cổ điển thì ngoài vẻ đẹp bên ngoài thì nội thất bên trong cũng là điểm nhấn đáng chú ý khiến nhiều chủ đầu tư lựa chọn theo phong cách này. Căn phòng ngủ tại tầng trệt hội tụ đầy đủ vẻ đẹp để mang đến một không gian sống lý tưởng, trong một sự kết hợp hài hòa. Một chiếc giường êm ái, một cây đèn để bàn, một cây đèn chùm, một bức tranh và một chiếc ghế đọc thư thái là những nét đẹp của căn phòng ngủ theo phong cách tân cổ điển mà đã khiến nhiều chủ đầu tư không thể lướt qua mẫu thiết kế này.

Bên cạnh sự sang trọng của một phong cách tân cổ điển thì bạn có thể tham khảo một mẫu thiết kế theo phong cách bề thế, xa hoa đó chính là không gian của phong cách cổ điển. Với vẻ bề ngoài tỉ mỉ trên từng đường phào chỉ thì rõ ràng để tạo ra sự cân đối hài hòa thì bên trong cũng đòi hỏi phải có sự thiết kế với những món đồ nội thất đắt tiền, sang trọng. Toàn bộ không gian này đã gây ấn tượng cho người nhìn bằng một bộ salon màu nâu, cây đèn chùm, đèn trang trí chậm chất cổ kính, cùng với một số vật dụng trang trí khác đã khiến cho căn phòng khách cổ điển này đã làm siêu lòng ngay cả những chủ đầu tư khó tính nhất.
Xây dựng số nơi bạn có thể trao gửi ước mơ
Bạn đã có cho mình một ý tưởng tuyệt vời về căn biệt thự trong tương lai. Tuy nhiên để biến căn biệt thự ấy sớm trở thành hiện thực thì đòi hỏi bạn cần phải tìm được một nhà thầu uy tín trên thị trường xây dựng. Để làm được điều này bạn cần có sự tìm hiểu kĩ lưỡng. Đặc biệt những nhà thầu tiếng tăm đều nằm trong danh mục những nhà thầu của xây dựng số.

Xây dựng số - sàn giao dịch thương mại điện tử về lĩnh vực xây dựng tự hào là sàn giao dịch lớn nhất là cầu nối trung gian giữa các nhà thầu và chủ đầu tư ở tất cả các tỉnh thành trên cả nước. Với hệ thống nhà thầu xây dựng với phương châm chữ tín và chất lượng, chi phí xây dựng hợp lý, có cam kết bảo hành đã mang đến niềm tin tuyệt đối cho muôn ngàn công trình thành công trong nhiều năm qua. Tất cả những nhà thầu của xây dựng số đều có hồ sơ năng lực minh bạch, rõ ràng. Tất cả đều mong muốn mang đến sự hài lòng cho các chủ đầu tư, điều này xây dựng số đã làm thành công trong suốt những năm qua.
Với những chia sẻ trên đây của chúng tôi về mẫu biệt thự 10x25m. Hi vọng sẽ giúp các chủ đầu tư phần nào trong quá trình tìm hiểu xây dựng biệt thự
của gia đình mình trong tương lai.


































