Xây dựng biệt thự trong những năm gần đây rất phát triển không chỉ ở khu vực thành phố mà còn xuất hiện cả ở khu vực nông thôn. Nhu cầu xây dựng nhiều ắt nhu cầu tìm kiếm mẫu thiết kế, nhà thầu, kiến trúc sư... cũng sẽ xảy ra. Hiểu được điều này bài viết của chúng tôi hôm nay sẽ giúp các chủ đầu tư có những kiến thức, những thông tin cơ bản về mẫu biệt thự 6x15m sang trọng, hiện đại nhất hiện nay.
Hình ảnh 3D mẫu biệt thự 6x15m đẹp nhất năm 2021
Quý khách không mất quá nhiều thời gian, công sức để tìm kiếm được một mẫu thiết kế biệt thự 6x15m mà chỉ cần bỏ chút thời gian ngắm nhìn những mẫu biệt thự đẹp chúng tôi giới thiệu dưới đây là các chủ đầu tư đã có cho mình được những ý tưởng cho riêng mình, bởi những mẫu thiết kế mà chúng tôi cập nhật đều là những mẫu thiết kế trong bộ sưu tập mới nhất năm 2021.

Trên đây là mẫu thiết kế biệt thự 6x15m nhỏ nhắn nhưng toát lên sự hiện đại, trẻ trung vô cùng. Khác hoàn toàn so với những mẫu thiết kế nhà ống mái bằng 2 tầng đơn sơ như trước kia. Ở mẫu thiết kế biệt thự 6x15m này ta thấy ở đó là cả một sự sáng tạo, bắt mắt ngay từ không gian ngoại thất của căn biệt thự. Tầng trệt của ngôi nhà được thiết kế với hệ thống kính trong suốt khung nhôm tĩnh điện màu nâu trầm nổi bật. Nhưng có lẽ điểm nhấn nổi bật ở đây lại là sự phá cách ở khu vực tầng 2 của căn biệt thự.

Có lẽ chúng ta sẽ nghĩ rằng căn biệt thự 6x15m chỉ phù hợp với những ngôi biệt thự có kiểu dáng hiện đại mái bằng. Điều này không hẳn là như vậy vì mẫu thiết kế biệt thự nhà phố cổ điển trên đây là minh chứng. Chúng ta nghĩ rằng phong cách cổ điển chỉ hợp những tòa lâu đài nguy nga, tráng lệ, đồ sộ. Nhưng rõ ràng chúng ta thấy sự xuất hiện của căn biệt thự mini này đã làm lu mờ các căn nhà xung quanh bởi sự nổi bật từ ngay bộ cổng màu đồng đậm chất cổ điển. Những đường nét hoa căn tinh sảo dưới bàn tay khéo léo tinh tế của những người thợ lành nghề, chuyên nghiệp. Căn biệt thự này đã lấy màu trắng làm chủ đạo tạo nên vẻ đẹp vừa cổ điển vừa nhã nhặn, tinh tế.

Trang trọng, hiện đại là những gì chúng tôi muốn giới thiệu đến các chủ đầu tư về mẫu biệt thự 6x15m này của chúng tôi. Với diện tích nhỏ nhưng vẫn toát lên thần thái của một phong cách rất thông thoáng, hiện đại. Ngay từ phía cổng chúng ta đã để lại dấu ấn bằng một mẫu cổng sắt màu nâu trầm bền đẹp cùng thời gian. Có lẽ điểm nhấn của căn biệt thự này chính bởi hệ mái ngói được thiết kế kiểu dáng chữ A xếp chồng lên nhau tạo sự ấn tượng, bất ngờ.
Lựa chọn những sản phẩm nội thất thông minh đang là xu hướng của những chủ đầu tư thông thái. Để bắt nhịp với sự hiện đại của một thị trường nội thất phát triển không ngừng. Với căn biệt thự 6x15m để cơi nới không gian thì bạn hoàn toàn có thể lựa chọn những sản phẩm nội thất thông minh ở khắp các phòng chức năng như bàn ghế thông minh, giường ngủ thông minh, tủ bếp thông minh... Hãy thử xem sao nhé chắc chắn sẽ khiến bạn hài lòng.

Bạn cũng phân vân rằng liệu căn biệt thự chỉ với diện tích 6x15m có xây dựng được một căn biệt thự theo phong cách tân cổ điển hay không? Mẫu biệt thự trên đây của chúng tôi là đáp án cho câu hỏi của bạn. Bạn hoàn toàn có thể sở hữu căn biệt thự chỉ với diện tích 6x15m theo phong cách tân cổ điển. Sự hòa quyện giữa một vẻ đẹp cổ điển với vẻ đẹp hiện đại đã làm nên sự tinh tế, mới lạ cho phong cách này. Màu trắng sáng chính là tone màu chủ đạo cho căn nhà. Điều này sẽ giúp phần nội thất bên trong căn nhà sẽ càng nổi bật trên một nền không gian trắng sáng.
Phối cảnh bản vẽ biệt thự 6x15m chi tiết, cụ thể

Bản vẽ cụ thể trên đây của chúng tôi là bản vẽ chi tiết cho căn biệt thự 6x15m được xây dựng theo phong cách tân cổ điển với không gian là 3 tầng. Cụ thể khu vực tầng trệt được thiết kế với không gian đầu tiên chính là phòng khách và 1 phòng ngủ cho người lớn tuổi nhất. Trên tầng 2 được bố trí thông tầng có 2 phòng ngủ, cuối cùng là tầng 3 được thiết kế với phòng thờ ở khu vực này để đảm bảo sự yên tĩnh, thanh tịnh không bị ảnh hưởng bởi không gian sinh hoạt chung. Ngoài ra khu vực sân thượng bạn có thể thiết kế làm một khu vườn xanh nho nhỏ để dành thời gian cuối ngày thư giãn bên không gian xanh giữa một thành phố đông đúc, bon chen khói bụi.

Để cụ thể hơn cho một bản vẽ chỉ ở lầu 1 của căn biệt thự mái thái theo phong cách hiện đại. Nếu gia đình bạn đông thành viên thì ở khu vực tầng 1 bạn hoàn toàn có thể lấy mẫu thiết kế trên đây của chúng tôi với 2 phòng ngủ được bố trí rất hợp lý, hài hòa. Chỉ với diện tích 6x15m nhưng bạn có thể thiết kế một phòng sinh hoạt chung bao gồm cả phòng khách và phòng bếp được nối liền điều này càng khiến cho không gian thêm phần mở rộng, khi không phải vướng bức tường vách ngăn bí bách.
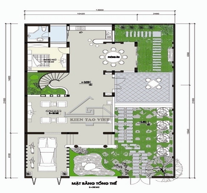
Mặt bằng tổng thể nội thất biệt thự 6x15m

Căn biệt thự chỉ với diện tích 6x15m đòi hỏi bạn cần có sự sắp xếp nội thất một cách hài hòa, hợp lý và cần nắm được một số ý tưởng thiết kế nội thất tiết kiệm không gian của chúng tôi theo ý tưởng lấy từ phong cách thiết kế nội thất của phong cách thiết kế nội thất từ nước Nhật như sau:

Ý tưởng bắt nguồn từ những lối thiết kế từ những căn hộ có diện tích nhỏ lấy ý tưởng thông minh từ việc sắp xếp đồ đạc trong các phòng chức năng giúp tiết kiệm không gian một cách tối ưu nhất, khiến cho tất cả các phòng chức năng tuy nhỏ nhưng luôn ngăn nắp, gọn gàng và thoáng rộng để vui hưởng cuộc sống một cách trọn vẹn nhất.

Đầu tiên là ý tưởng thiết kế các sản phẩm nội thất thông minh như cầu thang kiêm hộc chứa đồ tiện lợi điều này đã khiến việc sắp xếp nội thất trong gia đình bạn trở lên dễ dàng hơn bao giờ hết. Với thiết kế vô cùng sáng tạo này, căn biệt thự sẽ thêm phần gọn gàng, ngăn nắp. Thứ 2 là bạn có thể lựa chọn bàn làm việc siêu thông minh có thể gấp gọn gàng sau khi làm việc. Không những giúp tiết kiệm không gian mà chiếc bàn nhỏ xinh còn tạo cảm giác thoải mái, hưng phấn để công việc đạt hiệu quả cao hơn.

Thứ 3 là giá trượt sách độc đáo thông minh cũng góp phần tiết kiệm không gian một cách đáng kể cho căn phòng nhỏ trong căn biệt thự với giá kệ kiêm vách trang trí thông minh. Cuối cùng là bạn có thể lựa chọn một chiếc giường ngủ thông minh kiêm hộc tủ đựng đồ.
Ngoài việc lựa chọn những sản phẩm nội thất thông minh bạn có thể tiết kiệm không gian bằng cách lựa chọn những vật liệu bằng kính cũng góp phần mở rộng không gian một cách đáng kể. Ngoài ra những vật liệu kính ở cửa chính, cửa sổ, lan can còn góp phần mang đến một vẻ đẹp thẩm mỹ tuyệt vời cho vẻ ngoài ngoại thất.
Xác định phù hợp công năng sử dụng các phòng chức năng cũng là một việc giúp bạn sở hữu một không gian không bị chật hẹp. Đó là việc bạn xác định rõ số lượng thành viên trong gia đình của bạn có bao nhiêu thành viên để từ đó xây dựng căn biệt thự với số phòng ngủ phù hợp, tránh tình trạng thừa thãi mà căn phòng lại bị chật hẹp.

Đôi khi căn biệt thự có trở lên rộng rãi hay không còn nhờ vào chính việc sắp xếp, thói quen của từng thành viên trong gia đình. Chúng ta cần xây dựng một thói quen tốt ngăn nắp gọn gàng từ những người lớn làm gương cho con cháu để không gian sống của gia đình luôn được gọn gàng, căn biệt thự tuy nhỏ nhưng luôn sạch sẽ, thoáng đãng.
Sàn giao dịch thương mại điện tử xây dựng số

Khi bạn đã hoàn toàn có được những ý tưởng về mẫu thiết kế biệt thự 6x15m. Việc làm tiếp theo là bạn tính toán sao cho lựa chọn được một nhà thầu xây dựng uy tín, một kiến trúc sư tài năng. Điều này hoàn toàn có thể khi bạn lựa chọn sàn giao dịch điện tử xây dựng số.
Tại đây sàn sẽ cung cấp đến các chủ đầu tư những đơn vị nhà thầu chuyên nghiệp ở các tỉnh thành trên cả nước. Những nhà thầu tại sàn đều là những nhà thầu có kinh nghiệm lâu năm, có các công trình biệt thự xây dựng nhận được sự tin tưởng tuyệt đối từ khách hàng, có hồ sơ, giấy phép rõ ràng, minh bạch nên bạn có thể đặt niềm tin tuyệt đối.
Xem thêm


































