Có rất nhiều khách hàng gửi câu hỏi đến công ty, cụ thể là xây dựng nhà 2 tầng phong cách hiện đại với khoảng chi phí 500 triệu có được không? Chi phí 500 triệu hoàn thiện ngôi nhà có diện tích sử dụng bao nhiêu m2? Liệu các phương án thiết kế xây dựng nhà 2 tầng giá rẻ chỉ 500 triệu trên internet có thật không? Thì chúng tôi xin trả lời, xây nhà phố 2 tầng 500 triệu là điều hoàn toàn có thể. Để giải đáp những thắc mắc đó, mời mọi người hãy cùng chúng tôi tìm hiểu quá trình xây dựng nhà 2 tầng hiện đại có không gian tiện nghi với giá hoàn thiện chỉ 500tr ngay sau đây. Phương án thiết kế nhà đẹp của chủ đầu tư tại Bình Dương sẽ chứng minh và trả lời cho bài toán khó đó, cùng đón xem.
*Thông tin phương án thiết kế nhà 2 tầng:
- Diện tích xây dựng: 64m2.
- Địa điểm thi công: Bình Dương.
- Chi phí hoàn thiện phần thô: Khoảng 500 triệu.
- Kiến trúc: Nhà 2 tầng mái bằng phong cách hiện đại.
Xây nhà 2 tầng hiện đại với chi phí thấp chỉ 500 triệu
Thi công nhà 2 tầng giá rẻ 500 triệu là điều không phải dễ dàng, nó phụ thuộc rất nhiều yếu tố khác nhau. Như bạn cũng biết, mỗi người đều có sở thích, nhu cầu, kinh tế, diện tích đất và độ đầu tư ngôi nhà khác nhau nên chi phí hoàn thiện một ngôi nhà có phần không giống nhau. Theo bảng giá chung của các công ty xây dựng tại Việt Nam, thì 500 triệu có thể hoàn thiện phần thô cho những ngôi nhà có diện tích sàn từ 55 – 65m2. Với tổng diện tích đất 64m2 của phương án này để xây dựng ngôi nhà phố 2 tầng tiện nghi là điều hoàn toàn có thể. Một số tin tức xây dựng nhà 2 tầng 500 triệu trên inernet thiếu tính thực tế, không chứng minh được độ thiết thực của phương án thiết kế cũng như độ chuyên môn.

Để xây dựng căn nhà phố đẹp hiện đại bằng chi phí ít ỏi đó, các kiến trúc sư đã ngồi lại với nhau và ra phương án thiết kế nhà 2 tầng hiện đại này. Kiểu dáng đơn giản, giảm thiểu các chi tiết trang trí, sử dụng các vật liệu nội thất với giá hợp lý sẽ giúp chủ nhà tiết kiệm được phần nào đó trong quá trình xây dựng. Qua đó công năng bản vẽ bên trong nhà phố 2 tầng này cũng được các kiến trúc sư lâu năm kinh nghiệm tận dụng tối đa không gian, vừa tiết kiệm khoảng chi phí, vừa đem lại không gian thuận tiện cho gia đình sinh sống.
Nhìn vào mặt tiền phía trước ngôi nhà bạn sẽ thấy phong cách thiết kế này được trang trí nhẹ nhàng, đơn giản nhưng không kém phần tinh tế. Đối với các chi tiết trang trí, bạn hoàn toàn có thể đầu tư hơn khi nguồn kinh tế đã ổn định sau này. Lựa chọn màu xám ghi cho sơn tường, phối hợp hài hòa cùng màu trắng sữa từ các chi tiết nhỏ khá bắt mắt. Phía trước dành riêng khoảng diện tích nhỏ làm sân để xe hơi, bao quanh là cổng bê tông + sắt thép khá chắc chắn và an toàn. Là người yêu thích cây cảnh, nên chủ đầu tư đã yêu cầu kiến trúc sư thiết kế tận dụng sân thượng rộng rãi để trồng các loại cây tiểu cảnh. Ngoài trồng cây xanh, rau sạch, sân thượng còn là nơi lý tưởng để các thành viên trong nhà nghỉ ngơi hay hóng mát vào buổi chiều.

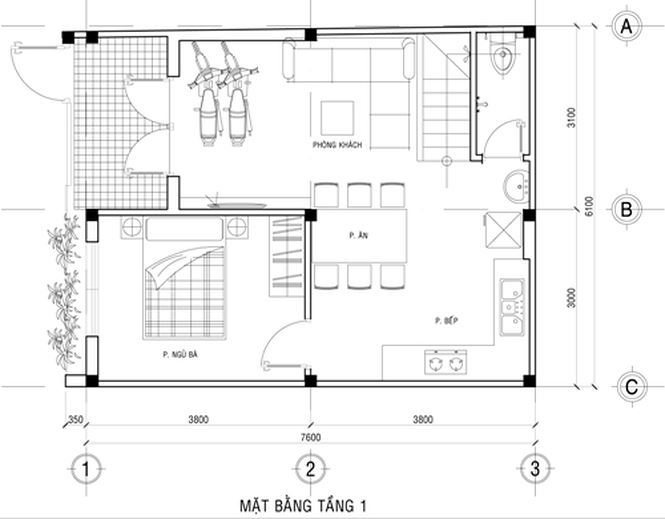
Tầng 1 thiết kế: Sân để xe riêng, phòng khách, phòng bếp liền kề không gian ăn uống, phòng ngủ, phòng vệ sinh.

Tầng 2 thiết kế: 2 Phòng ngủ riêng yên tĩnh, phòng vệ sinh, nơi giặt đồ cho cả gia đình, ban công, sân thượng.
Bản vẽ các căn phòng bên trong nhà phố 2 tầng này tận dụng triệt để, tuy chỉ có 64m2 nhưng vẫn đem lại sự thoải mái và tiện nghi cho gia đình sinh hoạt. Đối với những ngôi nhà 2 tầng diện tích nhỏ, bạn cần phải chú trọng việc bố trí công năng và cách trang trí nội thất trong không gian. Nên loại bỏ những nội thất không cần thiết, để tăng diện tích sử dụng và làm không gian trông rộng rãi hơn. Không nên mua quá nhiều đồ dùng không cần thiết, điều này khiến không gian sinh hoạt của bạn bị chật hẹp.
Nguồn tin: https://wedo.vn/
Có thể quý khách quan tâm => Thiết kế nhà 2 tầng 4x14m chi phí đầu tư 500 triệu


































