Những gia đình có tiềm lực mạnh về kinh tế, cuộc sống đủ đầy thường ưu tiên lựa chọn những mẫu xây dựng nhà biệt thự hiện đại để tận hưởng sự tiện nghi và khẳng định đẳng cấp của gia đình mình. Những mẫu biệt thự có thể là nguy nga đồ sộ, cũng có thể là nhỏ nhắn bắt mắt nhưng đều sở hữu vẻ đẹp ấn tượng, toát lên được sự sang trọng, bề thế, đáp mọi nhu cầu của gia đình. Trong phạm vi bài viết này của chúng tôi xin được giới thiệu đến các chủ đầu tư những mẫu nhà biệt thự 8x10m ấn tượng nhất hiện nay.
Hình ảnh 3D mẫu nhà biệt thự 8x10m ấn tượng nhất hiện nay

Không nổi bật bằng những đường nét sắc sảo, uốn lượn như phong cách cổ điển, không bề thế, lộng lẫy như phong cách tân cổ điển với mẫu biệt thự 8x10m này tự gieo vào lòng người sự nhẹ nhàng, tinh tế của một căn biệt thự mang phong cách hiện đại. Chúng ta phải thừa nhận với nhau rằng mặc dù được thiết kế theo phong cách hiện đại nhưng mẫu biệt thự này không hề đơn giản mà nó chính là cả một công trình sáng tạo.

Một căn biệt thự mái lệch có diện tích 8x10m với vẻ đẹp độc đáo, bắt mắt chắc chắn khiến cho chủ đầu tư nào ngang qua thôi cũng đã đủ say lòng. Kiểu dáng mái lệch đang rất hót trong những năm gần đây, nó xuất hiện sau những phong cách như mái bằng, mái thái nên độ hót của nó đang lan tỏa khắp cả nước.
Nhìn qua ngôi nhà ta thấy được sự chăm chút, tỉ mỉ trên từng đường phào chỉ đã tạo ra nét đẹp rất riêng cho phong cách này. Với xu hướng hiện đại theo phong cách đương đại mới nhất hiện nay. Không chỉ ở bề ngoài hoành tráng, bắt mắt mà khuôn viên bên trong các chủ đầu tư chũng phải choáng ngợp bởi sự nguy nga, lộng lẫy đặc biệt là ở mọi góc độ, mọi không gian. Tất cả để mang đến cho bạn và gia đình một không gian sống không những sung túc, tiện nghi và còn khẳng định đẳng cấp riêng của gia chủ.
Tuy nhiên có một điều lưu ý nhỏ khi xây dựng biệt thự mái lệch đối với các chủ đầu tư đó là phải thực sự chú trọng đến khâu làm móng nhà. Vì như chúng ta quan sát hệ thống mái lệch khác với phong cách mái bằng và mái thái ở chỗ chúng thường dồn trọng lực về một phía nhiều hơn nên móng chắc sẽ không có vấn đề gì nhưng nếu nền móng yếu dễ xảy ra hiện tượng sụt lún nên bạn cần đặc biệt chú ý điều này.

Bạn muốn sở hữu một căn biệt thự có nét đẹp cổ xưa cộng hưởng với cả vẻ đẹp hiện đại hôm nay thì có lẽ đây chính là sự lựa chọn cho những chủ đầu tư thích phong cách tân cổ điển. Ngôi nhà được thiết kế với 3 tầng duy nhất tầng 1 là đậm chất cổ điển theo lối thiết kế lộng lẫy, bề thế, chỉ nhìn qua thôi là chúng ta đã thấy một không gian quyền quý nơi tầng 1 khi không gian bao trùm là một màu vàng đồng vương giả, đặc biệt là phòng khách được bố trí bằng những bộ bàn ghế salon đắt tiền, dưới ánh điện lung linh, huyền ảo càng khiến căn biệt thự nổi bật với bất cứ ai khi đặt chân đến căn biệt thự này.

Thông thường khi lựa chọn biệt thự người ta thường nghĩ ngay đến sự cầu kì, tỉ mỉ bằng những đường nét hoa văn sắc sảo của phong cách cổ điển. Chi phí được xem là cao nhất về xây dựng m2 trong các phong cách biệt thự. Tuy nhiên chiêm ngưỡng căn biệt thự này chúng ta đã hiểu được phần nào lí do vì sao những căn biệt thự cổ điển thường có chi phí xây dựng cao. Bởi lẽ những căn biệt thự này đòi hỏi trình độ, kĩ thuật điêu luyện, tỉ mỉ, thời gian thi công lâu, hoa văn sắc sảo... Khi hoàn thiện mang đến một ngôi biệt thự xa hoa, lộng lẫy khẳng định được vị thế, đẳng cấp của gia chủ.
Phối cảnh bản vẽ căn biệt thự 8x10m2 ấn tượng nhất hiện nay.

Phối cảnh bản vẽ xây dựng nói chung, bản vẽ biệt thự 8x10m nói riêng là nền tảng quan trọng để xây dựng thành công một căn biệt thự kiên cố và mang tính thẩm mỹ cao. Với giá trị của một căn biệt thự thì không hề nhỏ nên việc nắm trong tay những kinh nghiệm có ảnh hưởng trực tiếp đến kết cấu của căn nhà là điều vô cùng quan trọng và cần thiết đối với mỗi chúng ta. Để có được một căn biệt thự nó không phải là thành quả có sẵn trong ngày một ngày hai mà nó là cả một quá trình cố gắng, phấn đấu, nỗ lực của tất cả các thành viên trong gia đình. Nói như thế để chúng ta thấy tầm quan trọng của bản vẽ thiết kế là rất quan trọng cần chúng ta phải thật kĩ lưỡng.

Kết cấu ngôi nhà hay nói cách khác là bản vẽ thiết kế chính là điểm mấu chốt làm nên chất lượng cũng như sự bền vững của căn nhà sau này. Vậy bản vẽ thiết kế là gì tất cả chúng ta nên biết và cần phải biết trước khi tiến hành thi công căn biệt thự 8x10m. Bản vẽ thiết kế nhà ở thường, biệt thự, khách sạn, những công trình xây dựng nói chung là một bộ hồ sơ hoàn chỉnh về toàn bộ ngôi nhà.

Trong đó bản vẽ thiết kế chính là tập hồ sơ diễn giải về hình dáng, về kích thước một cách chi tiết, rõ ràng về kết cấu hoàn chỉnh của toàn bộ ngôi nhà. Thông qua bản vẽ thiết kế này mà các kỹ sư, thầu xây dựng biết được quy cách xây nên một ngôi nhà là như thế nào? Biết được diện tích căn nhà là bao nhiêu và các kích thước, bố trí các phòng chức năng trong căn nhà ra sao?
Hồ sơ thiết kế kiến trúc của một công trình xây dựng trong đó có biệt thự 8x10m gồm có 3 phần. Đó là bản vẽ thiết kế kiến trúc nhà ở là một bộ hồ sư từ 80-200 trang A3 gồm 3 phần gồm: Thứ nhất là phần kiến trúc, thứ 2 là phần kết cấu và thứ 3 là phần điện và nước.
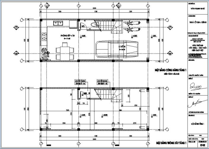
Mặt bằng tổng thể nội thất biệt thự 8x10m2 ấn tượng nhất hiện nay

Trên đây là mặt bằng tổng thể của một căn biệt thự 8x10m theo phong cách hiện đại. Nhìn tổng thể bên trong của căn nhà chúng ta đã hình dung được phần nào sự sắp xếp, bố trí nội thất bên trong của căn biệt thự. Mỗi tầng đều phát huy công năng sử dụng khác nhau. Chắc chắn mặt bằng tổng thể này sẽ khiến cho nhiều chủ đầu tư cảm thấy hài lòng và phù hợp với nhu cầu sử dụng của gia đình mình. Vì để có được một mặt bằng tổng thể này thì các kiến trúc sư đã có sự tính toán rất kĩ lưỡng, mang tính hợp lý cao.

Với khuôn viên của căn nhà 8x10m để đảm bảo mặt bằng nội thất hợp lý thì trước khi thi công bạn cần phải có sự tính toán kĩ lưỡng để bố trí diện tích các phòng cho phù hợp. Khi xây dựng xong bạn cần có sự sắp xếp nội thất một cách hợp lý. Với diện tích căn biệt thự có chiều rộng là 8m, chiều dài là 10m không phải là quá rộng, nhưng cũng không phải là hẹp đủ để gia đình bạn có một không gian sống tiện nghi, hiện đại nhất.
Tuy nhiên để đảm bảo không gian được thoáng đãng rộng rãi thì đòi hỏi phải có một sự sắp xếp hợp lý, gọn gàng, ngăn nắp. Nội thất lựa chọn cũng không quá lớn, lựa chọn những sản phẩm nội thất thông minh là gợi ý tuyệt vời cho những căn biệt thự hiện đại, sử dụng vật liệu cửa kính, lan can kính cường lực tăng thêm nét đẹp hiện đại, mở rộng không gian, đưa thiên nhiên vào căn nhà, sân thượng... giúp bầu không khí thêm trong lành, mát mẻ hơn...
Xây dựng số nơi trao gửi niềm tin, mơ ước

Sàn giao dịch thương mại điện tử - Xây Dựng Số được xem là sợi dây kết nối giữa các chủ đầu tư và nhà thầu chuyên nghiệp, tiếng tăm đã gây dựng được thương hiệu ở các tỉnh thành. Sàn Xây Dựng Số đã có mặt ở cả 54 tỉnh thành, khi bạn muốn nhận được sự tư vấn thì đội ngũ tư vấn của chúng tôi sẽ sẵn sàng tư vấn miễn phí nhằm cung cấp đến các chủ đầu tư hệ thống nhà thầu chuyên nghiệp hàng đầu, mang đến cho bạn một công trình biệt thự như ý.

Tính chuyên nghiệp, độ tin cây của nhà thầu tại xây dựng số được thể hiện ở bộ hồ sơ năng lực công ty rõ ràng, minh bạch. Trong quá trình thi công đến khi hoàn thiện cam kết chất lượng đúng như cam kết, thời gian thi công để không xảy ra gián đoạn, không phát sinh chi phí đảm bảo tiết kiệm ở mức tối đa cho các chủ đầu tư, mức chi phí phù hợp với thị trường, chất lượng vật liệu xây dựng được đảm bảo... Đó là tất cả những gì mà các công ty xây dựng đã thực hiện thành công ở rất nhiều công trình biệt thự nói riêng và những công trình xây dựng nói chung trong những năm qua.
Xem thêm


































