Trong nét đẹp văn hoá kiến trúc nhà ở của Việt Nam, từ xưa đến nay nhà cấp 4 đã trở thành biểu tượng bất diệt. Đơn giản, nhen nhàng, không phô trương nhưng mẫu nhà này vẫn luôn gần gũi, thân thuộc và nhân dân ta dành nhiều tình cảm. Trong khuôn khổ bài viết này chúng tôi xin giới thiệu những mẫu nhà cấp 4 9x13, khang trang mà hợp với mức sống của chúng ta. Kính mời quý độc giả cùng theo dõi và tham khảo.
Những chú ý quan trọng trước khi xây nhà để gặp nhiều may mắn tránh tai hoạ
Việc xây cửa dựng nhà hẳn là điều vô cùng quan trọng và to lớn trong cuộc đời mỗi người. Bởi vậy trước khi bắt tay vào thi công gia chủ cần phait tuyệt đối kiêng kị những điều không tốt lành để cuộc sống gia đạo mau này được vẹn tròn đại cát, cửa nhà được yên ấm an vui. Những điều đại kị cần tránh trước khi xây nhà mới là gì? Trước tiên là không được thiết kế những kiểu nhà có hình dáng độc, lạ. Gia chủ đừng vì mình muốn nhà nổi trội hơn nhữn nhà khác mà rước hoạ vào thân. Hãy tránh xây nhà kiến trúc kiểu hình chữ bát, chữ hoả trong tiếng Hán hay kiểu hình cái quạt, mũi tên, cung, mác. Lưu ý nữa là xây nhà đằng trước cần thấp hơn đằng sau với mong muốn con cháu mai này tiến lên đúng theo quan niệm của ông cha ta “ con hơn cha là nhà có phúc”.

Chân tường phải xây dựng chắc chắn, vuông vức tránh bị cong, rơi sẽ mang đến tai hoạ. Thêm vào đó những điều kiêng kị tuyệt đối cần phải để tâm đó là nên chọn khuôn đất bằng phẳng địa hình cao và vững chắc để thoả sức thiết kế kiến trúc theo mong muốn và mang lại may mắn bình an. Nên tránh những miếng đất lồi lõm, cao thấp đặc biệt là miếng đất hình tam giác bởi theo phong thuỷ kiểu đất này xây nhat sẽ rất hao tiền tốn của, gia đình bất hoà. Tiếp theo là tránh làm nhà trong ngõ cụt cuối đường gì ở đây thường hay tập trung tệ nạn, xa đường lớn làm giảm đi sự năng động vui vẻ và khó khăn cho việc giao lưu buôn bán dẫn đến u ám tối tắm.
Tuy nhiên cũng không xây nhà sát cạnh đường lớn vì ở đây hay ồn ào phức tạp, nhất là đối với gia đình nào có người già và trẻ em thì sẽ rất khó chịu và mệt mỏi. Còn nữa, tuyệt đối kiêng kị đối với việc xây cất nhà ở ngay chân núi hay trong hẻm nũi thung lũng sâu vì ở đây vào mùa lũ thường xảy ra thiên tai bất ngờ lũ quét mưa gió khiến ngôi nhà của bạn không được bền vững mà còn rất nguy hiểm cho cả gia đình. Và tuyệt đối không được trồng cây to trước nhà vì thứ nhất sẽ làm cho nhà bị rợp bóng thiếu ánh sáng dương khí, thứ hai là cây toà nguồn dẫn luồn điện từ sấm sét rất mạnh nên người nhà cần phải rất để ý vấn đề này.
Ngoài ra cũng không nên đặt nhà sát cây cột điện hay trạp cao thế, trạm biến áp bởi đây cũng là nơi tập trung dẫn điện rất nguy hiểm đặc biệt ở trong nhữn nhà mưa gió. Gia đình bạn mặc dù kinh tế dư giả nhưng hãy xây nhà vừa đủ để ở tránh xây quá to hay quá rộng vừa thừa thãi lãng phí lại gây cảm giác bất an, chòng chành trước thời tiết khắc nghiệt lại còn gây mất thiện cảm với tình làng nghĩa xóm. Cứ ở đâu theo đấy không nên “ chơi trội”. Đối với thiết kế cửa chính, đây cũng là điều quan trong không thể qua loa được. Cụ thể là cổng nhà mình không được xây đối diện với cổng nhà hàng xóm, cửa chính ra vào không được trực diện với cổng nhà. Hơn thế nữa đối với việc xây nhà ở khu đất hẹp hai nhà phải ghép mái với nhau thì tuyệt đối không được ghép mái ở hiên mỗi nhà.
Ngoài ra khi thiết kế các phòng trong nội thất chú ý chỉ được dùng số lẻ như 3, 5, 7 phòng không được là 2, 4, 6 phòng. Và lựa chọn màu sơn, màu nội thất nên hợp tuổi và mệnh của gia chủ để mang lại những điều bình an. Một điều nữa cũng giống như cuộc sống thường nhật, chúng ta cần vệ sinh nhà cửa cho sạch sẽ thoáng đãng đề rước điềm may, đón khí cát. Nhất là nhà vệ sinh phải sạch sẽ thoáng mát vừa không cho dịch bệnh sinh sôi vừa làm ngôi nhà bạn được sạch đẹp đón không khí tốt lành.
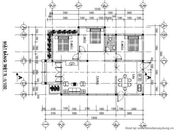
Ý nghĩa của phối cảnh bản vẽ cho mẫu nhà cấp 4 9x13
Trước khi chuẩn bị khởi công xây dựng ngôi nhà mới việc thiết kế bản vẽ mô phỏng hình ảnh ngôi nhà rất quan trọng, nhìn vào đó chủ nhà sẽ thấy được kiểu cách, nội thất cũng như ngoại thất mình xây dựng ra sao. Đối với mẫu nhà cấp 4 9x13 sẽ được thiết kế trên một khuôn đất rộng rãi bởi ngoài xây nhà gia chủ còn có thể thiết kế thành khuôn viên nhà vườn rất lí tưởng. Với mẫu nhà này thường được các kiến trúc sư đưa ra lời khuyên nên bố trí hai hoặc ba phòng ngủ là hợp lí nhất. Với bản vẽ này được thiết kế với ba phòng ngủ. Đối diện cửa ra vào là phòng khách rộng rãi, nền gạch được trang trí bắt mắt kiểu thiết kế tiện nghi gọn gàng khoa học để tiết kiệm khoảng không rộng ho đông người sử dụng.

Phòng khách cũng là phòng có diện tích lớn nhất so với các phòng còn lại và được sử dụng hết chiều ngang của căn phòng. Đằng sau gian khách này có mới bắt đầu có sự phân chia các phòng riêng biệt và được ngăn cách bởi lỗi hành lang trong nhà. Bên trái phòng khách nhibf sang là gian bếp ăn và phòng ăn được tách hẳn ra, thông thường quý gia chủ nào muốn gộp luôn hai gian này vào cũng được. Nhà bếp được thiết kế rộng và tiện nghi cho gia chủ và các thành viên thoải mái sử dụng, phòng ăn bên cạnh khá khiêm tốn đủ kê một bàn ăn 6- 8 vị trí ngồi. Cuối cùng của dãy bên này được thiết kế với một phòng ngủ khá rộng. Căn phòng này thích hợp làm phòng của người già bởi nó đối diện ngay khu vệ sinh nhà tắm.
Còn nguyên khu bên này dành cho hai phòng ngủ liền kề nhau, diện tích bằng nhau. Bố trí đối diện với bếp ăn. Ở cuối dãy nhà khu vực nhà tắm nhà vệ sinh. Hai gian này cũng tách biệt nhau chứ không gộp chung. Có thể nói với bản vẽ này phần thiết kế cho các gian phòng trong nhà phần lớn đều riêng biệt tạo nên cảm giác thoải mái, riêng tư cho người sử dụng. Bên ngoài ngôi nhà như mô phỏng trong bản vẽ ta thấy cử chính ra vào dự tính sẽ lắp đặt cửa gỗ để gợi nên màu sắc cổ điền, trang trọng cho ngôi nhà. Phía thềm cửa có hai trụ lớn đảm bảo độ kiên cố bền vững với thời gian của công trình kiến trúc.

Còn đây là bản vẽ phác thảo chi tiết kích thức và tính năng sử dụng của mẫu nhà cấp 4 9x13 có ba phòng ngủ. Quý độc giả có thể tham khảo và áp dụng cho chính ngôi nhà mới của mình.
Những mẫu thiết kế nhà cấp 4 9x13 đẹp siêu lòng gia chủ
Để sở hữu cho cuộc đời mình và gia đình thân yêu một ngôi nhà khang trang bề thế là một điều nằm trong tầm tay của bạn. Những ngôi nhà cấp 4 9x13 như thế này hoàn toàn đáp ứng được mong ước đó của bạn.

Với kiến trúc mái thái nhà vườn, kiểu nhà cấp 4 này từ lâu đã được các “ dân chơi” lựa chọn làm tổ ấm của mình. Hiện đại, sang trọng, đẳng cấp mà chi phí lại quá sức phải chăng mà còn hướng về nguyên tác của kiểu kiến trúc truyền thống dân tộc. Người xưa có câu “ cái răng cái tóc là góc con người” còn đối với ngôi nhà phần mái lợp có vai trò lớn trong việc tô điểm một ngôi nhà đẹp. Ở ngôi nhà này gia chủ đã khéo léo chọn màu ngói đỏ tươi truyền thống kết hợp với màu sơn trắng hiện đại tinh tế khiến cho không gian thêm rộng mở và ấm cúng.
Ngoài ra còn kiểu nhà cấp 4 mái tôn cũng rất phổ biến và được nhiều gia chủ lựa chọn. Ở mỗi làng quê trên lãnh thổ Việt Nam thân yêu đâu đâu ta cũng bắt gặp thấp thoáng ngôi nhà cấp 4 mái tôn đậm chất quê hương.

Với mẫu nhà cấp 4 mái tôn 9x13 đơn giản nhưng tuyệt đối bền màu, kiên cố. Hiện nay mái tôn với ưi tính rẻ- bền- đẹp đang rất được ưa chuộng cho các công trình xây dựng lớn nhỏ. Kiểu mái tôn cũng rất đa dạng và nhiều loại, đẹp và sang trọng không kém gì mái thái như tôn cách nhiệt, tôn giả ngói, tôn lạnh, .... Với đặc tính cách âm, cách nhiệt vượt trội, sản phẩm này hứa hẹn sẽ mang đến cho ngôi nhà của bản chất lượng và giá trị thẩm mĩ tốt nhất.
Trên đây là những mẫu thiết kế nhà cấp 4 9x13 được ưa chuộng và lựa chọn nhiều nhất. Rất vui lòng khi mang đến cho các quý gia chủ những sự lựa chọn đúng đắn nhất. Hi vọng chúng ta sẽ cùng mang giá trị kiến trúc nhà cấp 4 đặc trưng của dân tộc ta ngày càng hiện đại và bền đẹp hơn nữa.


































