- Bạn đang muốn xây dựng nhà phố đẹp hiện đại?
- Xây dựng với chi phí phải chăng chỉ với 700 triệu?
- Nhà phố đáp ứng đầy đủ những nhu cầu sinh sống?
- Nắm bắt xu hướng, kiến trúc sang trọng, lối sống tối giản?
Thì thiết kế nhà phố 2 tầng hiện đại sau đây là phương án đáng quan tâm đến. Nhà phố 2 tầng này chọn phong cách hiện đại làm chủ đề chính cùng với mức chi phí xây dựng khá hấp dẫn. Chỉ với 700 triệu đã có thể xây dựng được ngôi nhà 2 tầng, điều mà nhiều hộ gia đình tại Việt Nam chú ý đến. Mức chi phí xây dựng phải chăng, đáp ứng đầy đủ nhu cầu sinh sống cho tất cả thành viên trong gia đình, không gian sinh sống thoải mái là điều mà kiến trúc nhà 2 tầng này mang lại.
*Thông tin phương án thiết kế nhà :
- Địa điểm thi công: Bình Dương.
- Thời gian hoàn thiện: Khoảng 3 tháng.
- Kiến trúc: nhà phố 2 tầng phong cách hiện đại.
- Dự kiến chi phí hoàn thiện: Khoảng 700 triệu.
Kinh nghiệm lâu năm trong lĩnh vực thiết kế – xây dựng, đội ngũ kiến trúc sư đã nỗ lực đáp lại niềm tin của khách hàng bằng phương án thiết kế nhà phố có đầy đủ các tiêu chí của chủ nhà với chi phí chỉ 700 triệu. Vậy làm cách nào để sở hữu ngôi nhà phố 2 tầng đẹp với giá rẻ? Để giải đáp những thắc mắc đó, mời bạn cùng đón xem phương án thiết kế nhà phố 2 tầng có chi phí giá rẻ chỉ 700tr và bao gồm nội thất.
Phối cảnh mặt tiền mẫu thiết kế nhà phố 2 tầng hiện đại chỉ 700 Triệu

Mặt tiền phía trước được bố trí sân xe hơi riêng rộng rãi, bao quanh cổng làm bằng bê tông + sắt thép khá chắc chắn và an toàn. Đối với những vị trí nhà đẹp nào trong khu nhà phố liền kề, hạn chế diện tích thì kiến trúc nhà phố này là sự lựa chọn tuyệt vời. Là người yêu thích sự thoải mái và thư giãn, chủ đầu tư đã yêu cầu kiến trúc sư thiết kế cầu thang đi lên tầng thượng. Sẽ rất tuyệt vời khi cùng các thành viên yêu quý trong gia đình hóng mát vào buổi xế chiều ngay trên tầng thượng đúng không nào? Qua đó tầng thượng còn là nơi lý tưởng để trồng rau sạch, các loại cây cảnh yêu thích ở khu vực thành phố đất chật người đông này.
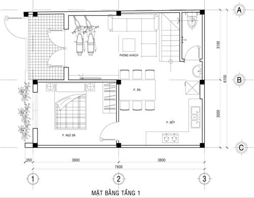
Chi tiết bản vẽ mặt bằng công năng căn nhà phố 2 tầng mang phong cách hiện đại

Mặt bằng tầng 1

Nội thất tầng 2

Nội thất tầng mái
Nhà phố hiện đại tại đây được xây dựng trên diện tích khối hình vuông, khá dễ dàng trong việc bố trí bản vẽ bên trong ngôi nhà được tối ưu nhất. Tổng quan nhà phố hiện đại này lựa chọn màu xám ghi phối hợp cùng với những tone màu nhẹ nhàng, đem đến cảm giác thoải mái và thoáng mát khi sinh sống. Vì chi phí xây dựng khá hạn hẹp, nên các kiến trúc sư đã giảm thiểu các chi tiết kiến trúc cho ngôi nhà. Tuy kiểu dáng thiết kế nhà phố này có phần đơn giản, nhưng vẫn có thể đáp ứng được nhu cầu sống cho từ 4 – 5 thành viên trong gia đình.
Những điều đáng cân nhắc khi thiết kế – xây dựng nhà phố 2 tầng hiện đại
Để sở hữu một tổ ấm riêng tư không phải là điều dễ dàng, nó là cả một quá trình tích góp từ tháng này sang năm nọ. Do đó trước khi xây dựng một ngôi nhà đẹp của riêng mình, bạn cần phải lên một bản kế hoạch rõ ràng và biết đến những điều đáng cân nhắc sau:

Những lưu ý cần biết khi xây dựng nhà phố 2 tầng tiết kiệm chi phí
- Tìm kiếm đơn vị thiết kế – xây dựng uy tín, có nhiều năm kinh nghiệm trong nghề đưa ra phương án thiết kế hợp với kinh phí.
- Thảm khảo giá phần thô bao nhiêu? Bảng giá nội thất, vật liệu, công thợ ở khu vực bạn đang muốn xây dựng là bao nhiêu?
- Tham khảo lời khuyên và kinh nghiệm của những người quen đã xây dựng, để biết những rủi ro cần tránh không mong muốn.
- Hạn chế các họa tiết trang trí khi xây dựng ngôi nhà, điều này bạn hoàn toàn có thể làm khi nguồn thu nhập đã ổn định sau này.
- Không nên chọn mua quá nhiều đồ dùng nội thất, lựa chọn vật liệu có mức giá vừa phải để đầu tư vào những việc quan trọng.
- Không trang trí quá nhiều đồ trong không gian, điều này vừa làm mất diện tích sử dụng vừa mất khoảng chi phí không cần thiết.
Nguồn tin: https://wedo.vn/
Xem thêm:
Thiết kế nhà phố liền kề 2 tầng
Mẫu nhà phố 1 trệt 1 lửng 1 lầu
Mẫu nhà phố 2 tầng mặt tiền 9m


































