Nhiều khách hàng đã tìm đến chúng tôi và tư vấn về mẫu biệt thự 3 tầng. Đây là một kiến trúc sang trọng, đẳng cấp, với mức độ tinh tế và thẩm mỹ cao. Do đó, bài viết dưới đây sẽ giới thiệu đến bạn mẫu biệt thự 3 tầng mái thái đẹp 160m2 sàn (chưa bao gồm sân vườn và sảnh vào của biệt thự)
- Tầng trệt có diện tích 162 m2 vì khu vực này đã được xây dựng và một khu vực để xe bổ sung cho ô tô được bố trí. Tầng 2 của thiết kế biệt thự 3 tầng sẽ tận dụng không gian trước làm gara để xây dựng sân chơi, kết hợp một vườn hoa nhỏ, nơi thư giãn của cả gia đình.
- Từ tầng 1 đến tầng 2 được thiết kế mái hiên chạy quanh sảnh và bên hông nhà để xe. Ngoài chức năng che mưa, đây cũng là điểm nhấn để tạo sự khác biệt, tăng tính thẩm mỹ cho toàn bộ ngôi nhà. Bề mặt mái được chia thành 2 mảnh vuông góc với nhau rất hiện đại, theo kịp xu hướng thiết kế hiện tại.
Tham khảo phối cảnh các góc của mẫu biệt thự 3 tầng mái thái đẹp trên diện tích 160m2

Cấu trúc mặt tiền của biệt thự 3 tầng đẹp sẽ được thiết kế theo hình chữ L đẹp mắt. Tùy thuộc vào nhu cầu của gia đình, bạn có thể linh hoạt thay đổi thiết kế và điều chỉnh thêm cho phù hợp. Điểm ấn tượng của không gian này là sự tráng lệ tráng lệ, mở ra một không gian rộng rãi, đa dạng chức năng và tiện ích.

Theo quan điểm này, bạn hoàn toàn có thể đánh giá cao vẻ đẹp của mái nhà, trong đó cho thấy rõ khiếm khuyết hình chữ L ở tầng 2. Không gian này sẽ được bố trí và xây dựng như một sân chơi, điểm nhấn chính nhờ vào giàn hoa làm bằng bê tông cốt thép. Tùy thuộc vào sở thích của chủ nhà, một bộ bàn ghế bổ sung có thể được sắp xếp để phục vụ cho việc nghỉ ngơi và thư giãn của gia đình.
Xem qua chi tiết bản vẽ các tầng của thiết kế biệt thự 3 tầng hiện đại

Đây sẽ là không gian sinh hoạt chung của gia đình với 1 phòng khách, phòng bết kết hợp phòng ăn, 1 phòng vệ sinh chung dành cho cả tầng 1 và 1 không gian nhỏ tiện lợi làm phòng ngủ cho người giúp việc. Theo yêu cầu của gia chủ nên 1 khu vực gara rộng lớn sẽ được xây dựng để ô tô.

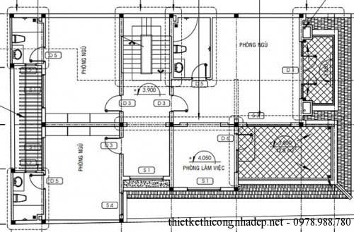
Không gian toàn bộ tầng 2 sẽ được thiết kế làm 3 phòng ngủ. 2 phòng ngủ dành cho con cái và 1 phòng ngủ của riêng bố mẹ. Sẽ tích hợp nhà vệ sinh riêng ở mỗi phòng. Phòng ngủ của bố mẹ sẽ được xây dựng đặc biệt hơn khi có lối dẫn ra ban công sân vườn và 1 phòng làm việc riêng biệt ngay phía trong, có không gian yên tĩnh.

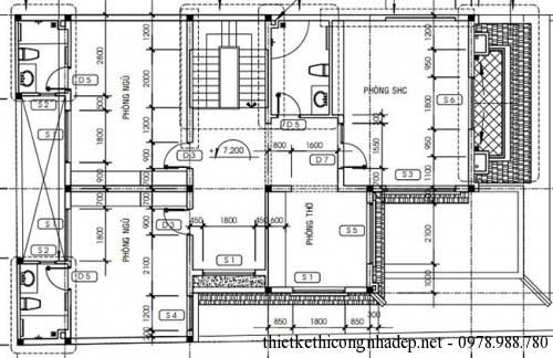
Với ưu thế không gian rộng rãi nên ở mặt bằng tầng 3 mẫu biệt thự 3 tầng đẹp này sẽ dược bố trí thêm 2 phòng ngủ phòng trường hợp có khách và 1 phòng sinh hoạt chung cho cả gia đình. Phòng thờ trang nghiêm và yên tĩnh sẽ nằm tách biệt cạnh ban công.
Phần giới thiệu ở trên hy vọng sẽ giúp khách hàng phần nào hình dung được không gian của ngôi nhà. Tuy nhiên, thiết kế này cũng đòi hỏi chủ nhà phải bỏ ra một chi phí tương đối lớn. Bởi vì đây là một thiết kế biệt thự hiện đại với không gian rộng rãi và thoải mái.
Nguồn: thietkethicongnhadep.net
Xem thêm:
Thiết kế biệt thự 3 tầng mái thái kết hợp sân vườn
Mẫu nhà biệt thự 3 tầng mái thái trên diện tích 15x20m


































