Năm 2024 những căn biệt thự mái thái nguyên thủy đang trở thành xu hướng kiến trúc hiện đại ngày nay. Sự sang trọng, bề thế và giá trị là điều đem lại qua các kiến trúc nhà đẹp không thể không phủ nhận từ mái thái. Mẫu biệt thự 2 tầng 80m2 mái thái thiết kế đang là tiêu đề thú vị của nhiều gia chủ có chỗ đứng trong xã hội, nói lên giá trị thật sự. Được xây dựng trên diện tích không quá lớn, nhưng kiến trúc biệt thự mini này vẫn có thể tạo nên sự sang trọng và gây ấn tượng đặc biệt cho những ai lần đầu tiên nhìn thấy.
Là người thường xuyên bận bịu với công việc, chủ đầu tư tại Bắc Giang mong muốn sở hữu một căn biệt thự với quy mô nhỏ có thể đáp ứng mọi nhu cầu sinh sống, đem lại những phút giây thư giãn vào cuối ngày làm việc mệt mỏi bên ngoài. Biết được tâm tư của chủ nhà, đội ngũ kiến trúc sư đã ngồi lại với nhau và triển khai phương án thiết kế biệt thự mini kết hợp mái thái một cách tỉ mỉ. Không gian sinh sống thoải mái, đáp ứng mọi nhu cầu cho cả gia đình, kiến trúc nắm bắt xu hướng là những điều được thể hiện qua mẫu thiết kế biệt thự mini tại đây.
Hình ảnh phối cảnh mẫu biệt thự 2 tầng 80m2 mái thái đẹp

Thiết kế biệt thự mini 2 tầng đẹp trên diện tích 80m2
Nhà biệt thự này xây dựng trên khu đất vuông vức, nên các căn phòng trong ngôi nhà được kiến trúc sư bố trí tối ưu, đem lại cảm giác thoải mái cho gia đình khi sinh sống. Tổng thể ngôi nhà sử dụng màu sơn xám ghi chùng với tone màu mái thái, phối hợp tinh tế cùng màu nổi từ các chi tiết trang trí. Diện tích phía trước rộng rãi áp dụng làm nơi để xe hơi và khu vực vui chơi cho trẻ nhỏ trong nhà. Nếu bạn là người yêu thích thiên nhiên thì đừng ngại ngùng mà hãy chọn mua ngay những loại cây cảnh yêu thích. Cây xanh góp phần tăng nét đẹp sinh động và tính thẩm mỹ cho tổng quan ngôi nhà, qua đó cây canh cũng đem bầu không khí trong lành cho các thành viên hưởng thụ.

Chi tiết bản vẽ mặt bằng tầng 1
Không phải tự nhiên mà các kiến trúc nhà kết hợp với mái thái lại được yêu thích trong nhiều năm nay đâu nhé. Có tuổi thọ lâu năm, chống ứ đọng nước, giảm nhiệt độ nóng và tăng giá trị cho ngôi nhà là những lợi thế mà mái thái đem lại. Hơn hết mái thái ngày nay có chất lượng tốt, bảo vệ những tác động mạnh của thời tiếc như bão, nắng, mưa, gió…

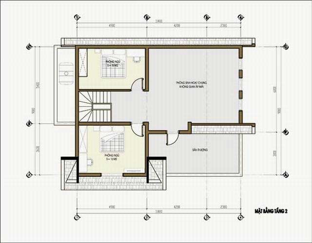
Chi tiết bản vẽ mặt bằng tầng 2
Bỏ qua phối cảnh bên ngoài, bên trong các căn phòng biệt thự được bố trí khá khoa học, hợp với tuổi và mệnh của chủ nhà trong phòng thủy. Sân thượng tầng 2 rộng rãi được trang trí tiểu cảnh đẹp mắt, gia chủ có thể áp dụng làm nơi thư giãn và nghĩ ngơi tại đây. Nhà thiết kế 3 phòng ngủ xây dựng khép kín và yên tĩnh, nhằm đem lại những giấc nghỉ ngơi thoải mái nhất. Như mọi người cũng có thể thấy toàn bộ các khu vực bên trong mẫu biệt thự 2 tầng đều bố trí cửa sổ riêng rộng rãi, điều này giúp đưa những cơn gió thoáng đãng vào không gian được dễ dàng. Hệ thống tầng mái dành riêng một diện tích nhỏ để lắp kính cường lực, giúp việc đưa nguồn ánh sáng tự nhiên vào không gian bên trong một cách miễn phí.

Chi tiết bản vẽ mặt bằng mái
Tuy nhà đẹp trên đây lựa chọn phong cách hiện đại, nhưng từ phần mái thái nguyên thủy nên biệt thự mini vẫn giữ được nét đẹp truyền thống của Việt Nam. Dự án này không quá quy mô như những căn biệt thự cao tầng rộng rãi, cũng phải khiến nhiều người hứng thú và mơ ước sở hữu.
Nguồn tin: https://wedo.vn/
Mời quý khách xem thêm:
Mẫu nhà biệt thự 2 tầng mái lệch 8x17m


































