Phong cách biệt thự cổ điển châu Âu ngày càng được các chủ đầu tư quan tâm bởi phong thái sang trọng, kiêu sa và quyền quý của nó. Cũng giống như bao mẫu biệt thự cổ điển phong cách châu Âu khác, mẫu biệt thự 5 tầng cổ điển này trở thành điểm nhấn trung tâm của kiến trúc, mê hoặc mọi ánh nhìn. Sự kế thừa và chọn lọc một cách tinh tế những yếu tố đặc trưng của kiến trúc cổ điển châu Âu đã tạo nê một công trình tầm cỡ, toát lên địa vị của gia chủ. Dưới đây là gợi ý mẫu thiết kế biệt thự cổ điển 5 tầng đẹp dành cho những ai đang có ý tưởng xây dựng biệt tự cho mình.

1. Phối cảnh 3D biệt thự cổ điển 5 tầng đẹp
Chiêm ngưỡng căn biệt thự cổ điển 5 tầng từ xa người ta đã cảm thấy bị cuốn hút bởi vẻ đẹp nhẹ nhàng và tinh tế mang hơi hướng của những lâu đài cổ trời Tây. Căn biệt thự được thiết kế theo phong cách kiến trúc cổ điển vói đặc trưng của hệ mái vòm, cùng những đường nét hoa văn trang trí nhẹ nhàng, kết hợp với tone màu vàng quyền uy.
Mặt tiền của bệt thự gây ấn tượng bởi hệ thống cột trụ lớn nhỏ được bố trí hài hòa, hợp lý từ đó tăng sức vững chãi đồng thời mang đến giá trị thẩm mỹ lớn cho tổng thể kiến trúc. Hệ cột vững chắc ở cả sảnh chính và sảnh phụ kéo dài từ tầng 1 đến tầng 5 của căn biệt thự giống như xương sống của công trình, chống đỡ phần ban công lớn. Hệ thống hoa văn trang trí mềm mại, tinh xảo cũng những đường phào chỉ đắp nổi chạy dọc theo thân cột đã biến những chiếc cột vốn cứng nhắc trở nên mềm mại, uyển chuyển.

Ban công cũng là yếu tố được nhà thiết kế quan tâm. Hệ ban công trải dài từ tầng 2 đến tầng 4 với lan can được thiết kế tinh tế, những đường nét hoa văn tinh xảo và sơn dát vàng càng tạo thành điểm nhấn, ton lên sự sang trọng, quyền uy và tráng lệ của mẫu biệt thự này. Ban công rộng cùng với hệ cửa kính giúp tận dụng tối đa ánh sáng tự nhiên. Nơi đây cũng là nơi để gia chủ thả hồn theo thiên nhiên, thưởng thức những tách trà và ngắm thiên nhiên mỗi khi đêm về hoặc đón tia nắng đầu tiên của ngày mới.

Hệ cửa chính cũng góp phần tạo điểm nhấn cho không gian tiền sảnh. Cửa chính được thiết kế bằng kính kết hợp với gỗ tự nhiên cao cấp, kèm những hoa văn trang trí đặc biệt. Hệ thống cửa sổ được thiết kế hài hòa, xem kẽ với nhau và sở hữu diện tích rộng đã tạo nên độ thông thoáng cho không gian sống trong căn biệt thự. Cửa sổ cũng được làm bằng kính cường lực cho nên vừa án toàn, lại mang đến không gian nghỉ ngơi yên tĩnh, thoải mái cho các thành viên trong gia đình.

Nhìn tổng thể kiến trúc, căn biệt thự cổ điển 5 tầng khoác lên mình màu vàng quyền lực, thể hiện đẳng cấp của công trình cũng như của chủ đầu tư. Trong đó làm nên ấn tượng chính là màu vàng đậm ở phần sảnh chính. Còn ở các không gian khác là sự kế hợp giữa màu vàng với màu trắng của khung của sổ và màu xanh của hệ mái làm nên sự hài hòa cho tổng thể công trình xây dựng.
Biệt thự cổ điển 5 tầng thu hút ánh nhìn bởi thiết kế độc đáo. Bao quanh công trình là hàng rào chắc chắn với họa tiết được điêu khắc tỉ mỉ, sơn dát vàng sang trọng. Bạn có thể tưởng tượng như mình sắp bước vào khám phá không gian của cung điện hoàng gia nơi trời tây vậy.
2. Chi tiết mặt bằng các tầng trong mẫu biệt thự cổ điển 5 tầng
2.1. Mặt bằng tầng trệt

Tầng trệt được thiết kế với 2 cửa ra vào, 1 của ở mặt tiền sảnh trước và 1 cửa ở hông nhà để tạo sự thuận tiện trong quá trình nấu nướng. Gara có sức chưa lên đến 3 oto. Một nhà vệ sinh chung được thiết kế giấu kín khéo léo. Khu vực giặt đồ và phơi đồ kết nối với không gian sân vườn phía sau. Một bếp phụ ở cuối sân vườn dùng để phục vụ cho những bữa tiệc ngoài trời.
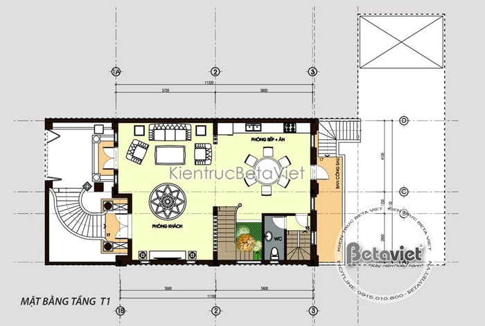
2.2. Mặt bằng tầng 1

Không gian tầng 1 bao gồm 1 phòng khách 1 bếp tích hợp với phòng ăn được thiết kế hài hòa vừa mang đến bữa cơm gia đình ấm cúng lại vừa tôn lên giá trị thẩm mĩ tổng thể. 1 phòng ngủ dành cho người già với hệ thống vệ sinh khép kín, 1 phòng ngủ dành cho gia nhân, 1 nhà vệ sinh chung, cầu thang và thang máy..
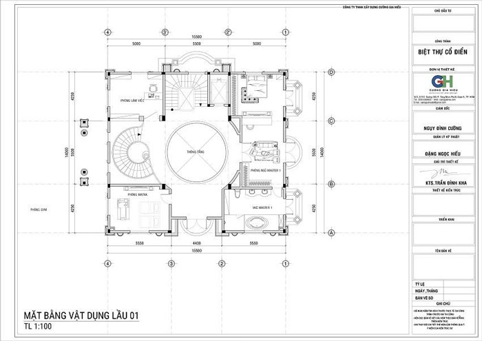
2.3. Mặt bằng tầng 2
Mặt bằng tầng 2 được thiết kế bao gồm các phòng chức năng: 1 phòng sinh hoạt chung với diện tích khá lớn; 3 phòng ngủ được thiết kế nhà vệ sinh khép kín. Trong đó phòng ngủ master có cửa lớn để thông ra ban công phía trước. Những phòng ngủ dành cho con lại thông ra ban công phía sau. Tất cả đều được thiết kế tiện nghi hiện đại và đầy đủ; 1 phòng làm việc, 1 phòng mát-xa
2.4. Mặt bằng tầng 3
Mặt bằng tầng 3 được thiết kế tương tự như tầng 2. Thay bằng phòng ngủ master thì đó là không gian dành cho phòng hát Karaoke hiện đại, 1 nhà vệ sinh chung, 1 thư viện dành cho con.
2.5. Mặt bằng tầng 4
Mặt bằng tầng 4 được thiết kế bao gồm phòng thờ bởi theo quan niệm của người Việt, phong thờ phải được đặt ở chỗ cao ráo nhất, sang trọng nhất để đón được linh khí của trời đất. Ngoài ra, trên tầng 4 còn có không gian dành cho thể dục thể thao, phòng tập GYM, yoga, sân thượng có đặt bộ bàn trà bên cạnh khuôn viên sân vườn, tiểu cảnh nhỏ để gia chủ thư giãn, thưởng trà, ngắm hoa và thả hồn vào thiên nhiên.
3. Thiết kế nội thất biệt thự cổ điển 5 tầng
Căn biệt thự cổ điển 5 tầng đã gây choáng ngợp bởi không gian ngoại thất đồ sộ rồi. Nhưng khi bước vào trong nhà, chứng kiến sự thiết kế, bài trí và sắp xếp nội thất khiến bạn không khỏi thốt lên sự bất ngờ.
3.1. Thiết kế nội thất phòng khách
Thiết kế phòng khách biệt thự cổ điển luôn được chú trọng từ việc chọn màu sắc chủ đạo, phối màu, lực chọn họa tiết trang trí, lựa chọn nội thất như bàn ghế, đèn chùm, trần thạch cao, rèm cửa, tranh trang trí… Bởi giữa chúng sẽ có sự kết hợp hài hòa và thống nhất với nhau để tạo nên không gian phòng khách cổ điển nhưng khống kém phần sang trọng và xa hoa.

Bộ bàn ghế sofa là điểm nhấn cho toàn bộ không gian phòng khách. Nó được làm bằng gỗ tự nhiên cao cấp cùng với kiểu dáng được thiết kế và chạm khắc tỉ mỉ, sử dụng màu sắc mới lạ kết hợp với hệ thống rèm cửa đồng tone với màu tường, và hệ thống đèn chùm, đèn trần vừa cung cấp đủ ánh sáng cho phòng khách lại vừa mang đến không gian lung linh, huyền ảo.
3.2. Thiết kế nội thất phòng bếp
Không gian phòng bếp của ngôi biệt thự cổ điển 5 tầng này tuy được thiết kế đơn giản nhưng vẫn mang đến không gian sống xa hoa, sang trọng và đẳng cấp. Không gian phòng bếp bao gồm khu nhà bếp và khu vực bàn ăn sử dụng hoàn toàn nội thất cao cấp, cúng những đường nét thiết kế cổ điển và sử dụng sắc trắng chủ đạo đã mang đến không gian kiến trúc tinh tế.

Phòng bếp và phòng ăn liền kề với phòng khách để tạo nên không gian liền khối. Bộ bàn ăn sử dụng tone màu nâu gỗ được ốp kính cường lực và bộ ghế tựa bọc đệm em ái, giúp thoải mái khi ngồi ăn cơm cũng như tạo sự thanh thoát cho không gian.
Hệ thống phào chỉ trang trí giúp tô điểm thêm cho các mảng tường và trần thạch cao kết hợp với đèn chùm tinh xảo đê mang đến sự hài hòa trong kiến trúc.
3.3. Thiết kế nội thất phòng ngủ
Bên cạnh việc chú trọng đến thiết kế nội thất nhà bếp và phòng khách thì thiết kế nội thất phòng ngủ cũng rất được chú trọng. Một không gian sống thiện nghi và đầy đủ sẽ mang đến không gian thư giãn cho các thành viên trong gia đình.
Phòng ngủ được thiết kế hài hòa, sang trọng từ màu sắc cho đến nội thất. Trung tâm của căn phong là chiếc giường ngủ lớn với đường nét mềm mại và hoa văn trang trí cổ điển. Nội thất phòng ngủ như giường, tủ, phòng thay đồ, phong treo quần áo cũng được thiết kế khép kín, mang đến sự tiện lợi cho gia chủ.

Các phòng ngủ đều được thiết kế ban công và cửa sổ rộng để mang đến không gian trong lành, tận dụng ánh sáng và gió tự nhiên, mang đến giờ phút nghỉ ngơi, thư giãn yên bình.
Thảm trải sàn kết hợp với gạch lát nền giả gỗ, cùng với rèm cửa màu nâu nhạt tạo nên sự thống nhất, hài hào trong không gian nội thất. Giữa không gian phòng ngủ và bàn trang điểm được ngăn cách với nhau bởi vách ngăn vừa cứng cáp lại vừa thẩm mĩ. Phòng treo quần áo sử dụng cánh cửa trượt để tăng không gian và dễ dàng trong quá tình sử dụng.
Nhà vệ sinh với những món đồ nội thất sang trọng, có sự xuất hiện của cây xanh mang đến những giờ phút thư giãn thật sự thoải mái.

Mẫu biệt thự cổ điển 5 tầng vốn bản thân nó đang mang sự sang trọng, kì vĩ và quyền lực. Dưới sức tưởng tạo và bàn tay tài hoa của đội ngũ thiết kế và thi công lại càng làm cho nó trở nên đẳng cấp hơn. Hi vọng với những chia sẻ về mẫu biệt thự cổ điển trên đây sẽ giúp cho bạn bổ sung thêm ý tưởng cho căn biệt thự tương lai của mình.
Xem thêm




































