Mẫu thang máy cho nhà 3 tầng đang dần trở thành lựa chọn hàng đầu của các hộ gia đình sang trọng đẳng cấp. Tuy nhiên vẫn còn nhiều khách hàng băn khoăn về các mẫu nhà 3 tầng có thang máy. Để giải quyết các nỗi băn khoăn đó chúng tôi chia sẻ đến các bạn bài viết về mẫu nhà 3 tầng có thang máy đẹp sang trọng và đẳng cấp để bạn dễ dàng lựa chọn những mẫu thích hợp với gia đình mình.
Hình ảnh 3D mẫu nhà 3 tầng có thang máy đẹp long lanh.
Làm sao để sở hữu một ngôi nhà 3 tầng có thang máy đẹp phù hợp không gian nhà, mang lại đẳng cấp và sang trọng với một mức chi phí tương đối hợp lý? Đây là câu hỏi băn khoăn của nhiều bạn độc giả. Trong bài viết của chúng tôi hôn nay sẽ cùng các bạn đi giải nỗi băn khoăn này nhé.

Có thể thấy với mẫu nhà 3 tầng có thang máy này khá đẹp và hiện đại đúng không nào? Với thiết kế này chúng ta thấy ngay mặt tiền của ngôi nhà được trang trí theo phong cách cổ điển. Tâm điểm của ngôi nhà là phần sảnh của phòng khách được thiết kế và trang trí họa tiết trang trí tinh xảo theo lối hiện đại rất thu hút ánh nhìn của mọi người. Khách đến chơi nhà không khỏi trầm trồ và ngạc nhiên bởi vẻ đẹp quý phái độc đáo mà thiết kế này mang lại. Từ đó thể hiện đẳng cấp cá nhân của gia chủ.
Mẫu nhà 3 tầng có thang máy là mẫu nhà mới hiện đại, với sự có mặt của thang máy góp phần tăng độ sang trọng cho ngôi nhà. Với thiết kế đó giúp cho ngôi nhà có vị trí vững chắc trong lòng người dân, bởi các thiết kế nhà 3 tàng có thang máy rất tiện ích và phù hợp không gian sống của mọi người.
Mẫu nhà 3 tầng trên hình chúng tôi cung cấp cho các bạn được thiết kế theo lối nhà hiện đại với cách trang trí đơn điệu nhưng không phải vì thế mà không toát lên vẻ đẹp của nhà. Chính cách thiết kế đơn điệu đó lại làm cho người nhìn có cảm giác trân trọng và sự yêu quý đối với thiết kế nhà.

Hình ảnh mẫu thang máy đẹp cho ngôi nhà 3 tầng được cập nhật trên bài. Chắc hẳn sau những giờ làm việc mệt mỏi bạn sẽ không muốn phải leo lên mấy tầng bậc thang để đi đến phòng của mình đúng không ạ? Vậy lắp thang máy là giải pháp hữu hiệu nhất cho các bạn rồi. Việc lắp đặt một chiếc thang máy không không gian ngôi nhà của bạn sẽ mang lại nhiều lợi ích và thú vị hơn nhiều khi phải di chuyển trên những chiếc bậc thang bộ hàng ngày. Một không gian nhà 3 tầng có thang máy sang trọng và tiện nghi là một ước muốn của rất nhiều người. Để tạo nên không gian nhà tiện nghi và sang trọng thì cần có mặt của các thiết bị đắt đỏ và hiện đại. Do đó thang máy cũng là sản phẩm mang lại vẻ đẹp sang trọng và đắt đỏ cho không gian của bạn.

Với sự phát triển của các phong cách thiết kế nhà đa dạng từ cổ điển đến tân cổ điển và hiện đại …thang máy cũng sẽ được thiết kế sao cho phù hợp với các tiêu chí và không gian nhà. Với sự phát triển không ngừng của công nghệ hiện đại thì thang máy cũng phát triển và trở thành vật dụng sang trọng và đẳng cấp hơn bao giờ hết. Tùy theo sở thích của bạn và không gian sống hay diện tích ngôi nhà mà các kiến trúc sư sẽ tạo ra thang máy phù hợp với ngôi nhà của bạn. Vậy thì lý do gì nếu có điều kiện bạn nên sắm cho ngôi nhà của mình một chiếc thang máy để dễ dàng và tiện khi cần sử dụng. Có thang máy không chỉ là việc di chuyển mà việc mang vác đồ trở nên dễ dàng hơn. Đặc biệt là những gia đình có trẻ nhỏ và người già khuyết tật thì thang máy là yếu tố rất hữu ích cho gia đình.
Phối cảnh bản vẽ nhà 3 tầng có thang máy đẹp.
Sau đây chúng tôi cung cấp tới cho các bạn những hình ảnh về phối cảnh bản vẽ đẹp nhất của mẫu nhà 3 tầng có thang máy. Với bản vẽ phối cảnh này các bạn có thể liên tưởng về bố cục ngôi nhà và cách bố trí khoa học trong nhà của mình.

Hình ảnh về phối cảnh bản vẽ nhà 3 tầng có thang máy trên cho chúng ta điểm nhìn tổng quát nhất trong không gian nhà. Các phòng được bố trí khoa học và chi tiết giúp cho bạn dễ nhận biết và phân biệt các phòng cũng như có thể thay đổi thiết kế theo sở thích của mình. Các thiết kế này đã có được cân nhắc để cấu trúc nhà không bị phá vỡ khi lắp đặt thang máy gia đình.
Trên bản vẽ phối cảnh ghi đầy đủ các thông số cần thiết dựa trên sở thích của bạn, Từ đó có thể lựa chọn mẫu thang máy thích hợp với mọi đặc điểm của ngôi nhà. Do vậy chúng ta mới có thể tạo được sự hài hòa và sang trọng trong không gian nhà 3 tầng của mình.

Hình ảnh trên là một hình ảnh về phối cảnh chi tiết của mặt bằng tầng 3 nhà 3 tầng, chúng ta thấy sự phân chia rõ ràng và được kí hiệu rõ ràng dễ nhận biết và nhìn về ngôi nhà. Một phối cảnh đơn giản nhưng không hề đơn điệu bởi sự kết hợp trong các chi tiết liên kết hợp lý và tiện ích cho gia đình. Các phòng được phân chia với công năng sử dụng riêng biệt tạo nên hệ thống thất trong tổng thể nhà 3 tầng có thang máy.

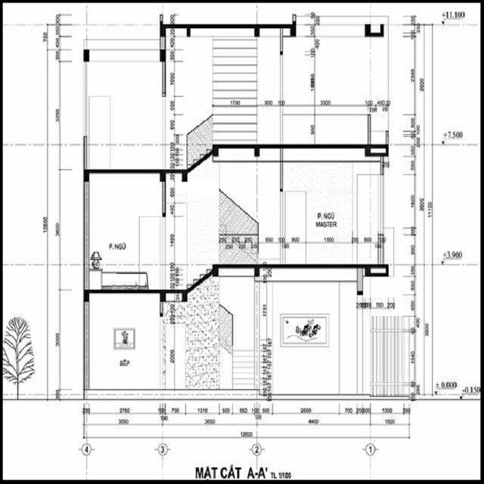
Với phối cảnh bản vẽ về thang máy trong ngôi nhà 3 tầng này chúng ta thấy kích thước thang máy rất nhỏ gọn và đẹp. Đây là mẫy thang máy mini phù hợp cho không gian ngôi nhà 3 tầng. Nếu chúng ta có ngôi nhà biệt thự hay các trung tâm lớn thì nhu cầu sử dụng cao sẽ phù hợp với mẫu thang máy đồ sộ. Với diện tích nhà 3 tầng 200m2 thì sử dụng mẫu thang máy mini cho các thành viên trong gia đình là tiện lợi và phù hợp nhất. Bởi chúng không chiếm diện tích lớn trong không gian nhà và tạo cảm giác hài hòa nhất cho các thành viên trong gia đình.
Các dòng sản phẩm thang máy được nhập khẩu nguyên chiếc từ Châu Âu có sự dễ dàng trong vận chuyển và nhỏ gọn không chiếm hữu diện tích của ngôi nhà hay độ bền của dòng sản phẩm này là khá cao. Chi phí lắp đặt hợp lý và dễ dàng sử dụng với tất cả mọi người.
Nếu cần sử dụng và có nhu cầu lắp đặt thang máy chúng tôi khuyên bạn nên lựa chọn những dòng thang máy phù hợp nhất với không gian sống của gia đình mình. Bởi thang máy phù hợp mang lại nhiều lợi ích lớn cho bạn.
Mặt bằng tổng thể nội thất ngôi nhà 3 tầng có thang máy.
Những mẫu nội thất phù hợp cho ngôi nhà 3 tầng có thang máy đang được khách hàng yêu thích nhất hiện nay sẽ được chúng tôi cập nhật ngay sau đây.

Quan sát về hình ảnh mặt bằng tổng thể nội thất nhà 3 tầng có thang máy chúng ta thấy các phòng đều được kí hiệu rõ ràng và chi tiết. Diện tích các phòng đều được thiết kế để phục vụ nhu cầu sinh hoạt của thành viên trong phòng. Phòng ông bà là căn phòng được thiết kế với diện tích vừa phải và đầy đủ tiện nghi bên trong cũng như có nhà vệ sinh khép kín để ông bà thuận tiện trong sinh hoạt hàng ngày. Đối với căn phòng ngủ của con được nhà thiết kế trang trí và tô điển cho bởi các hình họa tiết phù hợp với tính cách trẻ trung năng động của tuổi trẻ… Các thiết kế đó đều được lựa chọn sao cho phù hợp nhất và được bố trí khoa học tiện ích nhất trong sinh hoạt hàng ngày của mọi người.

Nhìn vào hình ảnh mặt bằng tổng thể nội thất phòng bếp của ngôi nhà 3 tành có thang máy chúng ta thấy cách bố trí sắp xếp nội thất một cách khoa học và gọn gàng trong thiết kế nhà bếp. sự kết hợp các tông màu tạo nên vẻ đẹp cho căn phòng bếp này với bộ bàn ghế ăn rất lịch sự và sang trọng. Thiết kế này rất phù hợp cho không gian phòng bếp nhà 3 tầng.

Sàn xaydungso.vn mang điều tuyệt vời đến bên bạn.
Đến với xaydungso.vn chúng tôi sẽ cung cấp các bạn những thông tin bổ ích nhất về xây dựng, cho bạn điểm nhìn tổng quát nhất về ngành xây dựng trong nước. Dựa trên những kiến thức đó bạn có thể sử dụng vào thực tiễn cho chính mình. Chẳng hạn như khi bạn cần thông tin về mẫu nhà 3 tầng có thang máy thì bạn tìm thông tin và từ thông tin trang web https://xaydungso.vn/ đưa ra bạn có thể sử dụng làm ngôi nhà của mình để có được những mẫu nhà mới nhất đẹp nhất cho ngôi nhà.

Chúc các bạn tìm kiếm được những thông tin hay và bổ ích từ xaydungso.vn. chúng tôi luôn đồng hành cùng các bạn trên chặng đường xây dựng tổ ấm vì một tương lai tươi sáng.
Xem thêm


































