Tùy thuộc và diện tích mà chủ kinh doanh sẽ lựa chọn phong cách thiết kế quán cafe cho phù hợp. Trong bài viết dưới đây, Xây Dựng Số sẽ gợi ý cho bạn những mẫu thiết kế quán cafe 150m2 cũng như dự toán mức chi phí thiết kế với diện tích này. Hãy cùng theo dõi và áp dụng cho mô hình kinh doanh của mình nhé.
1. Gợi ý một số tiêu chuẩn thiết kế quán cafe diện tích 150m2

Cho dù với diện tích là bao nhiêu thì việc đảm bảo cho không gian đẹp, đầy đủ công năng là điều mà mọi chủ kinh doanh đều hướng tới. Trước tiên, bạn cần phân chia không gian diện quán phù hợp. Với diện tích 150m2, chủ đầu tư nên phân chia thành các khu vực như quầy bar, khu vực dành cho khách hàng, kho... các khu vực này nên phân chia theo nguyên tắc 6-3-1 hoặc 7-2-1... để đảm bảo sự khoa học trong thiết kế.
Đối với không gian quán cafe, bạn cần phải lựa chọn chủ đề phù hợp với không gian như phong cách công nghiệp, phong cách nhiệt ffoới hoặc những phong cách thoáng mát như sân vườn, ngoài trời... Việc xác định chủ đề, phong cách thiết kế sẽ giúp việc kinh doanh của bạn hiệu quả hơn rất nhiều.
Không chỉ vậy, yếu tố thẩm mỹ trong không gian quáng cũng cần được đặt lên hàng đầu. Vậy nên, hãy trang trí không gian quán bằng những sản phẩm nội thất đẹp mắt, có kiểu dáng độc đáo, cùng với đó là đồ decor linh hoạt sẽ là cách hiệu quả cho bản vẽ thiết kế quán cafe đẹp.
Vậy chi phí thiết kế quán cafe có diện tích 150m2 là bao nhiêu?

Chi phí thiết kế quán cafe không đơn giản mà nó phụ thuộc vào nhiều yếu tố khác nhau và có nhiều caách tính khác nhau. Vì vậy, chúng tôi sẽ đưa ra gợi ý cách tính chi phí thiết kế dựa trên mét vuông. Đây là một trong những cách tính phổ biến và thường được áp dụng bởi các đơn vị thi công, thiết kế vì nó tính toán đơn giản nhất.
Cách tính phí trên một mét vuông về cơ bản bao gồm 2 tham số là diện tích dự án thiết kế và giá trị mà kiến trúc sư chấp nhận làm. Ví dụ: với quán cafe có diện tích 150m2, sau khi bàn bạc sẽ có mức thầu cơ bản khoảng 300.000 - 500.000 VNĐ/m2. Sau đó, chúng ta sẽ có được giá tiền chung là 150m2 x 300.000 – 500.000 VNĐ = tổng số tiền là 45.000.000 – 75.000.000 VNĐ. Đây là mức phí cơ bản nhất mà các đơn vị thầu xây dựng sẽ áp dụng. Tuy nhiên, mọi việc không đơn giản như vậy vì sẽ có những chi phí khác như: chi phí hoàn thiện, nội thất, đồ dùng trang trí...
Do vậy, để có được mức báo giá chính xác và đầy đủ nhất, bạn hãy liên hệ với đơn vị thiết kế, thi công để được tư vấn cụ thể và chi tiết nhất.
2. Bản vẽ thiết kế quán cafe 2 tầng 150m2 hiện đại

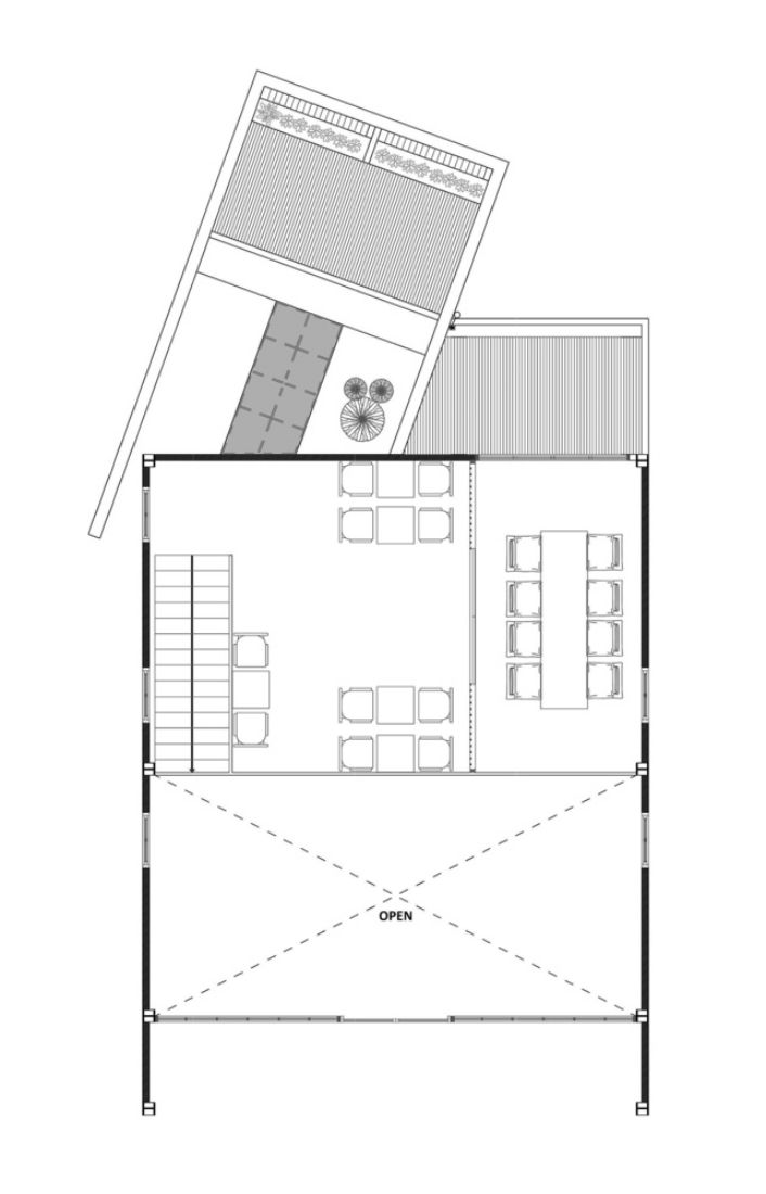
Quán cafe diện tích 150m2 với quy mô 2 tầng được phân chia không gian hợp lý. Tầng trệt là khu vực quầy bar kết hợp với dãy ghế cao, trước quầy pha chế là bộ sofa vô cùng thoải mái để khách thưởng thức cafe. Ngăn chia giữa các bộ sofa và không gian pha chế, rửa là bức tường ngăn được trang trí với kệ gỗ nhỏ xinh. Cầu thang được thiết kế ở cuối quầy kết nối không gian tầng 2.
Còn tầng 2 chủ yếu là không gian cho khách hàng, các loại bàn ghế được bố trí một cách linh hoạt và tận dụng tối đa không gian. Hơn nữa, trong thiết kế quán cafe, ánh sáng luôn là nhân tố quan trọng.

Ở mẫu thiết kế này, các kiến trúc sư đã tận dụng tối đa nguồn sánh sáng tự nhiên thông qua các ô cửa sổ. Ở những không gian xa với nguồn sáng tự nhiên, thì hệ thống chiếu sáng nhân tạo được bố trí đầy đủ, linh hoạt. Nội thất trong bản thiết kế này cũng được bố trí rất đơn giản nhưng lại mang hiệu quả cao và tạo được sự ấm cúng cho không gian. Nhà vệ sinh đều được bố trí ở cả tầng trệt và tầng 2. Như các bạn thấy, trong bản vẽ mẫu thiết kế này, các thiết bị nhà vệ sinh cũng được lựa chọn kỹ càng để đảm bảo yếu tố vệ sinh và thẩm mỹ.
3. Một số mẫu thiết kế quán cafe 150m2 đẹp

Mẫu thiết kế quán cafe nhà thép mang không gian xanh vào trong nội thất
Mẫu thiết kế sử dụng tông trắng nhẹ nhàng khiến quán cafe cuốn hút khách hàng ngay từ cái nhìn đầu tiên. Quán cafe này được thiết kế ứng dụng với sự hạn chế của những vật liệu công nghiệp bê tông hay thép mà thay vào đó là gỗ, cây xanh, những nguyên liệu gần gũi với thiên nhiên.

Không gian quán mang lại cho mỗi khách hàng là cảm giác tuyệt vời, ngồi bên trong mà cứ ngỡ lạc vào thiên nhiên, còn phía đội diện, thưởng thức cafe ngoài trời lại có cảm giác như ở bên trong. Bên cạnh đó, thiết kế sử dụng nhiều cây xanh giúp không gian quán thoáng mát và phù hợp với những khách hàng muốn tìm sự thư giãn, tận hường giây phút tuyệt vời sau ngày làm việc mệt mỏi.

Mẫu thiết kế quán cafe diện tích 150m2 hiện đại
Với lợi thế mặt tiền thoáng đẹp, chủ đầu tư đã lựa chọn phong cách, chủ để Industrial kết hợp hiện đại cho thiết kế quán cafe. Chất liệu triển khai trong mẫu thiết kế này được các kiến trúc sư rất chú trọng bởi tuổi thọ, độ bền cùng năm tháng sẽ giúp hoạt động kinh doanh được ổn đinh hơn.
Để không gian bên trong và ngoài trời được kết nối với nhau, đơn vị thi công đã thực hiện bằng việc sử dụng cửa kính. Ngoài ra, nhà thầu thi công còn thiết kế đưa mảng màu sáng như trắng, xanh của đồ nội thất kết hợp với màu đen nâu, điều này mang tới không gian quán ấn tượng. Ngoài nguồn ánh sáng tự nhiên qua ô cửa kính, kiến trúc sư đã thiết kế sử dụng đèn điện có kiểu dáng dộc đáo, hòa nhịp trong không gian quán.

Ngoài ra, chết liệu gỗ kết hợp với khung sắt hay pha trộn safe thể hiện được nét hiện đại và cao cấp. Khả năng thích nghi và chịu nhiệt của vật liệu này phù hợp ngay cả với không gian ngoài trời của quán. Bên cạnh đó, nội thất ngoài trời cũng được thiết kế với tông màu đen nổi bật. Cuối cùng, để quán có thêm không gian xanh cũng như sự tinh tế, đơn vị thi công đã đưa cây xanh vào trong không gian nội thất.

Mẫu thiết kế quán cafe 150m2 số 3
Với tông màu trấm ấm áp, mẫu thiết kế quán cafe này hướng đến sự thoải mái cho khách hàng. Quầy bar được thiết kế bằng các thanh gỗ decor độc đáo, sử dụng chất liệu gỗ bền bỉ giúp không gian quán nổi bật hơn. Không gian được thiết kế rộng rãi, nhất là phần bên trong quầy bar sẽ có 3 đến 4 nhân viên phục vụ đi lại thuận tiện. Hệ thống đèn chiếu sáng cũng được bố trí tỉ mỉ để cung cấp ánh sáng vừa đủ cho không gian rộng 150m2. Như các bạn đã thấy, tông màu chủ đạo của quán là xám kết hợp với màu nâu gỗ tạo nên sự sang trọng và phù hợp với mọi đối tượng khách hàng.

Những bức tường được trang trí bằng các hình vẽ với tông màu đen, hệ thống loa âm thanh được bố trí tinh tế tại các góc quán, kết hợp với cây xanh để không gian mát mẻ hơn. Bàn ghế bố trí khoa học, có góc riêng tư dành cho các cặp đôi hoặc những bàn dài dành cho các hội nhóm đông người. Một mẫu thiết kế hút hồn khách hàng cùng với cách bài trí nội thất tinh tế kết hợp cùng những chiếc đèn lồng đan bằng tre và mây tạo nên sự ấm áp, gần gũi với khách hàng.
4. Làm sao để thiết kế quán cafe 150m2 hiệu quả
Thiết kế quán cà phê diện tích 150m2 không hề khó, nhưng đòi hỏi bạn phải lựa chọn và hợp tác với đơn vị thiết kế, thi công chuyên nghiệp nếu muốn sở hữu một không gian đẹp. Bởi thị trường kinh doanh hiện nay rất gay gắt, nên chủ đầu tư cần phải có đước ý tưởng cũng như bản thiết kế quán cafe sao cho ấn tượng và độc đáo nhất. Vậy nên, một đơn vị thi công thiết kế uy tín với đội ngũ kiến trúc sư chuyên nghiệp, sáng tạo sẽ giúp chủ kinh doanh giải quyết được điều này.

Xây Dựng Số là sàn thương mại điện tử xây dựng với hàng ngàn nhà thầu, công ty xây dựng với hồ sơ năng lực uy tín sẽ giúp bạn nhanh chóng tìm được đối tác phù hợp. Hơn nữa, bạn sẽ được báo giá với các giải pháp khác nhau để có thể tiết kiệm được chi phí tối đa nhất. Liên hệ với chúng tôi ngay hôm nay để được tư vấn tận tình nhất.
Trên đây là những thông tin về thiết kế quán cafe diện tích 150m2 mà chúng tôi muốn gửi đến các bạn. Hi vọng với những kiến thức, kinh nghiệm này, Xây Dựng Số sẽ giúp bạn tìm được phong cách thiết kế cũng như nhà thầu, công ty xây dựng phù hợp với yêu cầu của bạn.
Xem thêm
Thiết kế quán cafe phong cách Pháp
Thiết kế quán cafe diện tích 100m2


































