Mẫu nhà cấp 4 đẹp 7x10 được xem là mẫu nhà có diện tích khá nhỏ. Với diện tích như vậy thì sẽ bố trí không gian như thế nào để vừa đáp ứng được nhu cầu sử dụng, thuận tiện di chuyển và không tốn quá nhiều chi phí. Tất cả đều có trong bài viết dưới đây.
Mặt bằng công năng bố trí khoa học dành cho mẫu nhà cấp 4 7x10
Gia chủ nào khi thiết kế ngôi nhà của mình đều mong muốn sở hữu số lượng phòng ngủ từ 2 phòng trở lên để có thể có được không gian sinh hoạt riêng tư cho từng thành viên. Vậy mẫu nhà cấp 4 7x10 này có thể bố trí bao nhiêu phòng ngủ.

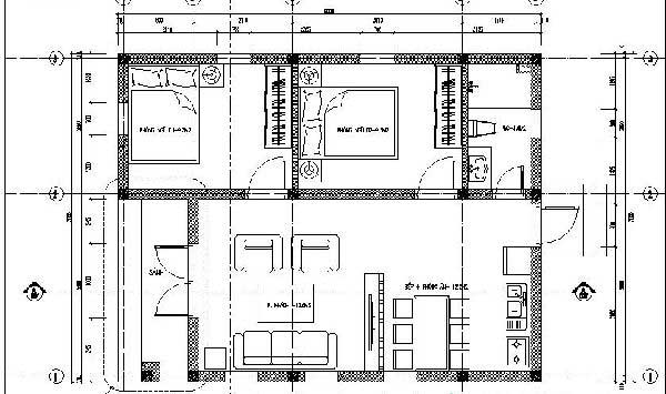
Phương án thiết kế đầu tiên dành cho mẫu nhà cấp 4 7x10 được kiến trúc sư bố trí 3 phòng ngủ rất phù hợp cho gia đình 2 thế hệ - gia đình có từ 4 đến 6 thành viên cùng nhau sinh sống dưới một mái nhà.
Với 7m mặt tiền, kiến trúc sư chia đôi diện tích này thành hai bên để dễ dàng bố trí không gian nhà, thuận tiện việc đi dây đường điện, nước, internet, điều hoà không khí, và cũng thuận lợi để gia chủ di chuyển giữa các không gian trong ngôi nhà.
Bắt đầu của ngôi nhà sẽ là hình ảnh bậc thềm tam cấp, sảnh chính với diện tích vừa đủ rồi mới đến cửa 2 cánh. Sau cánh cửa 2 cánh ấy chính là khu vực phòng khách – nơi gia chủ tiếp đón vị khách đến chơi nhà mình. Sau phòng khách là bàn ăn, khu vực bếp nấu của gia chủ. Nhìn trên bản vẽ thiết kế mẫu nhà cấp 4 7x10 này ta cũng dễ dàng nhìn thấy được việc nối thông giữa các không gian này với nhau để nhấn mạnh vào chiều sâu của căn nhà 10m mang đến cảm nhận về một không gian khá rộng rãi, giúp gia chủ tiếp đón khách được thoải mái hơn.
Phần còn lại của mẫu nhà cấp 4 7x10 là không gian với 3 phòng ngủ, và nhà vệ sinh đặt cuối nhà. 3 phòng ngủ này có diện tích tương đương với nhau, đáp ứng nhu cầu sinh hoạt từng thành viên. Khu vực nhà vệ sinh đặt cuối nhà sẽ không ám mùi lên các không gian phía trên nhà. Việc đặt nhà vệ sinh như vậy cũng sẽ thuận tiện cho việc di chuyển của gia chủ.

Phương án thiết kế mặt bằng dành cho mẫu nhà cấp 4 7x10 với 2 phòng ngủ được bố trí như sau:
Tương tự như phương án thiết kế phía trên, phần diện tích 7m được chia thành 2 phần tương đương với nhau. Một bên là phòng khách, khu vực bàn ăn và khu vực phòng bếp. Phần còn lại của mẫu nhà cấp 4 7x10 được bố trí 2 phòng ngủ với diện tích kha lớn và nhà vệ sinh được đặt ở cuối nhà. Phía cuối nhà bố trí cửa sau tại khu vực bếp để vừa thông thoáng khí, không gây ám mùi thức ăn lên các không gian phòng bên trên.
Mẫu nhà cấp 4 7x10 2 phòng ngủ phù hợp với vợ chồng mới cưới, hoặc gia đình có từ 3 đến 4 thành viên cùng nhau sinh sống. Ở phòng ngủ dành cho trẻ con có thể bố trí 2 giường đơn thay cho 1 giường đôi để thuận tiện cho nhà có 2 trẻ nhỏ.
2 phương án được đưa ra trong bài viết với mục đích tham khảo dành cho gia chủ tương lai. Dựa vào phương án nêu trên, gia chủ có những cách sắp xếp phù hợp, đáp ứng nhu cầu sử dụng. Một vài phối cảnh 3D cho không gian bên trong cho mẫu nhà cấp 4 7x10 như sau:

Không gian phòng khách lựa chọn 2 tone màu trắng và nâu cùng với ánh sáng đèn vàng, vách ngăn bằng gỗ nâu sậm mang đến tổng thể ấm cúng. Không gian phòng khách sử dụng cửa kính với tấm rèm cửa màu trắng để lấy ánh sáng vào trong phòng để tiết kiệm tối đa được điện năng tiêu thụ. Bộ sofa màu trắng với thiết kế đơn giản, điểm nhấn nằm ở chiếc gối màu vàng, đỏ đô. Điểm nhấn cả căn phòng bức tranh đầy màu sắc phía sau bộ sofa, tấm thảm lông màu sẫm và chậu cây xanh trong nhà.

Không gian bếp hiện đại hiện đại nhưng đầy sự ấm áp. Hiện đại xuất hiện ở tủ bếp màu trắng với chất liệu gỗ công nghiệp. Sự ấm áp hiện diện ở bàn gỗ kết hợp với ánh sáng vàng tạo không gian gia đình quây quần bên mâm cơm ấm áp. Không gian bếp cùng bàn ăn kết hợp với phần cửa phía sau nhà. Phần cửa này được làm bằng kính để lấy ánh sáng vào trong không gian phòng, thông thoáng mùi.

Không gian ngủ với cũng với tone màu trắng cùng với tone nâu, kết hợp cùng ánh sáng đèn led vàng mang đến không gian ấm áp. Với sự kết hợp này gia chủ sẽ có những giấc ngủ sâu nhấc, nạp năng lượng tươi mới chuẩn bị cho một ngày làm việc với 100% năng lượng.
Top mẫu nhà cấp 4 7x10 được gia chủ chú ý lựa chọn
Mẫu nhà cấp 4 7x10 được rất nhiều gia chủ lựa chọn cho ngôi nhà tương lai của mình có hình minh hoạ như bên trên đây. Lựa chọn phong cách kiến trúc tân cổ điển cho ngôi nhà mang đến hơi thở của cổ điển xen lẫn với nét hiện đại phóng thoáng, tối đa được diện tích để gia chủ sử dụng.

Nét cổ điển hiện diện rõ ràng thôgn qua cột trụ trước mặt tiền, cửa chính bằng gỗ có nét trang trí đầy tính cổ điển, bậc thêm lát đá hoa cương bên chắc vô cùng sang trọng. Và không thể bỏ qua kiến trúc giả mái điển hình của ngôi nhà tại châu Âu. Phần này ở mặt tiền được sơn xanh có sọc trắng cùng với ô cửa sổ tròn, vòm đặc trưng.
Nét hiện đại trong mẫu nhà cấp 4 7x10 này nằm ở chính việc lược bỏ những chi tiết trang trí cầu kỳ từ phần cột trụ đến cửa chính. Phần cửa chính kết hợp với chất liệu kính ở hai bên và phía trên để lấy được ánh sáng vào bên trong ngôi nhà. Phần cửa sổ sử dụng khung nhôm kính hiện đại. Xung quanh nhà được bố trí cây xanh men theo tường tạo ra được không gian xanh, tạo cảm giác gần gũi với thiên nhiên.

Mẫu nhà cấp 4 7x10 vẫn tiếp tục sử dụng kiến trúc tân cổ điển kết hợp với phần mái Thái giật cấp mang đến một không gian khá đồ sộ.
Mẫu nhà có phần móng được tôn cao lên so với mẫu nhà tương tự, xung quanh ốp đá để bảo vệ tối đa được tác động của yếu tố môi trường, tăng tuổi thọ cho toàn bộ công trình. Hệ thống cột trụ tròn với phần chân vuông vức với làm nhám sơn xám kết hợp với phần mái vòm được làm nhám sơn xám nổi bật. Phía mái nhà sau kết hợp thêm trang trí nổi bật của phong cách cổ điển. Phần cửa chính thể hiện rõ nét cổ điển bằng hình vòm nhưng kết hợp thêm nét hiện đại với phần cửa kính khung nhôm sơn vàng cực kỳ nổi bật.
Trước sân nhà được phối cảnh với hồ nước cùng với tiểu cây cảnh mang càng tô điểm thêm tổng thể kiến trúc tân cổ điển cho mẫu nhà cấp 4 7x10.

Đừng bỏ qua mẫu nhà cấp 4 7x10 bên trên đây bởi đây mẫu nhà mang đậm phong cách nhà châu Âu.
Điểm gây chú ý nhất chính là kiến trúc mái điển hình của những ngôi nhà châu Âu hiện nay. Mái chữ A có độ dốc lớn tạo thành không gian vô cùng rộng rãi phía trong. Trên mái đặt cửa sổ kính để lấy ánh sáng vào bên trong nhà. Với kiến trúc này, gia chủ có ban công nho nhỏ ở phần mái. Tại đây hoàn toàn có thể đặt được bộ bàn ghế nhỏ xinh cùng với tiểu cảnh cây xanh tạo không gian thông thoáng.

Nếu như gia chủ là fan của sự đơn giản thì đây chắc chắn là mẫu nhà mà gia chủ đang tìm kiếm.
Lựa chọn phong cách kiến trúc hiện đại với khối hộp vuông vức để tối đa được diện tích sử dụng phía bên trong của ngôi nhà. Sơn trắng cùng hệ thống cửa kính cũng là đặc điểm nổi bật khi lựa chọn phong cách kiến trúc này. Phần mái bằng giúp cho ngôi nhà trở nên nhỏ gọn hơn, phù hợp với diện tích nhỏ của mẫu nhà này.

Kiến trúc hiện đại tiếp tục hiện diện trong mẫu nhà cấp 4 7x10 này nhưng lần này kết hợp với phần mái chữ A. Phần mái chữ A mang đến tổng thể gọn gàng cho toàn bộ ngôi nhà. Phần mái này sử dụng chất liệu bằng tôn siêu nhẹ lại có chi phí khá rẻ, phù hợp với ngân sách của tất cả gia chủ hiện nay, có tuổi thọ khá lớn.
Tường nhà màu trắng cùng đường chỉ phào tạo điểm nhấn. Nổi bật là cửa kính có viền sơn nâu nổi bật, sơn tường khác màu nổi bật. Xung quanh nhà bố trí tiểu cảnh cây xanh mang đến không gian xanh, gần gũi thiên nhiên cho gia chủ sở hữu. Bao xung quanh cây xanh được ốp đá vàng sang trọng, nổi bật lại có tuổi thọ tương đối cao.
Gia chủ tham khảo mẫu nhà cấp 4 7x10 phía trên để lựa chọn được phương án thiết kế phối cảnh mặt tiền phù hợp với bản thân mình.


































