Mẫu nhà cấp 4 6x12m hiện đang rất được ưu chuộng, đặc biệt là khu vực nông thồn. Mẫu nhà này liệu có đáp ứng được đầy đủ công năng cho gia chủ sử dụng cũng như cách bố trí không gian nhà, cùng mẫu nhà cấp 4 6x12m đang được ưu chuộng nhất đến từ gia chủ hiện nay như thế nào? Cùng theo dõi bài viết ngay dưới đây.
Những bản thiết kế dành cho mẫu nhà cấp 4 6x12m nhất định gia chủ tương lai nên xem qua
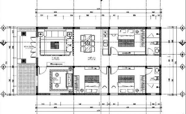
Bản thiết kế dành cho mẫu nhà cấp 4 6x12m đầu tiên mà gia chủ nhất định xem nếu như đang có ý định xây dựng mẫu nhà tương lai của mình.

Mặt bằng mẫu nhà cấp 4 6x12m này kiến trúc sư bố trí một khoảng sân trước với diện tích 7,2m2 đặt bên cạnh nhà để gia chủ có thể vừa làm khoảng sân trước nhà cho trẻ con chơi đùa, vừa làm khu vực để phương tiện cá nhân của cả gia đình, hoặc vị khách đến chơi nhà. Từ sân trước dẫn bào khu vực phòng khách của ngôi nhà. Tại khu vực này kiến trúc sư bố trí bộ bàn ghế sofa, một bàn ăn và 1 vài tiểu cây cảnh nhỏ. Nối thông với phòng khách, bàn ăn là khu vực bếp. Cuối cùng của căn nhà là khu vực nhà vệ sinh kết hợp với sân phơi thuận tiện cho gia chủ.

Giúp gia chủ có thể dễ dàng hình dung hơn cho cách bố trí, sắp xếp không gian cũng như lựa chọn đồ nội thất thì theo dõi phối cảnh 3D tương ứng mặt bằng thiết kế bên trên đây.
Tone màu chủ đạo của mẫu nhà cấp 4 là trắng kết hợp với xanh dương, màu nâu của gỗ tự nhiên tạo nên không gian thoáng mát, và xanh. Màu này rất phù hợp với điều kiện thời tiết nhiệt đới gió mùa ẩm của nước ta, đặc biệt vào mùa hè mang đến cho chính bản thân gia chủ cảm giác sự tươi mát, thư giãn, giảm căng thẳng sau một ngày làm việc mệt mỏi. Phần gạch lát lựa chọn tông màu xám, phù hợp với tổng thể, gần gũi với thiên nhiên.
Không gian khách và khu vực bếp được phân chia bởi vách ngăn màu xanh dương và khu vực bàn ăn. Không gian phòng khách lựa bộ bàn ghế gỗ khác đơn giản, mix cùng đệm gối màu trắng, kem hoặc một vài chiếc gối hoa văn để tạo điểm nhấn. Tivi sử dụng gắn tường, kệ bên dưới để một vài đồ trang trí thêm tiểu cảnh cây xanh tạo điểm nhấn không gian xanh. Điểm chú ý ở không gian này chính là phần thảm ở dưới bộ bàn ghế khi lựa chọn tấm thảm với chất liệu bằng cói tự nhiên. Với việc sử dụng này mang đến cho gia chủ sở hữu một không gian gần gũi với thiên nhiên.
Tại khu vực bàn ăn điểm nhấn hai chiếc đèn phía trên, khi bật lên tạo ra cảm giác đầm ấm của gia đình quây quần ăn cơm với nhau. Điểm nổi bật là bức tranh và hai kệ để cây nhỏ xinh.
Khu vực bếp với điểm nhấn gạch lát hoa cùng tone xanh dương với tone chủ đạo của cả căn nhà mang đến sự mới lạ cho căn bếp, cũng mang nét hơi hoài cổ. Phần tủ kệ lựa chọn chất liệu bằng gỗ với màu nâu tự nhiên cũng tạo điểm nhấn, chú ý cho mỗi vị khách đến với căn nhà.
Tiếp đến song song với khu vực bếp là khu vực phòng ngủ 1, tiếp nối là phòng ngủ thứ 2 của mẫu nhà cấp 4 6x12m. Hai phòng ngủ có diện tích tương đương nhau, đáp ứng đầy đủ nhu cầu của thành viên sử dụng.

Bản thiết kế thứ 2 dành cho mẫu nhà cấp 4 6x12m được giới thiệu trong bài viết này sẽ có cách bố trí khác biệt hoàn toàn so với mẫu bên trên. Với phần mặt tiền là 6m, kiến trúc sư chia đôi diện tích thành 2 phần bằng nhau, mỗi bên 3m, bố trí mặt bằng song song như sau:
Bắt đầu từng bên một: Với sảnh chính bằng hệ thống bậc tam cấp rồi mới đến cánh cửa 4 cánh dẫn vào khu vực phòng khách bên trong. Nối thông là khu vực bàn ăn, bếp, một phòng ngủ và nhà vệ sinh đặt cuối nhà.
Bên còn lại 3m của căn nhà là phần sân trước. Tại đây tuỳ theo nhu cầu của gia chủ để biến thành sân để phương tiện cá nhân, của vị khách đến chơi nhà hay là khu vườn nhỏ mini trong nhà. Sau đó là phòng thờ phù hợp với phong tục tập quán của người Việt từ xưa đến nay. Tiếp đến là hai phòng ngủ nối liền với nhau, trong đó có một phòng ngủ master có nhà vệ sinh bên trong. Với phòng ngủ đó phù hợp với ông bà hay bố mẹ sử dụng vì đam bảo được tính riêng tư cho người sở hữu.

Một vài mẫu phòng ngủ tham khảo cho mẫu nhà cấp 4 6x12m để gia chủ tham khảo. Ví như như mẫy đang được đề cập bên trên sử dụng phong cách hiện đại với tone màu trắng, xám kết hợp với màu gỗ tự nhiên tạo không gian sang trọng, tiện nghi. Trong căn phòng này kiến trúc sư bố trí 2 cửa sổ để lấy sáng cho không gian phòng giúp cho hạn chế việc sử dụng điện năng vào ban ngày. Điểm nhấn là bức tranh ở đầu giường, phần thảm lông bên dưới giường.

Hoặc mẫu phòng ngủ tràn ngập màu sắc như trên rất phù hợp với thành viên nhỏ tuổi trong ngôi nhà. Toen màu trắng xanh kết hợp tạo cảm giác tươi mát phù hợp với bé trai đang trong độ tuổi rất tinh nghịch hoặc một bé gái có đôi chút cá tính. Nền nhà sử dụng gạch ốp giả gỗ ấn tượng, bừng sáng căn phòng, mang đến sự sang trọng. Phần khung cửa được làm nổi bật với khung viền trắng được xem là điểm nhấn, tạo sự chú ý cho toàn bộ không gian.
Trên đây là bản vẽ thiết kế dành cho mẫu nhà cấp 4 6x12m cùng với cách bố trí, lựa chọn nội thất cho không gian. Gia chủ tham khảo và lựa chọn phù hợp với không gian nhà mình.
Mẫu nhà cấp 4 6x12m đang được ưu chuộng nhất hiện nay
Một trong những mẫu nhà cấp 4 6x12m được ưu chuộng nhất hiện nay có kiến trúc theo hướng tân cổ điển kết hợp với phần mái Thái giật cấp. Lối kiến trúc tân cổ điển là sự kết hợp giữa cổ điển và hiện đại. Cổ điển trong ngôi nhà này chính là phần cột trụ tại sảnh trước nhà. Cột trụ tròn với hoạ tiết hoa văn cầu kỳ ở phần đầu, thân kết hợp cột trụ vuông bên dưới đầy vững chãi. Cột trụ kết hợp với phần mái vòm bên trên mang đậm nét cổ điển. Phần cửa chính sử dụng gỗ tự nhiên, giữ nguyên bản màu sắc gỗ vốn có kết hợp với hoạ tiết theo hình bán nguyệt mang đầy nét cổ điển. Bậc thềm tam cấp được ốp đá granit hoa cương đen, nổi bật, phù hợp với tổng thể của ngôi nhà, mang đến sự cuốn hút khó cưỡng.

Nét hiện đại trong ngôi nhà thể hiện việc không sử dụng quá nhiều chi tiết trang trí cầu kỳ tại cột trụ, tại cửa hay khu vực mái vòm. Ô cửa sổ 4 cánh với chất liệu kính khung nhôm hiện đại, viền trắng thể hiện rõ ràng sự mạnh mẽ cũng như nét cá tính.
Đặc biệt bạn có để ý rằng ngôi nhà này có chiều cao hơn so với mẫu nhà cấp 4 6x12m không? Điều này chính bởi kiến trúc sư lựa chọn xây dựng chân nhà cao hơn so với bình thường, ốp đá nhám để bảo vệ phần chân nhà một cách tối đa khỏi yếu tố tác động của môi trường, tránh rêu, sự ẩm thấp của thời tiết để tính thẩm mỹ của ngôi nhà được duy trì.

Có 1 kiến trúc tương tự với mẫu nhà cấp 4 6x12m phía trên nhưng có thiết kế đơn giản hơn để gia chủ tương lai tham khảo. Phần cột trụ chỉ sử dụng cột trụ vuông với đường sọc giữa kết hợp với phần mái vòm ở phần cửa chính dẫn vào không gian bên trong. Phần cửa nhà sử dụng gỗ sáng màu hơn, không sử dụng hoạ tiết cầu kỳ như thiết kế bên trên, mà chỉ sử dụng bán nguyệt đơn giản. Phần cửa này sử dụng nhiều chất liệu kính hơn so với thiết kế bên trên, phần trên sử dụng hình vòm mang đậm nét cổ kính.
Ngoài phần cửa chính ở bậc tam cấp ra, mẫu nhà này sử dụng cửa phụ ngay bên cạnh có thiết kế tương tự, tuy nhiên không sử dụng vòm bên trên. Phía trên sơn màu nâu sẫm cùng hệ lam che nắng bên trên. Tương ứng là phần mái Thái giật cấp phía sau chỉ sử dụng đường chỉ phào nhẹ nhàng tạo điểm nhấn cho toàn bộ kiến trúc.

Mang vẻ đẹp hiện đại, trẻ trung nhưng sang trọng là những gì để miêu tả về mẫu nhà cấp 4 6x12m bên trên. Về kiến trúc tương tự như mẫu bên trên nhưng có một vài điểm khác biệt như sau:
Bậc tam cấp được ốp đá nâu để phù hợp với tổng thể ngôi nhà. Cửa chính dẫn vào nhà được chia rõ ràng với hai cánh cửa chính bằng gỗ, không hoạ tiết cầu kỳ chỉ sử dụng hình trong với đường viền. Hai bên cánh cửa chính là phần cửa kính dọc theo chiều dài của cửa để lấy ánh vào bên trong. Bên trên cánh cửa chính cửa kính hình vòm có vân nổi bật.
Ngôi nhà có thiết kế gờ hơi dốc để gia chủ đỗ ô tô cùng phương tiện di chuyển của mình trong sân nhà. Việc làm này giúp không gây ám mùi xe cộ vào khu vực sinh hoạt bên trong.
Hiện nay gia chủ quan tâm đến mẫu nhà cấp 4 6x12m có thêm gác lửng. Gia chủ tiến hành tham khảo các mẫu để lựa chọn được phương án thiết kế phù hợp với nhu cầu sinh hoạt của gia đình mình.


































