Bài viết dành riêng cho gia chủ đang có ý định xây dựng mẫu nhà cấp 4 7x13 trong tương lai. Chắc hẳn gia chủ đang rất đau đầu khi chưa biết bố trí không gian như thế nào cho hợp lý hay phối cảnh mặt tiền như thế nào để tạo được dấu ấn cá nhân. Tất cả những điều khiến gia chủ đau đầu ấy đã có trong bài viết dưới đây.
Mặt bằng thiết kế mẫu nhà cấp 4 7x13 khoa học, tiện nghi
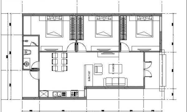
Mặt bằng thiết kế dành cho mẫu nhà cấp 4 7x13 được đưa ra trong bài viết dựa trên yêu cầu của gia chủ và sự chỉnh sửa dưới đôi bàn tay của kiến trúc sư. Khi tiến hành áp dụng trong thực tiễn nhận được phản hồi tích cực từ chính gia chủ, vô cùng thuận tiện và đánh giá khoa học. Cùng xem phương án bố trí ngay sau đây.

7m mặt tiền là đủ để phân chia thành 2 phần diện tích tương đương mỗi bên 3,5m. Với 3,5 đầu tiên, kiến trúc sư bố trí: Không gian phòng khách, không gian bếp và nhà vệ sinh. Cách sắp xếp cụ thể như sau:
Trước khi bước vào không gian sinh hoạt bên trong sẽ là hệ thống bậc tam cấp cùng sảnh chính nho nhỏ để đón tiếp vị khách đến chơi nhà. Tiếp đó là hệ thống cửa hai cánh. Với phần cửa này gia chủ có thể lựa chọn nguyên vật liệu khác nhau như kính cường lực, hệ thống cửa kính khung nhôm hay cửa gỗ sang trọng, …. Tuỳ theo nhu cầu cũng như sở thích để gia chủ lựa chọn cửa phù hợp với gia đình mình. Thông thường hiện nay, gia chủ thường lựa chọn hệ cửa kính khung nhôm với mục đích lấy sáng tự nhiên vào không gian vào ban ngày. Nếu như sợ ánh sáng quá gắt hay không đảm bảo được sự riêng tư cho gia chủ thì phương án sử dụng lớp rèm cửa bên trong cực kỳ hữu ích.
Tại vị trí phòng khách này gia chủ đặt bàn thờ của gia đình tại đây. Bởi theo quan niệm Á Đông ban thờ ở vị trí hướng ra cửa chính để tổ tiên luôn dõi theo con cháu của mình. Gia chủ sử dụng vách ngăn bằng gỗ với đường kẻ sọc để tạo không gian riêng tư nhất. Phòng khách nối thông với không gian bếp cùng với bàn ăn. Việc nối thông này giúp cho gia chủ sở hữu một không gian rộng lớn hơn, nhấn mạnh vào chiều sâu 13m của ngôi nhà. Nhà vệ sinh đặt cuối nhà vô cùng thuận tiện di chuyển và không gây ảnh hưởng tới không gian bên trên.
3,5m còn lại của mẫu nhà cấp 4 7x13 được bố trí 3 phòng ngủ liền với nhau với cùng 1 diện tích. Việc sắp xếp 3 phòng ngủ ở cùng 1 bên giúp việc đi đường dây diện, mạng, điều hoà không khí dễ dàng cùng với chi phí thi công hợp lý.

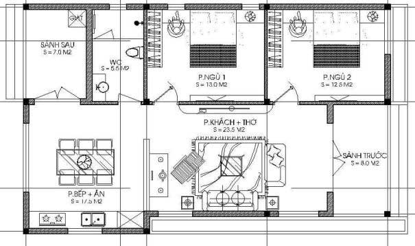
Nếu như 3 phòng ngủ dành cho mẫu nhà cấp 4 7x13 theo gia chủ sẽ dư 1 phòng ngủ, điều này là không cần thiết thì phương án thiết kế thứ 2 với 2 phòng ngủ chắc chắn sẽ đáp ứng được nhu cầu hiện tại.
Tiếp tục phân chia 7m thành 2 phần bằng nhau. 3,5m đầu tiên sẽ bao gồm: sảnh trước, phòng khách và phòng thờ, phòng bếp cùng với bàn ăn.
Sảnh trước với diện tích vừa đủ để gia chủ để phương tiện cá nhân của mình ngay trong khuôn viên nhà. Tiếp đế là cửa 2 cánh rồi tiến vào không gian với phòng khách, bàn thờ của gia đình. Khong gian này có phần khá rộng rãi giúp gia chủ tiếp đón khách đến nhà. Sau không gian ấy là phòng bếp kết hợp với bàn ăn vô cùng tiện lợi. Phòng khách và phòng bếp ngăn với nhau bằng tấm ngăn mỏng để không ảnh hưởng đến việc lưu thông khí trong nhà, đảm bảo tầm nhìn về chiều sâu 13m của ngôi nhà.
Phần còn lại của mẫu nhà cấp 4 7x13 là 2 phòng ngủ, nhà vệ sinh cùng với khu vực giặt và phần sân sau.
2 phòng ngủ được đặt liền kề với nhau có cùng một diện tích. Kế tiếp là nhà vệ sinh. Xếp sau cùng là sân sau có lối ra nối thông với khu vực bếp + bàn ăn bên kia. Phần sân sau này được gia chủ bố trí khu vực giặt và phơi đồ hết sức thuận tiện cho gia chủ.
Với bố trí 2 phòng ngủ trong mẫu nhà cấp 4 7x13 này sẽ phù hợp với gia đình ít người từ 2 đến 4 người cùng chung sống.
Cách xác định không gian cần thiết cho mẫu nhà cấp 4 7x13
Để có thể bố trí được không gian như bản thiết kế bên trên thì đòi hỏi thời gian cũng như công sức từ chính gia chủ và đơn vị thiết kế. Để có thể làm được như vậy, gia chủ lưu ý những điều dưới đây:
Trước tiên chính là mục đích xây dựng ngôi nhà này như thế nào? Mục đích xây dựng để ở bình thường, kinh doanh hay kết hợp cả hai hình thức này trong một. Từ đó xác định được không gian phía bên trong nhà cần những gì và phục vụ cho những ai. Cần gạch đầu dòng để không bỏ sót một mục đích nào cả.
Việc sắp xếp bố trí không gian sao cho khoa học trong mẫu nhà cấp 4 7x13 cũng đòi hỏi tính toán kỹ càng. Ví dụ như phòng ngủ của bố mẹ thường đặt ở vị trí đối diện với không gian phòng khách để tiện di chuyển. Hay như việc bố trí bếp ở vị trí gần cửa sau, hay vị trí cuối nhà,… tất cả đều được tính toán một cách cẩn thận.

Số lượng thành viên trong gia đình quyết định đến việc xây dựng bao nhiêu phòng ngủ. Với mẫu nhà cấp 4 7x13 thì tối đa có thể xây dựng 3 phòng ngủ. Như đã đề cập đến ở bên trên thì 3 phòng ngủ sẽ phù hợp với gia đình nhiều thành viên, thế hệ sinh sống từ 4 đén 6 người. Còn với 2 phòng ngủ phù hợp với gia đình ít người như cặp vợ chồng mới cưới hay gia đình cơ bản 4 thành viên hoặc gia đình 3 thành viên.
Dựa vào tiền lực tài chính quyết định không gian cho mẫu nhà cấp 4 7x13. Việc xây dựng nhiều không gian cùng với cách sắp xếp phức tạp tốn của gia chủ kha khá chi phí bởi cần nhiều thời gian để hoàn thiện. Cách tính tổng chi phí hiện nay dựa vào m2 x nhân công thợ tính theo m2. Phân nhân công thợ quyết định bởi phong cách thiết kế, theo yêu cầu đơn gian hay phức tạp. Nếu là người chưa có kinh nghiệm hay tìm đến đơn vị xây dựng uy tín để sở hữu được không gian khoa học nhất.
Phối cảnh mặt tiền cho mẫu nhà cấp 4 7x13 với chi phí chỉ từ 500 triệu đồng
Mẫu nhà cấp 4 7x13 khá quen thuộc, xuất hiện rất nhiều hiện nay lựa chọn phong cách kiến trúc hiện đại kết hợp với phần mái Thái giật cấp mang lại ấn tượng cho người đối diện.

Lựa chọn toen màu không nổi bật nhưng đày tính nhẹ nhàng, bắt mắt, phù hợp với mọi gia chủ hiện đại. Điểm nhấn là tường sơn trắng, là khung cửa chính hay cửa sổ bằng chất liệu kính có khung sơn đen vô cùng ấn tượng. Ngôi nhà này cũng trở nên cao ráo hơn nhờ vào hệ thống bậc tam cấp, vào phần mái có độ dốc lớn bên trên.
Đừng bỏ qua phần mái ngói cam hết sức nổi bật giữa khung cảnh thiên nhiên bao phủ. Một vài cây xanh trước cửa sổ nhà tạo nên không gian hài hoà với thiên nhiên.

Mẫu nhà cấp 4 7x13 sẽ không thể thiếu kiến trúc chữ L giúp nâng cao được diện tích sử dụng cho gia chủ bên trong nhà. Để phù hợp với kiến trúc kha khá lớn này lựa chọn mái Thái giật cấp sẽ giúp cho ngôi nhà sở hữu kích thước đồ sộ hơn, khiến bất cứ ai đi ngang qua sẽ đều phải chú ý đến.
Tone màu trắng chủ đạo, nổi bật là cửa kính khung sắt được sơn giả gỗ, hệ thống cột trụ vuông vững chãi kết hợp với kiến trúc mái vòm với điểm nhấn ốp đá nhám ở sảnh chính trước nhà mang đến dáng dấp sự cổ điển nhưng thể hiện phần nào sự hiếu khách của gia chủ.

Tuyệt đối không bỏ qua mẫu nhà cấp 4 7x13 sử dụng kiến trúc mãi chữ A mang đến tổng thể gọn ngàng.
Phần nhưng nhà nổi bật với những hình khối vô cùng vững chãi, đặc trưng của phong cách kiến trúc hiện đại. Điểm nhấn là ốp đá cột trụ hay phần tường ở khu vực mặt tiền. Thêm phần khung cửa sơn gỗ vô cùng nổi bật tại cửa chính và cửa sổ. Ánh sáng được hắt ra từ phía trong nhà mang đến sắc màu lung linh, rực rỡ,
Xung quanh ngôi nhà được bao bọc bởi thiên nhiên qua hoa lá mang đến cảm nhận gần gũi với thiên nhiên cho gia chủ. Sau mỗi 1 ngày làm việc mệt mỏi được trở về với một ngôi nhà như thế này thì còn gì bằng. Chắc chắn rằng năng lương luôn được nạp mới giúp gia chủ hứng khởi mỗi ngày.
Trên đây là những mẫu nhà cấp 4 7x13 hot nhất hiện nay, được gia chủ vô cùng ưu chuộng, quan tâm.


































