Xây dựng nhà trong diện tích chỉ vọn vẹn 70m2 với quy mô xây dựng 1 tầng đòi hỏi kiến trúc sư lẫn gia chủ đầu tư nhiều thời gian, công sức vào trong công trình này. Vậy cách bố trí không gian trong mẫu nhà cấp 4 diện tích 70m2 như thế nào? Mẫu nhà nào đang thu hút sự chú ý của gia chủ trong thời gian hiện nay?
Bố trí không gian nhà cấp 4 70m2 như thế nào cho hợp lý?
70m2 là diện tích xếp vào loại nhỏ trong diện tích xây dựng nhà ở dân sinh hiện nay. Càng nhỏ như vậy đòi hỏi người thực hiện thiết kế và thi công phải dành rất nhiều thời gian cũng như công sức để sắp xếp không gian sao cho hợp lý nhất. Cùng xem bố trí mặt bằng không gian nhà cấp 4 70m2 tham khảo như sau:

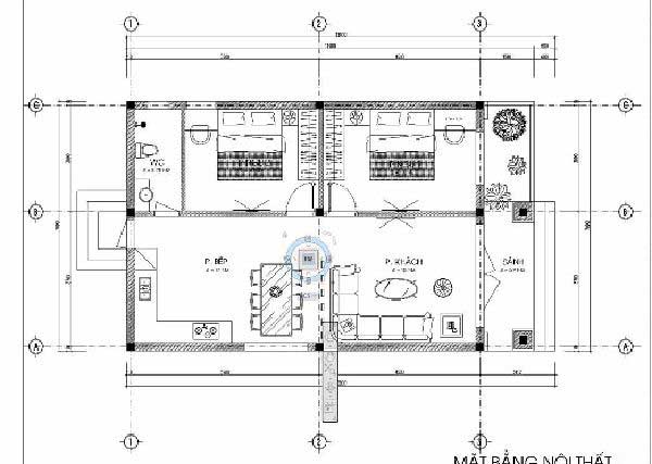
Trong mẫu mặt bằng dành cho mẫu nhà cấp 4 70m2 này, kiến trúc sư tiến hành chia đôi diện tích chiều ngang của ngôi nhà thành 2 bên bằng nhau, cùng với đó là đặt vị trí không gian phòng song song với nhau.
Bắt đầu khám phá bản thiết kế mặt bằng này từ sảnh chính của ngôi nhà. Vì diện tích trên 50m2 nên bắt buộc gia chủ phải có không gian xanh trong ngôi nhà nên kiến trúc sư sử dụng triệt độ phần diện tích tại sảnh trước của ngôi nhà để bố trí tiểu cảnh cây xanh. Một bên là sảnh chính với hệ thống bậc tam cấp và hệ thống cột trụ vô cùng vững chãi. Một bên còn lại được bố trí vài chậu cây xanh vừa tạo được không gian thông thoáng vừa giúp hạn chế được bụi bẩn vào trong không gian của ngôi nhà.
Từ sảnh chính bước vào là không gian phòng khách, nhìn thông ra là không gian phòng bếp và khu vực bàn ăn của cả gia đình. Hai không gian này được nối thông, phân chia bởi khu vực bàn ăn để nhắm tạo ra không gian rộng rãi, nhấn mạnh vào chiều sâu của ngôi nhà, giúp cho gia chủ tiếp đón vị khách tới chơi trong một không gian khá rộng.
Phần còn lại của ngôi nhà được bố trí hai phòng ngủ có diện tích tương đương với nhau, nhà vệ sinh đặt ở vị trí cuối nhà để không làm ảnh hưởng đến không gian phía trên, thuận tiện cho việc di chuyển của chủ nhà.
Với cách sắp xếp và bố trí như trên, mẫu nhà cấp 4 70m2 này đáp ứng nhu cầu sinh hoạt từ 3 đến 4 thành viên sinh sống. Nếu gia chủ có 2 con nhỏ, thì một phòng ngủ thay vì sử dụng giường đôi như trên có thể sử dụng giường đơn, hoặc giường tầng để đáp ứng nhu cầu sinh hoạt.
Phương án thiết kế thứ 2 dành cho mẫu nhà cấp 4 70m2 có thêm gác lửng trong thời gian gần đây đang thu hút được rất nhiều sự quan tâm đến từ gia chủ. Bởi vừa nâng cao được diện tích sử dụng mà tổng chi phí xây dựng lại chỉ nằm trong tầm giá nhà cấp 4 mà thôi, hoặc có chênh lệch thì cũng không đáng kể. Cùng xem mặt bằng phối cảnh 3D của phương án thiết kế thứ 2 này ngay bên dưới đây.

Với không gian tầng 1 bao gồm phòng khách, bàn ăn kết hợp với không gian bếp. Hai không gian phòng khách và bếp được ngăn cách với nhau bởi 1 tủ gỗ được tận dựng làm tủ trang trí cho cả hai không gian. Cầu thang thông với gác lửng được đặt cuối nhà cùng với cửa phía sau nhà, có thêm một vài tiểu cảnh cây xanh. Để tiết kiệm diện tích cho căn nhà có diện tích 70m2 này, kiến trúc sư bố trí ngay một nhà vệ sinh với đầy đủ tiện nghi ngay dưới chân cầu thang dẫn lên gác lửng.
Nhìn vào phối cảnh 3D này ta nhìn rõ hai cửa trước và sau của ngôi nhà gia chủ đều lựa chọn phần cửa kính khung nhôm viền trắng vô cùng nổi bật, lại giúp cho không gian bên trong nhà có thể lấy được nhiều nhất ánh sáng vào ban ngày, giúp gia chủ tiết kiệm được một khoản kha khá. Hơn nữa việc sử dụng hai cửa thông như vậy giúp cho ngôi nhà của bạn lưu thông luồng khí tốt hơn, không ám mùi đồ nấu lên các không gian khác.

Với khu vực gác lửng cho mẫu nhà cấp 4 70m2 sẽ bố trí như sau, tính từ khu vực cầu thang gác lửng lên: 2 phòng ngủ liền và 1 không gian sinh hoạt chung, có thể làm không gian phòng đọc sách.
Thêm 1 phương án thiết kế cho mẫu nhà cấp 4 70m2 như sau:

Kiến trúc sư sử dụng 1 cửa một cách cho lối vào cửa chính của ngôi nhà. Bắt gặp ngay không gian đầu tiên là khu vực phòng khách với bộ sofa đơn giản. Tại phòng khách bố trí hệ thống cửa kính 3 cánh để lấy ánh sáng cũng như mang đến một tầm nhìn ra khu vườn nhỏ của ngôi nhà. Tại khu vườn mini này, kiến trúc sư bố trí bộ bàn ghế nhỏ, một vài tiểu cảnh cây xanh. Từ phòng khách nhìn thấy không gian bếp ăn nằm phía bên phải của ngôi nhà. Từ không gian bếp đi vào bên trong là nhà vệ sinh chung của cả gia đình. Hơi chếch sang phía đối diện là phòng ngủ. Phía cuối nhà không gian của phòng ngủ master với nhà vệ sinh bên trong.
Gia chủ tham khảo 3 mẫu thiết kế dành cho nhà cấp 4 70m2 bên trên để sở hữu một ngôi nhà trong tương lai với đầy đủ tiện ích, đáp ứng nhu cầu sử dụng của thành viên trong gia đình.
Chi phí xây dựng cho mẫu nhà cấp 4 70m2 này là bao nhiêu?
Để có thể tính toán được chi phí xây dựng cho mẫu nhà cấp 4 70m2, gia chủ cần phải tìm hiểu phương thức xây dựng hiện nay như thế nào?
Trên thị trường hiện nay phân chia thành 2 hình thức xây dựng: 1 là xây dựng trọn gói và 2 là xây dựng nhà thầu thi công, nhân công thực hiện.
Với hình thức thứ nhất xây dựng trọn gói hay còn gọi là chìa khoá trao tay có mức giá dao động từ 4 triệu đồng/m2 đến 6,5 triệu đồng/m2. Mức giá này tuỳ theo vật liệu xây dựng mà gia chủ lựa chọn như sau:
Vật liệu xây dựng chất lượng trung bình: 4 triệu đồng/m2.
Vật liệu xây dựng chất lượng khá: 4,5 triệu đồng/m2.
Vật liệu xây dựng chất lượng tốt 2: 5 triệu đồng/m2.
Vật liệu xây dựng chất lượng trung bình: 6,5 triệu đồng/m2.
Với hình thức xây dựng này rất phù hợp với gia chủ không có nhiều thời gian để giám sát, chưa có nhiều kinh nghiệm trong việc xây dựng nhà ở.
Hình thức xây dựng thứ 2 là nhà thầu thi công, nhân công thực hiện. Hình thức này mức giá dao động từ 1,3 triệu đồng/m2 đến 1,6 triệu đồng/m2. Có thể hiểu hình thức này với từng hạng mục thi công gia chủ sẽ đứng ra lo liệu mọi việc, giám sát công việc 24/24h.
Tuỳ theo nhu cầu, nguồn ngân sách mà gia chủ lựa chọn hình thức xây dựng phù hợp với mẫu nhà cấp 4 70m2.
Mẫu nhà cấp 4 70m2 nào đang được gia chủ chú ý đến trong thời gian gần đây

Mẫu nhà cấp 4 70m2 vô cùng sang chảnh hiện này đang xuất hiện trong bài viết này. Lựa chọn phong cách kiến trúc hiện đại với khối hộp vuông tối đa được diện tích sử dụng cho gia chủ sở hữu. Kết hợp thêm phần mái chữ A thoải, màu nâu mang đến sang trọng cho toàn bộ không gian. Phần cửa có sử dụng chất liệu bằng gỗ cho cửa chính, cửa sổ sơn gỉa gỗ mang đến sự sang trọng cho kiến trúc của ngôi nhà.
Điểm cộng của mẫu nhà này chính là bố trí cây xanh xung quanh nhà mang đến không gian xanh mát từ thiên nhiên, cho gia chủ cảm giác thoải mái, thư giãn mỗi khi về nhà.

Mẫu nhà cấp 4 70m2 sử dụng hệ thống mái Thái giật cấp kết hợp với phong cách kiến trúc tân cổ điển cũng mang đến cho gia chủ sự sang trọng – Đây cũng là mẫu nhà được gia chủ ưa chuộng hiện nay. Cửa chính được làm bằng gỗ tự nhiên cùng với hoạ tiết gia công bằng tay ở phía trên vô cùng tỉ mỉ. Sảnh chính với hệ thống bậc tam cấp kết hợp hệ thống cột trụ tròn cùng chân trụ vuông vực làm nên sự vững chắc cho ngôi nhà. Đặc biệt kiến trúc mái giả với đặc trưng cửa vòm chính là điểm nổi bật của ngôi nhà này. Đừng bỏ qua chi tiết đường chỉ phào ở bức tường của ngôi nhà cũng là một trong những đường nét của kiến trúc cổ điển.
Hiện đại ẩn mình trong khung cửa sổ được làm bằng khung sắt sơn giả gỗ vô cùng ấn tượng. Không gian xanh được bố trí xuyên suốt xung quanh ngôi nhà mang lại cho gia chủ một không gian gần gũi với thiên nhiên.

Mẫu nhà cấp 4 70m2 không thể bỏ qua đó là kiến trúc hiện đại kết hợp với mái xéo ấn tượng. Nếu như mái bằng đã trở nên quen thuộc, khiến mẫu nhà nào trông cũng giống như nhau thì gia chủ tương lai mạnh dạn lựa chọn ý tưởng thiết kế bên trên.
Chú ý vào phần mái xéo được làm cao hơn kết hợp độ dốc vừa phải của phần mái mang đến kiến trúc khá đồ sộ. Kiến trúc mái cao để chống nóng hiệu quả. Mái xéo cũng sẽ không gây ứ đọng nước khi mưa, bảo vệ phần mái, phần trần bên trong nhà được tốt hơn.
Thêm nữa là phần vườn treo của mẫu nhà cấp 4 70m2 này. Ý tưởng vườn treo với cây xanh được treo bên trên, kết hợp để thành gara oto tiện lợi, là sân chơi cho trẻ con trong nhà cũng cực kỳ hữu ích. Gia chủ tham khảo mẫu nhà cấp 4 70m2 bên trên để lựa chọn được mẫu nhà phù hợp với chính bản thân mình.


































