Hiện nay mẫu nhà 3 tầng đang được ưa chuộng nhất. Thực tế có rất nhiều mẫu nhà nhưng mẫu nhà 3 tầng 2 mặt tiền với diện tích là 7 x 12 m2 đều được mọi người lựa chọn làm tổ ấm cho mình. Tuy diện tích để xây dựng ngôi nhà không mấy rộng nhưng rất phù hợp cho các gia đình mặt phố và có đông thành viên sống chung. Trong phạm vi bài viết hôm nay chúng tôi sẽ trình bày về các mẫu nhà 3 tầng 2 mặt tiền 7 x 12m2. Mời các bạn cùng chú ý theo dõi bài viết.
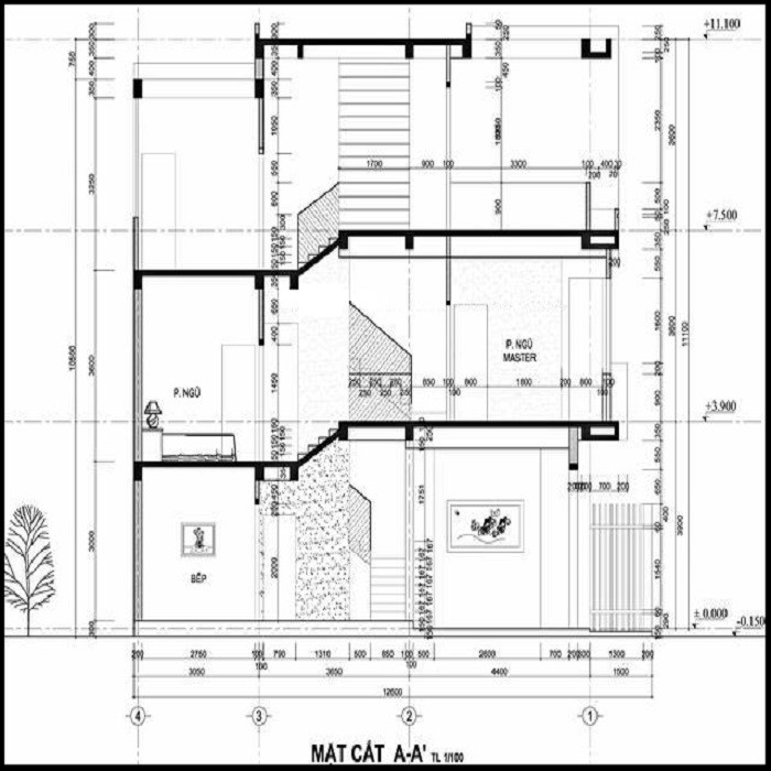
Phối cảnh bản vẽ ngôi nhà 3 tầng 2 mặt tiền 7 x 12m2.

Hình ảnh trên đây chính là hình ảnh mà chúng tôi đưa ra cho các bạn quan sát về phối cảnh bản vẽ nhà 3 tầng 2 mặt tiền 7 x 12m. Khi quan sát bản vẽ rõ ràng chúng ta thấy phân chia 3 tầng rành mạch và các phòng được thiết kế cụ thể và chi tiết. Trong phối cảnh còn vẽ chi tiết cả gala để xe oto cho gia chủ. Đối với tầng một của ngôi nhà được phân chia các phòng rõ ràng và được bố trí như sau: Đầu tiên là gala chỗ để xe gia đình, tiếp theo chúng ta thấy ngay một căn phòng đặc biệt mà bất cứ ngôi nhà nào cũng có và đặc bố trí tầng một của ngôi nhà đó là phòng khách. Một căn phòng đầy đủ tiện nghi nội thất như tủ gỗ bàn uống nước và kệ ti vi hay các tủ trang trí như tủ rượu và có thể là các tủ trang trí đồ lưu niệm. Từ phòng khách chúng ta đi sâu vào bên trong chính là phòng bếp, một căn phòng tuy nhỏ nhưng ấm nồng hương vị ẩm thực của gia đình Việt. Nơi đây là chỗ cho người phụ nữ tài ba của gia đình trổ tài về nội trợ. Và dành hết tình cảm của mình cho bữa cơm sum họp buổi tối bên các thành viên trong gia đình.

Hình ảnh về phối cảnh bản vẽ ngôi nhà 3 tầng 2 mặt tiền 7 x 12m cho bạn thấy cách bố trí và sắp xếp các nội thất ngôi nhà hay trang trí phòng rất linh hoạt. Cách thiết kế này chứng tỏ bạn là một người có tầm hiểu biết rộng và có kinh nghiệm trong vấn đề thiết kế nội thất ngôi nhà. Cách bố trí đó tạo cho các hoạt động sinh hoạt hàng ngày của các thành viên trong gia đình trở nên thuận tiện hơn.

Nhìn về hình ảnh phối cảnh bản vẽ ngôi nhà 3 tầng 2 mặt tiền trên chúng ta thấy sự phân chia phối cảnh về 3 tầng rõ ràng và được thiết kế bố trí công năng của các phòng rất chi tiết phù hợp với không gian ngôi nhà 3 tầng 2 mặt tiền 7 x 12m. quan sát bản vẽ chúng ta có thể hình dung được nội thất và tổng thể không gian ngôi nhà 3 tầng 2 mặt tiền với diện tích là 7 x 12m.
Hình ảnh 3D đẹp cho mẫu nhà 3 tầng 2 mặt tiền 7 x 12m.
Vừa rồi chúng tôi có chia sẻ về phối cảnh bản vẽ về nhà 3 tầng 2 mặt tiền diện tích là 7 x 12m đẹp. Để các bạn có thể dễ dàng nhận biết các mẫu nhà 3 tầng 2 mặt tiền 7 x 12m thì sau đây chúng tôi mời các bạn cùng tham khảo một số mẫu nhà 3 tầng 2 mặt tiền đẹp.

Đây là một hình ảnh quá tuyệt vời đúng không các bạn? nếu bạn đang có ý định xây nhà mà chưa tìm được mẫu nhà ưng ý thì đây chính là mẫu nhà phù hợp nhất cho bạn. Với diện tích là 7 x 12m chúng ta có thể xây dựng ngôi nhà 3 tầng với 2 mặt tiền đẹp như vậy. Mảnh đất bạn đang sở hữu có vị trí đắc địa chính lag điều thuận lợi nhất để bạn có thể xây nhà sinh sống và có thể kết hợp kinh doanh các dịch vụ khác thu lợi nhuận cao.
Đối với các ngôi nhà có 2 mặt tiền đều thuận lợi và là yếu tố bàn đạp cho kinh doanh phát triển đi lên. Quan sát ngay hình ảnh mẫu nhà 3 tầng 2 mặt tiền trên chúng ta thấy ngay một thiết kế tuyệt đẹp bởi sự kết hợp giữa hiện đại và cổ điển tạo ra bản thiết kế tân cổ điển trêm mẫu nhà này. Mẫu nhà 3 tầng 2 mặt tiền 7 x 12m được xây dựng hiện đại đơn giản các đường nét tinh tế kết hợp mái thái tôn nên vẻ đẹp sang trọng cho ngôi nhà. Ban công của mỗi tầng được trang trí bởi cây xanh cây cảnh tạo không gian xanh trong căn nhà và thêm không khí trong lành nhất đến với các thành viên trong gia đình. Phần chân tường được thiết kế và thi công bởi gạch đá màu xám giảm đi độ bụi bẩn cho ngoại thất ngôi nhà. Đặc điểm lợi của loại gạch này là dễ dàng có thể cọ rửa bởi nó có tính trơn bóng đánh bay vết bẩn nhanh. Đây quả là một thiết kế tuyệt vời cho mẫu nhà 3 tầng 2 mặt tiền 7 x 12m.

Khi nói đến mẫu nhà 3 tầng 2 mặt tiền đẹp tức là một nhà được trang trí cả hai mặt với các thiết kế hiện đại và đẹp như một mặt chính. Bởi mẫu nhà 3 tầng 2 mặt tiền đều được đánh giá là ngôi nhà đắt giá nhất. Các phần bên trong ngôi nhà được trang trí tỉ mỉ kì công bao nhiêu thì phần mặt tiền của ngôi nhà càng càng cần cẩn thận và kỹ xảo bấy nhiêu. Lý do là mặt tiền của ngôi nhà cũng như bộ mặt của gia chủ do vậy chúng ta cần chú ý đến và trang trí nó thật là đẹp để có thể hãnh diện cùng bạn bè.
Tiếp tục là một mẫu thiết kế nhà 3 tầng 2 mặt tiền mái thái với các đường nét thiết kế đơn giản, tinh tế khi kết hợp các họa tiết trang trí nhà thêm nổi bật và kết hợp lắp đặt lan can các tầng đều được thiết kế là chất liệu sắt nghệ thuật được phun màu sơn vàng đồng tạo nên không gian sang trọng cho ngôi nhà. Hệ thống cây xanh lại được trang trí tại các ban công thêm không gian xanh cho ngôi nhà. Điểm nổi bật của mẫu nhà này là hàng dào cổng được thiết kế xây dựng như bức tường tô điểm là các hàng vòm trang trí song sắt tạo độ thoáng cho toàn cảnh ngôi nhà. Màu sơn chủ đạo cho toàn ngôi nhà là màu trắng tinh khôi và huyền thoại tạo vẻ đẹp trang trọng nhưng lại huyền bí. Đây chính là mẫu nhà đẹp và phù hợp cho không gian gia đình.

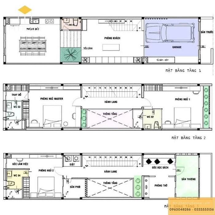
Mặt bằng tổng thể nội thất cho nhà 3 tầng 2 mặt tiền 7 x 12m.

Một ngôi nhà đẹp và hoàn mỹ không chỉ được đánh giá bởi vẻ đẹp ngoại thất và ngay cả nội thất ngôi nhà cần có sự trau truốt được bày trí gọn gàng khoa học và tiện nghi khi sử dụng. Sau đây là các mẫu nội thất đẹp phù hợp cho nhà 3 tầng 2 mặt tiền.

Hình ảnh trên là bản vẽ về mặt bằng bố trí nội thất cho ngôi nhà 3 tầng 2 mặt tiền được thiết kế hiện đại và tiện nghi. Nội thất các phòng sắp xếp phù hợp với nhu cầu sử dụng của các thành viên trong gia đình. Mang đến cảm giác ấm cúng và thoải mái nhất cho bạn.
Trong năm 2021 xu hướng thiết kế nội thất đương đại lên ngôi và mẫu nhà trên chính là đại diện cho xu hướng đương đại này. Không phải ngẫu nhiên mà xu hướng này lại được ưa chuộng và trở nên thu hút đến thế. Vì vậy nếu bạn là người hiện đại và thường xuyên nghiên cứu những xu hướng mới nhất trên thế giới cũng như ở Việt Nam hãy liên hệ với chúng tôi để được tư vấn ngay nhé. Chắc chắn sẽ khiến bạn và gia đình có một phong cách hoàn toàn khác biệt.

Về mẫu hình chúng tôi đăng tải trên bài là tổng thể chi tiết toàn bộ về ngôi nhà từ thiết kế nội thất đến ngội thất các phòng và hình ảnh về mẫu nhà 3 tầng 2 mặt tiền. Cho các bạn có thể tự hình dung và liên tưởng đến ngôi nhà mà mình định xây dựng.
Sàn xaydungso.vn tốt nhất cho lựa chọn của bạn.
Khi bạn đã chuẩn bị đầy đủ về vật chất và tinh thần chỉ cần có nhà thầu xây dựng uy tín là công trình sẽ được khỏi công xây dựng. Vậy để có nhà thầu xây dựng uy tín thì chúng tôi mời các bạn cùng đến với https://xaydungso.vn để được tư vấn đề công ty thi công xây dựng uy tín trên các tỉnh thành. Cho dù bạn ở nơi đâu trên 54 tỉnh thành tại nước Việt Nam thì chúng tôi hứa sẽ chăm sóc và tư vấn miễn phí nhiệt tình cho các bạn. Các bạn hãy liên hệ ngay với sàn xây dựng số để có những mẫu thiết kế nhà 3 tầng 2 mặt tiền 7 x 12m đẹp nhất hiện đại nhất nhé.

Các chia sẻ trên sẽ giúp các bạn tìm được mẫu nhà thích hợp với mình nhất. Chúc các bạn có được mẫu nhà hợp lý và đẹp nhất từ sàn xaydungso của chúng tôi.
Xem thêm
Thiết kế nhà 3 tầng 2 mặt tiền mái thái
Mẫu thiết kế nhà 3 tầng hình L


































