Với những ưu điểm lớn như mang đến sự sang trọng, bề thế, không gian sống tiện nghi, hữu ích... Chính vì vậy trong những năm gần đây những mẫu biệt thự đẹp ngày càng được ưa chuộng. Nắm bắt được sự quan tâm rất lớn này từ phía các chủ đầu tư. Bài viết của chúng tôi hôm nay sẽ giúp các chủ đầu tư có được những mẫu nhà biệt thự 7x15m đẹp mê mẩn lòng người, thu hút sự quan tâm của rất nhiều chủ đầu tư trên cả nước.
Hình ảnh 3D mẫu nhà biệt thự 7x15m đẹp mê mẩn lòng người
Để các chủ đầu tư có cho mình những mẫu thiết kế biệt thự cho diện tích 6x20m chúng tôi xin được giới thiệu đến các chủ đầu tư những mẫu biệt thự đẹp thu hút mọi ánh nhìn qua các phong cách mái mới nhất năm 2021.

Phần mái của ngôi nhà đóng vai trò quyết định phần nhiều đến vẻ đẹp, phong cách của ngôi nhà. Mỗi phong cách sẽ mang đến một vẻ đẹp riêng, chi phí xây dựng riêng, mỗi hình thức mái mang những ưu, nhược điểm khác nhau. Tùy vào sở thích cũng như kinh phí của gia đình mà bạn chọn mẫu thiết kế sao cho phù hợp nhất. Hiện nay trên thị trường xây dựng có rất nhiều phong cách, kiểu dáng khác nhau mà bạn có thể thoái mái lựa chọn.

Về phong cách theo hệ mái thì các chủ đầu tư có thể tìm hiểu là đưa ra quyết định lựa chọn với phong cách mái vòm kiểu cổ điển. Đây chính là đặc trưng của phong cách cổ điển Pháp, những chủ đầu tư có thế mạnh, có tiềm lực về kinh tế hoàn toàn có thể biến ngôi nhà của mình trở thành một căn biệt thự lộng lẫy, nguy nga qua phong cách mái vòm cổ điển.

Như chúng ta biết rằng ngoài phong cách mái vòm thì mái thái được xem là phong cách được ưa chuộng nhiều nhất trong thời gian gần đây, đặc biệt là mái thái xuất hiện ở những khu vực nông thôn ngày càng nhiều. Với ưu điểm là đa dạng về màu sắc, trang trọng về kiểu dáng, nhanh chóng khi thi công, ấm áp vào mùa đông, mát mẻ vào mùa hè nên hệ mái thái có mặt ở mọi nhà, mọi nơi trên mọi miền Tổ Quốc.

Tuy nhiên để lựa chọn nhiều nhất cho căn biệt thự 7x15m có lẽ phải kể đến đó là những căn biệt thự theo phong cách mái bằng. Bởi lẽ diện tích 7x15m là những căn biệt thự thường xuất hiện ở những khu vực thành phố lớn, nên có lẽ mẫu biệt thự mái bằng kết hợp với không gian xanh ở sân thượng vẫn là sự lựa chọn được xem là tối ưu nhất tính đến thời điểm hiện tại.
Hệ mái thái được dùng cho những thiết kế biệt thự nhà phố, nhà ống rất phù hợp với diện tích 7x15m, hãy quan sát bức ảnh phối cảnh để thấy được điểm nhấn riêng của phần mái ngôi nhà. Đặc biệt kiểu mái thái này mang đến rất nhiều ưu điểm cho người sử dụng, phần mái có chi phí cao hơn mái bằng nhưng đổi lại nó chính là điểm nhấn tuyệt vời của căn biệt thự, chắc chắn sẽ khiến những ai lần đầu tiên chiêm ngưỡng ngôi nhà sẽ phải trầm trồ về vẻ đẹp này đó nhé.

Về phong cách mái chúng ta còn phải kể đến đó là hệ mái lệch. Nếu bạn thích căn biệt thự của gia đình mình mang một lối đi riêng, phá cách độc đáo, mới lạ thì bạn không cần phải chần chừ mà hãy tìm hiểu và lựa chọn mẫu biệt thự 7x15m mái lệch rất đặc trưng, bắt mắt của chúng tôi. Chắc chắn khi có sự góp mặt của căn biệt thự này những ngôi nhà xung quanh căn biệt thự của bạn đều sẽ bị lu mờ bởi tính năng nổi bật thu hút mọi ánh nhìn của phong cách mái lệch.

Đó là các phong cách theo hệ mái, còn đối với phong cách tổng thể cho căn biệt thự 7x15m chúng ta phải kể đến các phong cách đang nổi bật trên thị trường xây dựng nội thất đó là các phong cách như cổ điển, tân cổ điển, phong cách hiện đại. Đầu tiên với phong cách cổ điển, bạn đừng nghĩ rằng với diện tích 7x15m thì không phù hợp với phong cách cổ điển, hoàn toàn không phải như vậy, khi thiết kế theo phong cách cổ điển căn biệt thự 7x15m vẫn hoàn toàn toát lên thần thái của một căn biệt thự nguy nga, lộng lẫy.
Phối cảnh bản vẽ biệt thự 7x15m đẹp nhất hiện nay

Dưới sự cụ thể của bản vẽ cho căn biệt thự 7x15m chúng ta có thể nhận thấy rằng ở căn biệt thự 3 tầng này đáp ứng đầy đủ công năng sử dụng từ các phòng sinh hoạt chung đến phòng sinh hoạt riêng, thậm chí là cả những không gian phụ như sân phơi, sảnh chính, sảnh phụ...
Ngoài ra điều đáng chú ý của căn biệt thự này còn ở chỗ ngoài việc cụ thể chi tiết từng phòng chức năng, ta còn thấy sự kĩ lưỡng được thể hiện ở cả vòng tròn phong thủy, tùy từng hướng mà có sự sắp xếp các phòng chức năng sao cho đón được vượng khí một cách tốt nhất đảm bảo yếu tố phong thủy để đón tài lộc, sức khỏe cho các thành viên trong gia đình, biết cách tránh các cung mệnh xấu không tốt cho gia chủ và các thành viên trong gia đình.

Dù thiết kế theo phong cách nào bạn cũng cần phải có hướng tính toán cho phù hợp với diện tích và công năng sử dụng đối với mỗi thành viên trong gia đình. Ở căn biệt thự này ngay ở tầng 1 của ngôi nhà được bố trí với 1 khu sinh hoạt chung tại đây thì phòng khách và phòng bếp không tạo vách ngăn mà được bố trí thông nhau tạo ra một khoảng không gian rộng rãi, thoáng đãng cho khu vực sinh hoạt chung của gia đình. Ngoài ra ở khu vực tầng trệt của ngôi nhà được thiết kế thêm với 2 phòng ngủ. Dù gia đình bạn có đông thành viên thì vẫn đảm bảo công năng sử dụng đầy đủ, tiện nghi thuận lợi nhất.
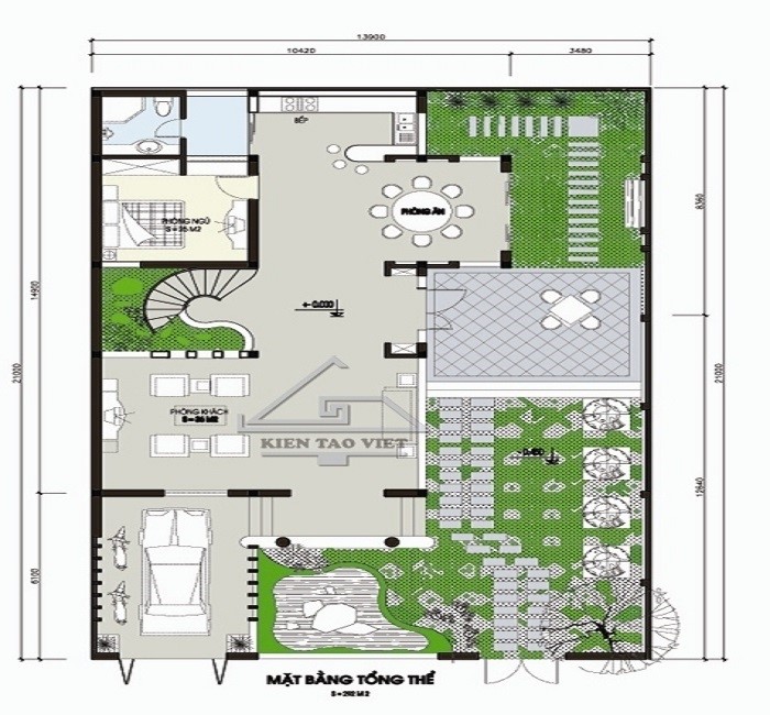
Mặt bằng tổng thể nội thất biệt thự 7x15m

Trên đây là mặt bằng tổng thể nội thất cho căn biệt thự có diện tích 7x15m. Với cụ thể từng hạng mục, từng phòng chức năng được thiết kế một cách hợp lý, hài hòa. Sao cho đảm bảo đáp ứng không chỉ về mặt thẩm mỹ mà còn cần đảm bảo cả yếu tố công năng sử dụng. Ở mặt bằng tổng thể cho tầng trệt của căn biệt thự 7x15m trên đây của chúng tôi các chủ đầu tư có thể nhận thấy rằng ở khu vực sân trước được thiết kế thêm chỗ để xe ô tô, khu vực sân vườn tận hưởng không gian sống trong lành. Bên trong căn biệt thự tại tầng trệt được bố trí với mỗi phòng chức năng đều là 1 phòng trong đó có 1 phòng khách, 1 phòng bếp và 1 phòng ngủ.

Dù là chỉ với 7x15m diện tích cho căn biệt thự nhưng chúng ta thấy các kiến trúc sư vẫn ưu tiên cho một khoảng không gian sân vườn, một khoảng nhỏ để thiết kế gara ô tô. Bên trong khuôn viên của căn biệt thự được thiết kế gắn bó, gọn gàng. Trong đó có 1 phòng khách 1 phòng bếp và phòng ăn. Còn không gian riêng tư là phòng ngủ được bố trí toàn bộ trên lầu 2, căn nhà này thường dành cho những đôi vợ chồng trẻ mới ra ở riêng.
Xây Dựng Số sàn giao dịch thương mại điện tử chuyên về lĩnh vực xây dựng

Tại sao lại lựa chọn sàn giao dịch Xây Dựng Số? Bởi lẽ khi bạn đã có nhu cầu xây dựng biệt thự bạn sẽ phải cần chọn cho mình một nhà thầu uy tín, một kiến trúc sư tài năng chuyên nghiệp. Thì mọi băn khoăn, lo lắng ấy khi bạn đến với xây dựng số chúng tôi sẽ giúp bạn có được hệ thống nhà thầu chuyên nghiệp ở tất cả các tỉnh thành trên cả nước. Bạn chỉ cần liên hệ với chúng tôi sẽ có một đội ngũ nhân viên, tư vấn nhiệt tình, giúp bạn tìm được một phương án tốt nhất cho công trình xây dựng được xem là lớn nhất cuộc đời của mình.
Bạn có thể đặt niềm tin tuyệt đối vào những nhà thầu tại xây dựng số là những đơn vị có tên tuổi, đã và đang thi công rất nhiều công trình nhà ở trong đó có xây dựng biệt thự trên cả nước từ miền đất địa đầu của Tổ Quốc đến miền đất mũi Cà Mau đều có sự hỗ trợ nhiệt tình từ sàn Xây Dựng Số. Hơn nữa hàng năm đều được đánh giá năng lực qua các chủ đầu tư, qua đội ngũ chuyên gia của kiến trúc sư của Xây Dựng Số. Hơn nữa toàn bộ nhà thầu của Xây Dựng Số giới thiệu họ đều có hồ sơ năng lực minh bạch, rõ ràng, chi tiết, có cam kết thực hiện đúng tiến độ thời gian thi công, tiết kiệm chi phí một cách tối ưu nhất.
Trên đây là những chia sẻ của chúng tôi về mẫu biệt thự 7x15m. Hi vọng với chia sẻ trên đây của chúng tôi sẽ giúp các chủ đầu tư được phần nào trong việc thực hiện được ước mơ xây dựng biệt thự 7x15m của gia đình mình trong tương lai một cách trọn vẹn nhất.
Xem thêm


































