Hiện nay mẫu nhà cấp 4 6x18m đang được rất nhiều gia chủ quan tâm bởi tính tiện nghi, hiện đại, đáp ứng được nhu cầu sử dụng và đặc biệt có mức giá vô cùng hấp dẫn dành, phù hợp với mọi nguồn ngân sách mà gia chủ hiện có. Vậy bản thiết kế mẫu nhà này như thế nào cùng những mẫu thiết kế lot top thiết kế hot nhất hiện nay như thế nào? Tất cả đều có trong bài viết dưới đây.
Bản vẽ thiết kế mẫu nhà cấp 4 6x18m đáp ứng đầy đủ nhu cầu của gia chủ
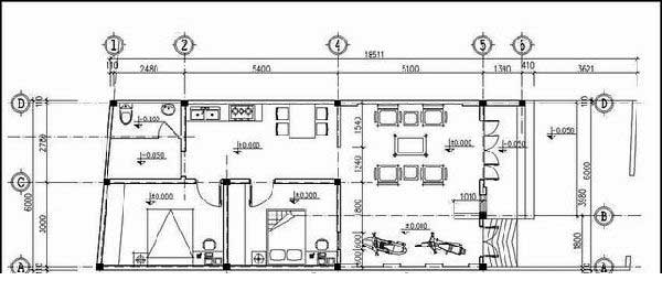
Để có được một mẫu bản vẽ thiết kế dành cho mẫu nhà cấp 4 đẹp trên diện tích 6x18m đòi hỏi sự đầu tư thời gian, công sức của chính bản thân gia chủ và kiến trúc sư. Hai bên cần phải tiến hành trao đổi thẳng thắn những vấn đề liên quan ví dụ như: Gia chủ cần thể hiện rõ nhu cầu sử dụng, hay các vấn đề liên quan đến phong thuỷ: đặt cửa chính ở đâu? Đặt vị trí các phòng: phòng ngủ, phòng khách, khu vực bếp như thế nào,…. Kiến trúc sư cần đưa ra quan điểm của mình, chỉnh sửa trên chính yêu cầu của khách hàng để mẫu nhà vừa đẹp về mặt thẩm mỹ, đáp ứng chuẩn theo khách hàng lại đảm bảo các thông số kỹ thuật. Dựa trên điều đó, bài viết xin được đưa ra mẫu bản vẽ tham khảo cho gia chủ tương lai của mẫu nhà cấp 4 6x18m như sau:

Mẫu bản vẽ thiết kế dành cho mẫu nhà cấp 4 6x18m này được kiến trúc sư để chừa một khoảng nhỏ diện tích để làm một sân nhỏ trước khi vào đến không gian chính ở bên trong. Với diện tích nhỏ này khi đưa vào sử dụng, gia chủ có thể bố trí thêm một vài chậu cây xanh trước nhà tạo một không gian xanh giúp ngôi nhà trở nên tươi mát hơn vào mùa hè. Đây cũng chính là khoảng không gian vô cùng có ích để trẻ nhỏ trong nhà có sân chơi an toàn. Kiến trúc sư bố trí thêm một hệ thống bậc tam cấp ở khu vực sảnh chính để có thể phân cách hai không gian sân và khu vực phòng khách phía trong nhà. Bậc tam cấp này cũng giúp cho không gian bên trong tránh được bụi bẩn từ bên ngoài hay phần bụi từ chính giày dép đi lại hằng ngày. Một phần nhỏ của khu vực phòng khách sẽ được tách ra để làm thành một không gian để xe máy cho gia chủ sở hữu. Với phần không gian để xe của gia chủ được bố trí phần cửa hai cánh riêng, không sử dụng bậc tam cấp mà thay vào đó bậc liền thoải giúp gia chủ có thể di chuyển phương tiện dễ dàng vào trong nhà.
Với khu vực phòng khách sẽ được bố trí khá đơn giản với một bộ bàn ghế sofa hoặc một bộ bàn ghế gỗ thiết kế theo hướng hiện đại không sử dụng nhiều hoa văn hoạ tiết cầu kỳ để phù hợp với một không gian có diện tích mặt tiền chỉ 6m mà thôi. Nối thông với không gian phòng khách này sẽ khu vực bếp kết hợp với bàn ăn vô cùng tiện lợi. Đặc biệt không gian bếp này hoàn toàn giúp gia chủ có thể tổ chức bữa tiệc nhỏ nhỏ với người thân trong gia đình hoặc bạn bè vào những dịp cuối tuần. Cuối nhà đặt không gian vệ sinh với đầy đủ tiện ích cho thành viên sử dụng. Phần không gian nhà vệ sinh sẽ kết hợp thêm khu vực để phục vụ việc giặt và phơi quần áo cho gia chủ.
Hai phòng ngủ được đặt liền kề với nhau và song song với không gian bếp và nhà vệ sinh. Diện tích hai phòng ngủ trong mẫu nhà cấp 4 6x18m này sẽ có diện tích tương đương với nhau đáp ứng cho gia đình từ 3 đến 4 thành viên sử dụng. Hoặc một mẫu thiết kế nhà cấp 4 6x18m thứ hai trong bài viết để gia chủ tham khảo là mẫu nhà đẹp có gara ô tô.

Với mẫu thiết kế này kiến trúc sư sẽ lược bỏ khu vực sân phía trước để tiến hành xây dựng gara ô tô ở đây, đảm bảo diện tích phía trong. Phòng khách và gara oto được bố trí song song với nhau, phòng khách và gara mỗi bên có 3m diện tích ở khu vực mặt tiền 6m. Gara ô tô được thiết kế hở, không nằm trong khu vực nhà để đảm bảo không ám mùi phương tiện vào khu vực sinh hoạt bên trong nhà. Với khu vực phòng khách được bố trí nội thất đơn giản là bộ bàn ghế sofa nhỏ, cùng với bàn kệ tivi, với diện tích này có thể sử dụng tivi gắn tường để tiết kiệm tối đa diện tích. Phần cửa chính thường sẽ sử dụng hệ thống cửa kính khung nhôm, bên trong kết hợp hệ thống rèm cửa để vừa tạo được không gian riêng tư phía trong lại vừa hạn chế được ánh sáng gắt vào mùa hè. Bên ngoài có thể sử dụng thêm hệ thống cửa cuốn để tăng tính an ninh, an toàn cho ngôi nhà.
Nối thông với không gian phòng khách là khu vực bếp với bàn ăn để tạo không gian mở, nhấn mạnh vào chiều sâu 18m của mẫu nhà cấp 4 6x18m. Kế tiếp là không gian nhà vệ sinh thuận tiện cho chính bản thân gia chủ và cho cả những vị khách đến chơi nhà. 2 phòng ngủ được đặt ở vị trí tiếp theo, đặc biệt phòng ngủ thứ 2 được đặt ở cuối nhà và có diện tích lớn hơn phòng ngủ còn lại. Với 2 phòng ngủ sẽ đáp ứng nhu cầu gia đình có từ 3 đến 4 thành viên sinh sống.
Trên đây là 2 bản thiết kế dành cho mẫu nhà cấp 4 6x18m để gia chủ tiến hành tham khảo. Gia chủ có thể dựa trên mẫu thiết kế để sở hữu riêng cho mình một mẫu nhà ưng ý cho chính mình.
Cập nhật mẫu nhà cấp 4 6x18m siêu hot hiện nay được gia chủ yêu thích
Bài viết tiếp tục giới thiệu đến với gia chủ tương lai mẫu nhà cấp 4 6x18m phối cảnh mặt tiền cực hot hiện nay, với chi phí chỉ từ 500 triệu đồng ngay bên dưới đây để gia chủ tham khảo.

Mẫu nhà cấp 4 6x18m đầu tiên được giới thiệu chính là mẫu nhà có phần mái bằng – đây là mẫu nhà phổ biến và được rất nhiều gia chủ lựa chọn. Mẫu thiết kế này tương ứng với bản vẽ đầu tiên được giới thiệu trong bài viết này.
Phần sân trước của ngôi nhà khá rộng rãi, kiến trúc sư đã sử dụng phần gạch lát giả đá để mang đến sự chắc chắn và mang đến một không gian khá sáng cho tổng thể của ngôi nhà. Bên phải được bố trí hoa trong nhà trải dài theo chiều dài của sân, đặt một chiếc ghế sơn giả gỗ và một phần cây xanh to để mang đến bóng mát để gia chủ thư giãn trong sân nhà mình.
Với phần mặt tiền kiến trúc sư gây ấn tượng cho vị khách tới nhà bằng hệ thống cửa kính khung nhôm được sơn nâu ấn tượng, giữa cửa phòng khách và cửa cho khu vực để xe máy của gia chủ là phần tường sơn nâu kết hợp đường chỉ phào nhẹ cùng với ô chữ nhật màu trắng sọc khá ấn tượng. Phần đèn led trắng đánh thẳng xuống giúp ngôi nhà nổi bật khi trời nối. Bao quanh là khung vững chãi góc cạnh điển hình của kiến trúc hiện đại, giúp ngôi nhà hạn chế ánh nắng mặt trời, cũng tạo thành tiền sảnh trước khi bước vào ngôi nhà.

Mẫu nhà cấp 4 6x18m thứ hai với phần mái xéo cực kỳ ấn tượng cho gia chủ thíchsự độc lạ. Mẫu nhà này gây ấn tượng trước tiến chính là phần sân vườn với không gian tạo nên sự thư giãn và bao phủ bởi cây xanh. Phần sân sử dụng gạch ốp giả đá ấn tượng, mang vẻ đẹp sự hiện đại, nhấn mạnh phong cách kiến trúc hiện đại ngày này. Khu vực cửa chính dẫn vào khu vực phòng khách sử dụng cửa kính khung nhôm với 2 cánh cùng với ô chữ nhật bên cạnh sơn đen tạo điểm nhấn nổi bật trên nền trắng, được làm nổi trước nhà kết hợp với bậc thêm tam cấp. Phần còn lại mặt tiền là phần cửa sổ bằng kính với hai bên là phần tường giả gỗ để tạo sự nổi bật, mang đến vẻ đẹp của tự nhiên, gần gũi với thiên nhiên. Đặc biệt là phần cửa sổ phòng khách gắn thêm khung cây độc lạ vừa hạn chế ánh nắng vào trong nhà.
Một phần đặc biệt trong mẫu nhà cấp 4 6x18m được gia chủ tương lai để ý đến chính là phần gác lửng, Phần gách lửng này gia chủ có thể thêm một căn phòng ngủ với thiết kế bên trong vô cùng ấn tượng, thu hút với phong cách trẻ trung. Phần mái của ngôi nhà cũng chính là điểm không thể bỏ qua. Với thiết kế tạo ấn tượng về kích thước đồ sộ, giúp chống nắng, không thấm dột nước khi trời mưa.

Mẫu nhà cấp 4 6x18m thứ ba với phần mái Thái kết hợp cùng với phong cách kiến trúc tân cổ điển sang trọng, cổ điển nhưng không kém phần hiện đại, tiện nghi. Phần cổ điển thể hiện qua hệ thống cột, chân cột ốp đá vững chãi. Phần tường có đường chỉ phào tạo điểm nhấn cho ánh nhìn người đối diện. Phần chân tường ốp đá vàng theo đúng kiến trúc cổ điển thường hay sử dụng. Kiến trúc mái với những đường nét cầu kỳ, phần vòng khung có đường nét uyển chuyển.
Nét kiến trúc hiện đại với cừa khung nhôm sơn trắng tạo điểm nhấn cho phần mặt tiền. Nét hiện đại thể hiện lược bỏ những chi tiết rườm rà để thay vào đó là đường nét hiện đại nhưng không kém phần tinh tế cho tổng thể thiết kế của ngôi nhà. Cây xanh được bố trí xung quanh nhà là cây nhỏ phù hợp tổng thể thiết kế. Kết hợp màu sắc trắng, nâu, xanh tím than cũng được xem là nét kiến trúc hiện đại của ngôi nhà.
Trên đây mẫu nhà cấp 4 6x18m hot nhất hiện nay với phần tổng chi phí chỉ từ 500 triệu đồng được gia chủ chú ý hiện nay. Tuỳ theo nhu cầu cũng như sở thích mà gia chủ tương lai tham khảo để lựa chọn cho mình một mẫu nhà ưng ý nhất.


































