Mẫu nhà cấp 4 hình chữ U đẹp nhiều năm trở lại đây trở thành xu hướng lựa chọn khá phổ biến tại thị trường kiến trúc, xây dựng của Việt Nam. Sở hữu vẻ bề ngoài phóng khoáng hiện đại, công năng sử dụng bên trong tiện nghi hợp lý. Bạn đang quan tâm đến mẫu nhà này có thể theo dõi bài viết của chúng tôi để có thể lựa chọn cho gia đình của mình một mẫu nhà cấp 4 hình chữ U đẹp nhất hiện nay.
Mẫu nhà cấp 4 chữ U xét về yếu tố phong thủy có nên xây dựng không?
Chắc chắn việc chiêm ngưỡng một mẫu nhà cấp 4 hình chữ U không còn mấy xa lạ đối với người. Và theo yếu tố phong thủy có nhiều ý kiến cho rằng chúng ta không nên xây dựng nhà kiểu dáng chữ U. Vì nhiều người cho rằng mẫu thiết kế nhà cấp 4 hình chữ U được xem là loại nhà tàn, có đặc điểm khuyết lõm điều này dẫn đến luồng khí tốt đến nhà bị cản, trăm việc không thuận lợi.

Kiểu dáng nhà cấp 4 chữ U kị sơn màu trắng mà đây là gam màu phổ biến, vì họ cho rằng màu trắng này hợp với Linh Đường, mồ mả, nhà kỷ niệm tâm linh, hoặc nhà thờ gia tộc nên cho rằng theo yếu tố phong thủy không nên chọn mẫu nhà này cho công trình xây dựng của gia đình mình.
Nhưng ý kiến trên hoàn toàn không chính xác, được chứng minh trong những năm qua mẫu nhà chữ U đã có mặt ở khắp mọi nơi trên trên cả nước mà gia đình vẫn thịnh vượng, bình an. Mẫu nhà chữ U cấp 4 khi xây dựng xong sẽ mang đến một vẻ đẹp vô cùng hấp dẫn, phá cách và lạ mắt so với những mẫu nhà cấp 4 thông thường, về vấn đề lưu thông và di chuyển khá linh hoạt không ảnh hưởng gì từ các yếu tố phong thủy nếu biết cách bố trí một cách hài hòa. Trước khi xây dựng chỉ cần chúng ta thực hiện đầy đủ các thủ xem tuổi, cắm hướng một cách kĩ lưỡng thì hoàn toàn xây dựng nhà chữ U nếu bạn cảm thấy thích vẻ đẹp của mẫu nhà này.
Khi sở hữu một ngôi nhà cấp 4 với kiểu dáng chữ U sẽ mang đến cho người nhìn một không gian sống tiện nghi, hiện đại và gọn ghẽ, thông thoáng. Không gian kiến trúc bên ngoài của ngôi nhà cấp 4 hình chữ U được kết hợp hài hòa cân đối, 3 mặt của ngôi nhà tiếp giáp với nhau tạo nên một tổng thể bắt mắt với 1 khoảng sân ở giữa trung tâm của 3 mặt nhà nên việc di chuyển trong không gian của ngôi nhà là hoàn toàn dễ dàng và thuận tiện trong quá trình sinh hoạt.

Nhà cấp 4 có kiểu dáng hình chữ U như 1 mắt xích quan trọng thuận tiện. Nếu như các mẫu nhà như kiểu dáng chữ L, nhà ống hay nhà hình vuông việc di chuyển đến các không gian khác phải di chuyển đi xa, đi vòng thì thiết kế nhà nhà cấp 4 hình chữ U lại đơn giản hơn chúng ta chỉ cần đi qua khoảng sân phía trước là đã đến được các không gian các phòng chức năng của ngôi nhà mà không cần di chuyển quá nhiều.
Mẫu nhà cấp 4 hình chữ U còn đem đến một không gian rộng rãi, thoáng đãng. Đã là một không gian thoáng đãng thì ý kiến cho rằng mẫu nhà cấp 4 hình chữ U có luồng khí tốt đến nhà bị cản, trăm việc không thuận lợi là sai vì sự thông thoáng của ngôi nhà này được lưu thông bằng cách đón gió, lấy sáng qua việc sử dụng các ô cửa cửa chính 2 cánh hoặc 4 cánh phía trước mặt nhà khá rộng và cửa sổ phía sau nhà sẽ làm không khí lưu thông và mát mẻ cho không gian các phòng chức năng.
Chia sẻ về bản vẽ - phối cảnh nhà cấp 4 chữ U đẹp nhất hiện nay
Với những ưu điểm như tiện lợi trong sinh hoạt, hiện đại trong lối kiến trúc, sang trọng với vẻ bề ngoài, tiện nghi trong không gian nội thất, hoàn toàn không ảnh hưởng bởi yếu tố phong thủy. Chính vì vậy đây chính là mẫu nhà đã và đang được chào đón nhiều nhất. Dưới đây là những mẫu nhà cấp 4 kiểu dáng chữ U đẹp nhất hiện nay qua bản vẽ và phối cảnh cụ thể.

Mẫu thiết kế nhà cấp 4 chữ U đầu tiên chúng tôi giới thiệu đến các chủ đầu tư với lối thiết kế khá đơn giản nhưng toát lên thần thái của một phong cách hiện đại thời thượng. Mẫu nhà này ưu tiên hoàn toàn với một lối nhà yêu thích sự khoáng đạt, rộng rãi. Từ việc lựa chọn màu sơn cho ngôi nhà. Theo đó màu sơn thể hiện sự rộng rãi là gam màu trắng sáng.
Chúng ta thấy rằng nhờ có sắc trắng của nền nhà cấp 4 chữ U này chúng ta thấy nổi bật hệ mái ngói chắc chắn màu xanh than. Với hệ chữ U rõ ràng nhìn qua mái ngói là chúng ta đã có thể nhận ra hệ mái lớn bao trùm toàn bộ ngôi nhà và 2 cạnh tạo thành chữ U được đua sang 2 bên tạo thành 2 hệ mái nhỏ ấn tượng.
Phía chân tường không sử dụng màu trắng mà sử dụng màu xám để đảm bảo độ sạch sẽ, thêm phần bắt mắt cho ngôi nhà. Xung quanh bốn bề của ngôi nhà gần với chân tường là khoảng trống để bạn và các thành viên trong gia đình trong những thời gian rảnh rỗi, những ngày cuối tuần có thể chăm sóc cho bồn cây, bãi hoa càng khiến cho cuộc sống của chúng ta thêm phần gần gũi, chan hòa cùng thiên nhiên.

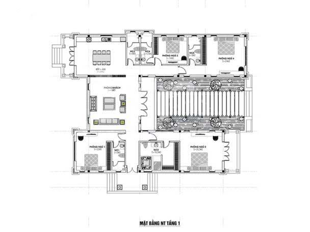
Mẫu bản vẽ chi tiết trên đây chúng ta thấy rõ đây là một mẫu nhà chữ U gồm có 4 phòng ngủ. Từ khoảng sân đi qua sảnh chúng ta vào đến phòng khách tại phòng khách này được bố trí luôn gian thờ rất thuận tiện cho việc thờ cúng được thuận lợi. Phía tay phải của phòng khách là phòng bếp và phòng ăn được thiết kế thông nhau để tạo ra một không gian rộng rãi, thoáng đãng cho toàn bộ phòng bếp.
Phía 2 bên để tạo thành chưc U lần lượt là 4 phòng ngủ được bố trí rất hợp lý. Đảm bảo một không gian riêng tư cho gia đình 4 đến 5,6 thành viên, 2, 3 thế hệ cùng chung sống đều rất thoải mái. Để quá trình sinh hoạt được diễn ra thuận tiện chúng ta thấy nhà vệ sinh được thiết kế khép kín cả trong phòng ngủ và có nhà vệ sinh được nằm giữa 2 phòng ngủ số 1 và phòng ngủ số 2.

Một không gian xanh bao phủ xung quanh ngôi nhà cấp 4 với kiểu dáng chữ U. Đây là xu hướng thiết kế nhà ở phổ biến hiện nay. Giữa một xã hội bộn bề tấp nập, nhiều chủ đầu tư đã có ý định tìm về với một mẫu nhà có khuôn viên tràn ngập màu xanh của cây lá, hay nói cách khác là phong cách nhà vườn. Nổi bật cho mẫu nhà cấp 4 chữ U này chúng ta thấy đó là hệ mái ngói hình chóp màu đỏ nổi bật.
Màu xanh của co len lỏi giữa những ô đá đến tận sân giữa 2 bên của ngôi nhà. Đi qua khu vực sân chúng ta sẽ đến với phòng khách của ngôi nhà được đặt ở chính giữa. Với thiết kế này được bố trí với 3 phòng ngủ và một phòng bếp rất rộng rãi để cả gia đình có thể quây quần bên nhau cùng vào bếp tạo ra những món ăn ngon mà không hề có cảm giác chật hẹp. Ngôi nhà 3 phòng ngủ cũng đủ để mỗi thành viên có được không gian riêng tư thoải mái nhất sau một ngày dài làm việc ở bên ngoài khi trở về căn phòng với một giấc ngủ thật ngon.

Vẫn là một mẫu thiết kế nhà cấp 4 chữ U gồm có 3 phòng ngủ. Nhưng mẫu thiết kế này so với những mẫu nhà cấp 4 kiểu dáng chữ U trên có phần nhỏ nhắn, thanh thoát hơn. Mẫu nhà này được các kiến trúc sư lựa chọn với phong cách nhà mái thái. Đây cũng là hệ mái phù hợp nhất với kiểu dáng nhà chữ U.
Về phần mái nhà kiểu dáng rất bắt mắt, nếu tài chính eo hẹp bạn có thể lựa chọn hệ mái tôn. Nhưng để đẹp nhất và phù hợp nhất cho mẫu nhà cấp 4 này có lẽ đó chính là màu xanh than của mái ngói vô cùng sang trọng và hiện đại dưới nền trắng sáng với điểm nhấn ở đường viền và chữ A màu kem sữa nhẹ nhàng.
Mẫu nhà này về phần ngoại thất vẫn là một không gian yêu thích sự gắn bó gần gũi với thiên nhiên, lối thiết kế đơn giản từ vẻ ngoài của ngoại thất đến bên trong nội thất, rất tiết kiệm chi phí. Không gian ngôi nhà này được bố trí với một phòng khách gọn gàng, một phòng bếp tiện nghi với những món đồ nội thất cơ bản cùng với 3 phòng ngủ yên tĩnh là khoảng không gian riêng tư lý tưởng.
Trên đây là những chia sẻ của chúng tôi về mẫu nhà cấp 4 kiểu dáng chữ U đang được yêu thích nhất hiện nay. Chắc chắn sẽ mang đến sự hài lòng cho rất nhiều chủ đầu tư đang có nhu cầu tìm kiếm mẫu nhà hiện đại này.


































