Tổ ấm của mỗi chúng ta không chỉ là tình cảm gia đình thiêng liêng trong sáng mà còn là hình ảnh ảnh n gôi nhà mà ta vẫn gội nó bằng một bột điều gì đó hết sức trân trọng: “giông bão dừng sau cánh cửa”. Do vậy việc dựng cửa xây nhà trước khi có gia đình là một việc cần thiết. Bên cạnh đó chúng tôi cũng xin giới thiệu đến quý độc giả mẫu nhà cấp 4 8x12 ấm cúng tiện nghi. Kính mời theo dõi bài viết dưới đây.
Sự hiện diện của mẫu nhà cấp 4 trong kiến trúc của gia đình Việt
Từ thời lâu xa về trước người Việt cổ ta đã biết dựng căn nhà có mái che để phục vụ cho nhu cầu sinh sống và làm việc của cả gia đình. Đó là kiểu nhà cấp 4 truyền thống. Xã hội phát triển, nhu cầu của kiến trúc của thời đại mới đòi hỏi phải cải tiến và có sự giao lưu độc đáo. Từ đó cho gia đời những mẫu nhà cấp 4 đa dạng về hình thức và phong phú về thiết kế. Có thể nói dù đã qua nhiều thập kỉ như kiểu nhà cấp 4 trong văn hoá và nhận thức của người Việt ta vẫn luôn là loại hình nhà ở được nhắc đến trong mỗi gia đình. Tại sao kiểu nhà này lại được ưa chuộng đến vậy? Và điều gì đã làm nên sự bền bỉ của “mốt” nhà cấp 4 không bao giờ lo lỗi thời?

Trước tiên xin đề cập đến mái nhà. Trước kia khi vậy liệu xây dựng còn chưa phổ biến thì mái nhà chủ yếu vẫn là lợp bằng lá cây như cọ, cau, rơm, tre, gỗ, ... Sau này hiện đại hơn là các vật liệu xây dựng như các bạn thấy là mái tôn, bê tông, ngói lợp, .... Tuy nhiên là dù bằng vật liệu nào ngôi nhà cấp 4 được xây dựng nên cũng rất kiên cố và vững chắc, đảm bảo cho mấy thế hệ có thể sinh sống tại đây.
Trước kia kiểu hình nhà ở cấp 4 thường được xây dựng chủ yếu ở nông thôn. Nhưng giờ đây, nhờ vào ưu thế tiện ích, kinh tế mà vẫn đáp ứng được tối đa nhu cầu sinh hoạt của mỗi gia đình nên nhà cấp 4 xuất hiện nhiều trong các khu nhà ở cao cấp mang phong thái nhà vườn gần gũi với thiên nhiên. Tuy là kiểu kiến trúc truyền thống nhưng càng ngày nhà cấp 4 lại càng được thiết kế hiện đại với nhiều kiểu hình theo mong muốn của gia chủ. Có thể thấy rằng bên cạnh những biệt thự, nhà cao tầng thì giờ đây nhiều gia đình đang có xu hướng thiên nhiều về mẫu thiết kế cấp 4.
Như đã nói một mảnh vườn nhỏ xinh, một ngôi nhà cấp 4 ở đó là gia đình có những đứa trẻ thơ nô đùa chạy nhảy đã từng một thời là mơ ước của hàng triệu người dân nước Việt. Và cho đến ngày nay sự giản dị và bình yên đến từ kiểu nhà này vẫn luôn làm xốn xao tình cảm của rất nhiều quý độc giả ở đây. Thế mới nói không phải ngẫu nhiên mà nhà cấp 4 được dân tộc ta phong cho một cái têt hết sức tầm cỡ: “nhà quốc dân”. Có lẽ cũng bởi đi đến bất kì vùng đất nào hình ảnh ngôi nhà này cũng xuất hiện và được ưa mến nên nói đến nhà cấp 4 là ta nghĩ ngay đến một loại hình kiến trúc độc đáo, riêng biệt của người dân Việt Nam nói chung.
Phối cảnh bản vẽ nhà cấp mái thái nhỏ gọn mà sang trọng
Bạn muốn giảm chi phí thi công mà vẫn có ngôi nhà kiên cố và tiện nghi? Bạn muốn xây nhà mà vẫn dư dả kinh tế để lo nội thất? Còn đắn đo gì mà k tìm hiểu ngay về mô hình nhà cấp 4 8x12. Với xu thế hướng đến sự giản tiện mà vẫn đáp ứng được nhu cầu sinh hoạt của gia đình, diệt tích 8x12 của nhà cấp 4 có thể bố trí theo dạng 2 phòng ngủ phù hợp với gia đình nhỏ hai vợ chồng với hai con.

Với bản vẽ thiết kế nhà cấp 4 8x12 này gia chủ có thể thiết kế mãi theo kiểu mái thái hoặc mái tôn. Nhìn vào bản vẽ này ta dễ dàng nhận ra đây là mô hình nhà ở khép kín, thiết kế theo kiểu hình chữ L. Quý bạn theo dõi vào đây có thể nhận thấy ngay phần bị khuyết của chữ L được thiết kế làm phòng tiếp khách, sử dụng mái bằng. Tuy diện tích tính toán khá nhỏ nhưng nhìn vào cũng đủ thấy sự thoải mái và đồ dùng tiện nghi Tiếp đến là phòng ăn ta có thể thấy phòng bếp, phòng ăn được thiết kế tại khu riêng biệt để không gian sinh hoạt của gia đình tách ra với các gian phòng khác. Mục đích sử dụng của gian này là khu vực sinh hoạt chủ yếu và là nơi tập trung thường xuyên các thành viên trong gia đình.
Được thiết kế ngay cạnh gian tiếp khách, phòng ăn chiếm khá nhiều diện tích để đặt vừa một cái bàn ăn cho gia đình, bếp nấu cùng các vật dụng hỗ trợ của nhà bếp. Mặc dù diện tích khiêm tốn nhưng ta dễ dàng thấy được việc sử dụng phòng bếp của gia đình cấp 4 8x12 này rất thoải mái không bị gò bó. Ngoài ra như đã nói kiểu nhà cấp 4 này được thiết kế chính là 2 phòng ngủ đặt cạnh sát nhau. Diện tích của mỗi phòng có thể tuỳ vào mục đích sử dụng của gia đình mà chia cho phù hợp. Đối với phòng ngủ thường sẽ nhỏ hơn khu phòng khách và nhà bếp bởi không gian của nó hướng tới sự nhỏ gọn, ấm cúng. Bên cạnh đó kiểu nhà này còn thiết kế cho gia đinh bạn một gian làm việc và học tập cạnh phòng khách. Đảm bảo diện thích thoải mái, thiết kế có cửa sổ nhắm giúp giảm bớt căng thẳng mệt mỏi và thư giãn mỗi khi học tập hay làm việc mệt nhọc. Đây chính là phần ấn tượng và ưu việt của kiểu thiết kế này mà hầu như gia đình nài cũng hướng đến.
Cuối cùng là gian vệ sinh. Đảm bảo cho gia đình hai gian vệ sinh bố trí ở cuối nhà và được đặt cạnh phòng ngủ và một cửa sau đi ra sân vườn gọi là sau nhà. Mẫu nhà cấp 4 8x12 này không đặt phòng khách ngay ở cửa ra vào vì như vậy nhà gia chủ sẽ rất khó để đặt tủ, kệ, ti vi. Thế nên ngôi nhà có hai cửa chính này sẽ đặt phòng khách ở bên trọng sẽ thuận tiện hơn. Nếu quý gia chủ nào muốn bước vào cửa là gặp phòng khách luôn thì cũng có thể bỏ đi một phần cửa chính của phòng khách. Cùng với đó là hai cửa sổ chính ở phòng khách và phòng làm việc. Về vấn đề thiết kế cửa cho ngôi nhà của mình quý bạn có thể linh hoạt để phù hợp với điều kiện, địa hình của gia đình.
Những mẫu thiết kế nhà cấp 4 8x12 đẹp nhất hiện nay
Nhà cấp 4 là kiểu hình nhà ở rất đa dạng về tính năng sử dụng cũng như kiến trúc phong phú. Như đã nói ở trên hiện nay có hai mẫu nhà cấp 4 8x12 phổ biến nhất là kiểu nhà mái thái và kiểu nhà mái tôn. Trước tiên để xác định được kiểu thiết kế nào phù hợp thì gia chủ cần quan tâm đến diện tích khu nhất của nhà mình, điều kiện kinh tế cho phép ngoài ra còn có thể là sở thích của các thành viên trong nhà. Trước tiên chúng tôi xin giới thiệu đến quý gia chủ kiểu nhà cấp 4 8x12 mái thái. Đối với diện tích 8x12 này kiến trúc mái thái thường nhẹ nhàng không quá cầu kì phức tạp tuy nhiên vẫn toát lên sự sang của ngôi nhà mà không hề bị đơn điệu.

Khi quý gia chủ nào xác định kiểu nhà mái thái cấp 4 thì nên thiết kế nhà theo kiểu nằm ngang. Trong đó phòng ăn, phòng bếp được thiết kế rộng rãi, riêng biệt. Phòng ngủ, phòng vệ sinh nên đặt cạnh nhau và ở phía cuối nhà độc lập tách biệt với phía phòng khách. Mặt tiền của ngôi nhà nên thiết kế cửa chính với chất liệu nhôm xingfa để tăng thêm sự tinh tế nhẹ nhàng cho ngôi nhà. Các cửa sổ cũng vậy chú ý sử dụng cửa nhôm để việc sử dụng được tiện lợi và tối ưu nhất. Về phần kiến trúc mái thái chi nhà cấp 4 8x12 các mái được thiết kế theo kiểu vuông góc với nhau, phần diềm của mái được bố trí xung quanh mái hiên và mái trên gian phòng khách với cách vách ngăn là tường chắn. Như vậy sẽ làm cho mái mềm mại và uyển chuyển hơn.
Trên đây là mẫu nhà cấp 4 8x12 nhỏ gọn, tiện ích phù hợp với gia đình từ 3-4 người. Chúng tối xin giới thiệu để quý độc giả tham khao. Cuối cùng xin kính chúc các bạn xây dựng cho gia đình mình một không gian như ý.

Thêm một kiểu nhà cấp 4 8x12 mái thái với điểm nhấn là cửa ra vào 4 cánh được làm từ nhôm xingfa màu rắng nhẹ nhàng bắt mắt. Cùng với đó và hai cột trụ chính ở giữa làm cho ngôi nhà thêm khang trang và vững chắc.
Đây là mô hình nhà đang rất được lòng các nhà thiết kế và gia chủ. Nhìn chung, với tổng thể kiến trúc của thiết kế này, chúng ta sẽ thấy nó khá là đơn giản. Nhưng nó vẫn đảm bảo được độ thẩm mỹ và quan trọng nhất là công năng không gian nội thất của ngôi nhà.
Thật vậy, một trong những tiêu chí quan trọng nhất ngày nay được rất nhiều gia chủ quan tâm đến. Đó là những căn nhà với đầy đủ công năng sử dụng và đảm bảo tiêu chuẩn nhà đẹp. Đồng thời, những mẫu nhà này có chi phí xây dựng rẻ. Nó không chỉ đẹp về kết cấu lẫn kiểu dáng và còn đáp ứng các tiêu chí về chi phí cùng công năng sử dụng. Từ đó, mỗi người lựa chọn cho mình một kiểu thiết kế nhà phù hợp với nhu cầu và điều kiện kinh tế của mình.

Bản vẽ mặt trước + mặt cắt và mái của mẫu nhà cấp 4

Nhìn vào bản vẽ xây nhà cấp 4 mái Thái này của gia chủ là một bản thiết kế khá quen thuộc với kết cấu mái Thái và bố trí không gian nhà hình chữ L. Việc thiết kế ngôi nhà hình chữ L đã giúp ngôi nhà trở lên rộng rãi. Nhưng nó vẫn đảm bảo được tính thẩm mỹ cao. Từ đó, mẫu nhà còn tôn lên nét đẹp tinh tế vốn có của nó.
Mặt trước ngôi nhà gồm 1 cửa chính và 2 cửa sổ. Điều này sẽ giúp cho không khí từ bên ngoài được lưu thông vào bên trong 1 cách dễ dàng hơn. Ngôi nhà của bạn chắc chắn sẽ luôn tràn ngập ánh sáng tự nhiên.
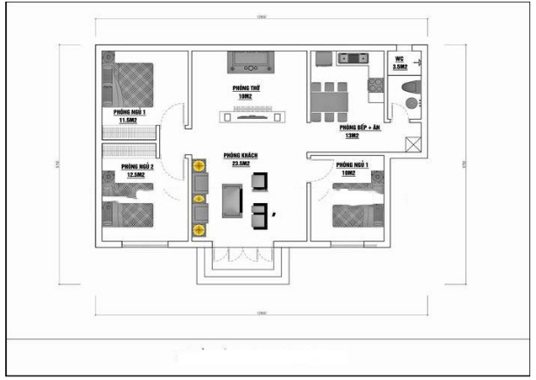
Bố trí mặt bằng công năng nội thất mẫu nhà cấp 4 mái Thái 8×12
Nhìn từ góc này, chúng ta có thể thấy công năng bên trong mô hình xây nhà cấp 4 mái Thái 8×12 của gia chủ khá đầy đủ công năng. Nhà được bố trí 1 phòng khách, 3 phòng ngủ, 1 phòng thờ, 1 phòng ăn kết hợp bếp ăn, 1 phòng tắm và nhà vệ sinh. Với mô hình công năng này, chắc chắn đã đáp ứng được nhu cầu sinh hoạt của tất cả các thành viên trong gia đình có 4 người.

Nhìn vào bản vẽ mặt bằng công năng, chúng ta có thể nhận thấy cách bài trí công năng ngôi nhà khá phù hợp. Bước từ ngoài vào trong là phòng khách được thiết kế rộng rãi với diện tích 20 đến 26m2. Không gian phòng khách được thiết kế tối giản để tạo lên sự thoải mái và thoáng đãng cho ngôi nhà.
Đối diện phòng khách là 1 phòng thờ. Phòng này đã tạo sự thuận tiện mỗi khi thắp hương của chính gia chủ và những người thân thích khác. Bên trái ngôi nhà được bố trí hai phòng ngủ đối diện nhau. Bên phải là một phòng ngủ khác đối diện với phòng bếp kết hợp phòng ăn và phòng vệ sinh. Như vậy, công năng bên trong ngôi nhà được chia làm hai bên. Khu vực ở giữa là lối đi rộng rãi. Nó đã đảm bảo cho việc di chuyển giữa các phòng với nhau được thuận tiện nhất.
Điều đặc biệt, đó là thiết kế tất cả các phòng trong ngôi nhà đều có cửa sổ thông ra bên ngoài. Điều này, nó còn mang đến một không gian tràn ngập không khí trong lành. Ngôi nhà như hòa mình với thiên nhiên và mang đến một cảm giác dễ chịu khi trở về nhà sau ngày dài học tập và làm việc.


































