Nhà cấp 4 tiết kiệm chi phí, đầy đủ công năng, mang nét đẹp truyền thống hiện đại. Chính vì vậy mà mẫu nhà này đang chiếm được rất nhiều thiện cảm của các chủ đầu tư trên cả nước. Để giúp quý khách có được một mẫu nhà cấp 4 đẹp nhất hiện nay, bài viết của chúng tôi hôm nay sẽ giới thiệu đến các chủ đầu tư mẫu nhà cấp 4 100m2 phù hợp với mọi không gian sống từ thành thị đến nông thôn.
Mẹo hay thiết kế nội thất nhà cấp 4 100m2 đẹp
Khi lựa chọn ngôi nhà cấp 4 cho không gian sống của gia đình mình thì bên cạnh quan tâm đến vẻ đẹp ngoại thất thì chúng ta cần có sự sắp xếp, thiết kế nội thất sao cho phù hợp. Nhằm giúp quý khách có được một không gian sống đẹp khi sở hữu một mẫu nhà cấp 4 rộng 100m2. Chúng tôi xin được chia sẻ đến quý khách những mẹo hay để thiết kế nội thất cho nhà cấp 4 rộng 100m2 đẹp qua từng phòng chức năng của ngôi nhà.

Đầu tiên không gian mà chúng ta bắt gặp ở mỗi ngôi nhà đó chính là phòng khách. Có thể nói đây là nơi mà gia đình nào cũng đầu tư nhất về diện tích, về nội thất. Bởi lẽ đây là nơi vừa dùng để tiếp khách vừa là không gian sinh hoạt chung của cả gia đình. Mẫu nhà cấp 4 100m2 cũng giống như những mẫu nhà khác không gian phòng khách được thiết kế đầu tiên ngay từ sảnh vào, tạo sự thuận tiện cho khách đến thăm nhà bạn. Không những thế theo như yếu tố phong thủy thì vị trí này rất thích hợp cho việc lưu thông, tụ khí tốt cho tổng thể toàn ngôi nhà.
Với diện tích phòng khách nhà cấp 4 có diện tích 100m2 thì cũng tương đối rộng, nhưng để đảm bảo một không gian thoáng đãng cho phòng khách thì chúng ta cũng chỉ cần những nội thất cơ bản và một số vật trang trí như: Khung ảnh, tranh, cây xanh... Không nên bày trí quá nhiều đồ cồng kềnh, rối mắt khiến cho phòng khách thêm chật hẹp. Thông thường để đảm bảo sự rộng rãi thì hầu hết các chủ đầu tư hiện nay lựa chọn mẫu phòng khách theo phong cách hiện đại. Bởi phong cách này khá đơn giản và gọn gàng nhưng cũng không kém phần tiện nghi, sang trọng.

Không gian sinh hoạt chung tiếp theo cũng không thể thiếu cho ngôi nhà cấp 4 có diện tích 100m2 là không gian của phòng bếp. Trong nhà cấp 4, phòng bếp thường được thiết kế khá đơn giản không cầu kì như những mẫu nhà khác nhưng vẫn đảm bảo được sự tiện nghi, đem lại cảm giác ấm cúng và thoải mái cho gia đình.
Trong phòng bếp có các nội thất cơ bản như tủ bếp chữ L, chữ I là phổ biến, trần nhà bếp có thể trang trí thêm các bóng đèn làm tăng thêm sự sang trọng cho phòng bếp của gia đình bạn. Mẫu nhà cấp 4 100m2 cũng có thể thiết kế lối phòng khách và phòng bếp nối liền càng tạo thêm sự thông thoáng cho không gian sống thêm phần rộng rãi.

Bên cạnh không gian sinh hoạt chung chúng ta cần kể đến một không gian rất quan trọng đối với nhà cấp 4 chính là phòng ngủ. Đối với căn nhà cấp 4 có diện tích 100m2 thường được xây dựng từ 2 – 3 đến 4 phòng ngủ. Nội thất từng phòng ngủ với các nội thất cơ bản như giường, tủ quần áo, bàn phấn, bàn học... với kích thước nội thất cần phù hợp với diện tích của căn phòng.
Phối cảnh, bản vẽ chi tiết của mẫu nhà cấp 4 rộng 100m2
Khi đã nắm được cách thiết kế không gian cho nội thất của ngôi nhà, điều quan tâm tiếp theo của chúng ta chính là việc làm sao để lựa chọn được một mẫu nhà cấp 4 diện tích 100m2 đẹp nhất hiện nay. Dưới đây là những mẫu thiết kế được chúng tôi tổng hợp từ những mẫu nhà cấp 4 đang gây sốt trên thị trường kiến trúc xây dựng.

Không quá lớn nhưng ngôi nhà không quá nhỏ, đủ để cho một gia đình 4 – 5 thành viên có thể quây quần bên nhau tại ngôi nhà cấp 4 diện tích 100m2. Hệ mái ngói trùm có phần nhô ra khi có một phòng ngủ chệch ra bên ngoài theo hệ nhà cấp 4 chữ L. Mái ngói xám đen nổi bật dưới một nền màu trắng sáng của ngôi nhà.
Mẫu nhà cấp 4 này được thiết kế với phần hiên nhà khá rộng rãi. Xung quanh ngôi nhà được thiết kế phía chân tường là những bồn cây cảnh nhỏ, bạn có thể trồng hoa, trồng cây cảnh trong những lúc thời gian rảnh rỗi. Mẫu nhà cấp 4 chữ L này được thiết kế 1 phòng khách, 1 phòng bếp, 3 phòng ngủ và 2 nhà vệ sinh chung. Trong đó một nhà vệ sinh được thiết kế khép kín trong phòng ngủ của bố mẹ và một nhà vệ sinh nằm giữa 2 phòng ngủ của các con.

Mẫu nhà cấp 4 diện tích 100m2 trên đây chúng tôi muốn giới thiệu đến các chủ đầu tư nằm trong bộ sưu tập những mẫu nhà cấp 4 được yêu thích nhất hiện nay. Mẫu nhà cấp 4 mái thái có mặt ở khắp mọi nơi bởi nó mang đến vẻ đẹp phù hợp với nhu cầu thẩm mĩ của người dân Việt Nam.
Mẫu nhà trên đây được thiết kế theo hệ mái thái với nhiều chóp mái hình chóp nhọn màu xanh than ấn tượng, ngay cả khi chiêm ngưỡng từ xa chúng ta đã thấy nổi bật bởi hệ mái thái này. Phía trước mặt tiền của ngôi nhà được thiết kế với khoảng sân khá rộng rãi, thoáng đãng.
Trước sảnh nhà chúng ta thấy nổi bật với bộ cửa gỗ màu nâu cánh gián chắc khỏe bằng gỗ tự nhiên óc chó rất bắt mắt với đường vân gỗ đẹp, 2 trụ cột vuông vức càng tạo nên độ chắc chắn cho ngôi nhà. Vẻ đẹp ngoại thất còn được thể hiện ở hệ mái hình chữ A được phân cấp thành 3 tầng rất bắt mắt. Ở mẫu nhà cấp 4 mái thái này được thiết kế với 2 cửa ra vào. Một cửa chính và một hệ cửa phụ đối diện với phòng bếp.

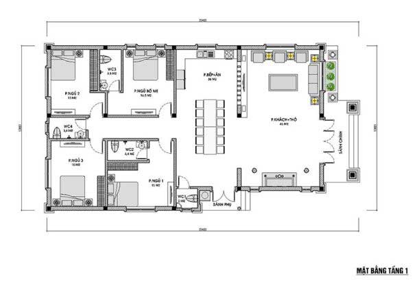
Để hiểu rõ hơn về mẫu nhà cấp 4 có diện tích là 100m2 chúng ta cùng tìm hiểu chi tiết về bản vẽ thiết kế tổng quan của ngôi nhà cấp 4 mái thái khá chi tiết tường tận từng phòng chức năng, vị trí cụ thể của từng phòng được sắp xếp khá hợp lý, hài hòa tiện nghi trong sinh hoạt của tất cả các thành viên trong gia đình được thoải mái nhất.
Theo như bản thiết kế chúng ta thấy rõ đầu tiên khi đặt chân đến sảnh của ngôi nhà cấp 4 là phòng khách của ngôi nhà được thông thoáng đối diện với phòng khách là phòng thờ được nối liền tạo ra một không gian rộng rãi. Đi qua phòng khách chúng ta sẽ đến với căn phòng bếp và phòng ăn không có bờ tường ngăn cách đây sẽ là không gian sinh hoạt chung lý tưởng để gia đình có thể quây quần bên nhau trong những bữa ăn hàng ngày. Từ phòng bếp tiến thẳng là sảnh phụ của ngôi nhà.
Phía trong cùng là không gian yên tĩnh của 4 phòng ngủ được thiết kế cân đối, hài hòa. Nhà vệ sinh cũng được phân bố hợp lý trong không gian giữa các phòng ngủ với nhau để tạo ra sự thuận lợi nhất trong sinh hoạt cá nhân hàng ngày của tất cả các thành viên trong gia đình.

Không gian ngôi nhà cấp 4 diện tích 100m2 nếu gia đình bạn có 2 – 3 thế hệ cùng chung sống nếu muốn có một không gian thực sự thoải mái trong sinh hoạt bạn có thể lựa chọn mẫu thiết kế nhà cấp 4 có gác lửng trên đây của chúng tôi. Ngôi nhà này được nằm trọn trong một khuôn viên an toàn của hệ tường rào sắt, cổng cao kín đáo.
Phía trước sảnh vẫn là khoảng sân vừa phải để bạn có thể đậu đỗ ô tô. Phía bên trong của ngôi nhà được thiết kế với 1 phòng khách, phía bên trong là phòng bếp và phòng ăn cùng với phòng ngủ. Còn tầng lửng của ngôi nhà bạn có thể sử dụng làm phòng đọc hoặc phòng thờ tùy vào sự quyết định của gia chủ.

Mẫu nhà cấp 4 trên đây của chúng tôi có diện tích 100m2 được thiết kế nằm ngang. Phòng khách được thiết kế với hệ cửa gỗ 4 cánh tạo sự rộng rãi, thoáng đãng cho phòng khách. Để có sự kết hợp hài hòa thì cửa chính và cửa phụ cùng với cửa sổ của ngôi nhà đều được lựa chọn với vật liệu bằng gỗ tự nhiên chắc khỏe.
Mẫu nhà cấp 4 này được bố trí công năng hợp lí phù hợp với số lượng thành viên trong mỗi gia đình Việt khoảng 4 - 5 thành viên trong một gia đình với 3 phòng ngủ, một phòng khách và 1 phòng bếp, 2 nhà vệ sinh chung rất cân đối, hài hòa.
Trên đây là những chia sẻ của chúng tôi về mẫu nhà cấp 4 100m2 phù hợp với mọi không gian sống từ thành thị đến nông thôn, chắc chắn sẽ mang đến sự hài lòng cho các quý chủ đầu tư trên cả nước.


































