Hãy tạm bỏ qua những khu chung cư, biệt thự liền kề, bỏ qua những ngôi nhà cao chọc trời, khi bạn muốn tìm về không gian ấm áp tiện nghi mà không hề mất đi tính thẩm mĩ. Hãy tìm về mẫu nhà câp 4 80m2 của chúng tôi. Xin đảm bảo rằng sẽ mang lại cho bạn sức hấp dẫn không thể chối từ với kiến trúc này.
Những mẫu thiết kế nhà 80m2 đẹp và theo kịp thời thượng
Ai cũng muốn tổ ấm của gia đình mình toát lên vẻ đẹp riêng của gia chủ và mang hơi hướng cảm hứng của thời đại mới nhưng chi phí xây dựng phải đảm bảo phù hợp với điều kiện kinh tế gia đình. Hãy nghĩ ngay đến kiến trúc nhà cấp 4 với 80m2. Không gian này hoàn toàn rộng rãi và thoải mái cho gia đình nào có 4- 5 thành viên. Nhà cấp 2 80m2 được bố trí với hai đến phòng ngủ tuỳ vào việc sử dụng của gia đinh. Với mục đích tiện nghi và hài hòa không gian sống với thiên nhiên cảnh vật xung quanh, mẫu nhà cấp 4 80m2 được thiết kế với kiến trúc hết sức đa dạng và nhiều kiểu mẫu khác nhau. Quý độc giả có thể tham khảo một số mẫu thiết kế dưới đây.

Kiểu nhà vườn cấp 4 mái thái gần gũi với thiên nhiên
Khi gia đình bạn đã quá ngột ngạt và trật hẹp trong không gia bó hẹp của phố thị, thì điều đầu tiên bạn nghĩ đến đó là một ngôi nhà tràn ngập sắc xanh có mái và che và hiên rộng để trẻ thơ nô đùa. Một ngôi nhà cấp 4 80m2 hoàn toàn đáp ứng được những mong muốn này. Có thể nói, hiện nay mẫu nhà cấp 4 lợp ngói đã trở thành thiết kế ưu việt và hoàn hảo hơn cả. Với những gia đình nào đang sở hữu khuôn đất ở dưới 100m2 hoàn toàn có thể xây dựng cho gia đình mình một ngôi nhà khang trang như thế này.

Với thiết kế tiết kiệm và tận dụng diện tích nhất có thể ngôi nhà được xây dựng gần với cổng chính để tạo điều kiện cho những diện tích còn lại dùng vào những nhu cầu khác. Đối với những gia đình nào muốn có mặt tiền rộng rãi và thoáng đãng thì không thể bỏ qua mẫu nhà này.

Phía ban công đón ánh nắng và không khí trong lành trước mặt cũng là điểm nhấn vô cùng độc đáo. Với thiết kế thông minh này sẽ giúp cho không gian nhà bạn được lưu thông không khí rất tốt và trong lành. Chưa kể đến cây xanh xung quanh ngôi nhà sẽ tích hợp được vô số lợi ích cho gia đình bạn như: làm thoáng mát không gian, tạo ra nguồn không khí trong lành nhất và mang lại cảnh quan đáng sống, đáng mơ ước của bao người. Đồng thời tính thẩm mĩ thì không còn gì để bàn cãi. Gia đình nào đang tính toán xây dựng ngôi nhà cấp 4 80m2 với ba phòng ngủ có thể tham khảo mẫu nhà này

Quả thực là một thiết kế tuyệt vời, ngoài cả sự mong đợi của gia chủ. Thiết kế hiện đại nổi bật với tông ngói màu nâu lạnh phối cùng những cánh cửa nhôm kính màu trầm càng tăng thêm vẻ đẹp của kiến trúc nhà cấp 4 80m2 mái thái này. Ngoài ra là không gian tràn ngập sắc xanh tươi mát mang lại cảm giác bình yên, êm đềm và thư thái cho các thành viên trở về nhà sau mỗi phút giây làm việc, học tập căng thẳng mệt nhọc.
Phối cảnh bản vẽ hoàn hảo nhất cho mẫu nhà cấp 4 80m2
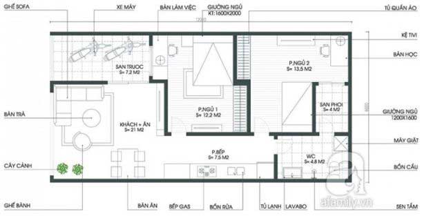
Mời quý độc giả cùng tham khảo và đánh giá mẫu nhà cấp 4 80m2 với hai phòng ngủ và một phòng khách rất kinh tế và thầm mĩ. Bản vẽ chi tiết cho mẫu nhà cấp 4 80m2 với 2 phòng ngủ.

Không gian này hoàn toàn phù hợp với những đôi vợ chồng và hai con nhỏ. Nếu gia đình nào muốn cho con cái gia ở riêng trên một khu đất khác cũng có thể lựa chọn kiến trúc này làm quà mừng cho hạnh phúc đôi lứa. Bởi nó hoàn toàn phù hợp với điều kiện hoàn cảnh mà kiểu thiết kế lại rất hiện đại, năng động. Bạn có thể thiết kế ngôi nhà mình kiểu gian thụt, gian thò, cũng có thể theo hình hộp tuỳ vào sở thích và công năng sử dụng.
Với diện tích 80m2 gia chủ sẽ có hai phòng ngủ rộng rãi có thể làm khu vệ sinh sát cạnh cửa đi vào phòng. Mỗi phòng ngủ sẽ tương ứng với một công trình phụ đi kèm. Phòng vệ sinh ngay cạnh phòng ngủ là kiểu kiến trúc riêng tư và tiện nghi đối với gia đình nào có trẻ nhỏ và người già. Ở mỗi phòng ngủ có thể thiết kế kiến trúc cùng màu sắc bên trong khác nhau tuỳ theo đối tượng sử dụng. Ví dụ đó là phòng của vợ chồng gia chủ sẽ rộng hơn phòng các con một chút và gam mà mang tính chất nhẹ nhàng tinh tế hơn. Đối với phòng khách, tối ưu nhất là được đặt cạnh cửa chính đi lại của ngôi nhà. Với thiết kế cửa chính rộng rãi thường là bốn cánh sẽ mang lại cho không gian của gia đình ngập tràn ánh nắng và sự quang quẻ, phần này sẽ chiếm diện tích lớn nhất so với các không gian khác của ngôi nhà.
Tiếp đến là khu vực bếp ăn. Một tổ ấm thực sự, một gia đình đúng nghĩa thì không thể thiếu khu vực này được. Với tổng diện tích sử dụng của cả ngôi nhà la 80m2 thì thiết kế nhà bếp sẽ khiêm tốn hơn một chút nhưng cũng bố trí hợp lí làm sao cho đủ sự tiện nghi và đầy đủ nhất để tất cả các thành viên cùng sinh hoạt ở đây. Căn phòng bếp gia chủ cũng có thể bố trí một cửa hậu để cho ngôi nhà đc thoáng đãng hơn đồng thời tạo lối đi ra sau vườn nhà dễ dàng tránh lại vòng qua cửa chính. Ngoài gia một không gian không thể thiếu của ngôi nhà chính là khu vực học tập và làm việc của các thành viên. Gia chủ có thể bố trí nơi này cạnh cửa sổ hay gần những vườn cây trái xum xuê để tăng thêm sự thoải mái và cảm thấy yêu đời hơn khi làm việc.
Bên cạnh đó mời quý độc giả tham khảo thêm mô hình nhà cấp 4 80m2 với 3 phòng ngủ dưới đây.

Chúng ta có thể dẽ dàng nhận thấy với kiểu thiết kế này sẽ tạo ra một lối lành lang đi lại giữa các phỏng ngủ. Điểm nhấn của mô hình này là phòng vệ sinh được bố trí khá rộng rãi bởi chỉ có một gian vệ sinh cho cả gia đình. Với những mô hình bản vẽ trên quý độc giả hoàn toàn có thể lựa chọn thiết kế nhà cấp 4 với 80m2 phù hợp nhất với gia đình nhà mình.
Những lưu ý quan trọng khi thiết kế mẫu nhà cấp 4
Trong văn hoá của dân tộc Việt Nam, ngôi nhà là sự gắn bó mật thiết cả đời với các thành viên trong gia đình vì vậy những lưu ý lựa chọn cho nội thất, kiến trúc, màu sắc, cảnh quang sao cho tiện lợi và hợp lí nhất ... Trước tiên xin nói về mái nhà. Có hai kiểu mái phổ biến nhất để quý gia chủ xem xét đó là mẫu nhà cấp 4 mái tôn và mái thái. Nhưng dù là mái nào thì gia đình cũng nên lựa chọn màu tôn, màu ngói hợp mệnh của gia chủ. Giả sử gia chủ mệnh hoả, nên ưu tiên lựa chọn màu ngói đỏ, ngói xanh, tránh màu đen. Đối với mái nhà thái ngói lợp cần có vách ngăn để tăng thêm độ vững chắc cho mái nhà. Ngoài ra nên tạo một đường diềm bao bọc xung quanh mái nhà sẽ làm tăng thêm vẻ uyển chuyển và duyên dáng cho cả ngôi nhà tránh được vẻ thô kệch từ những viên ngói lợp.

Bên cạnh đó việc lựa chọn lắp đặt cửa cũng rất quan trọng. Một lời khuyên cho gia chỉ khi lắp cửa cho nhà cấp 4 80m2 thì nên tìn đến những dạng cửa nhôm như nhôm xingfa cao cấp. Loại cửa này vừa sáng đẹp, bền bỉ lại giúp cho ngôi nhà mềm mại, thoáng đãng, tránh bị cing vênh và rất kinh tế so với cửa gỗ. Đối với cửa, nhất là cửa chính cũng cần tìm hiểu những màu cửa phù hợp với mệnh của chủ nhà. Quý gia chủ xây nhà lựa chọn mảnh đất bằng phẳng, vuông vắn để tăng thêm tính thẩm mĩ đồng thời cần chọn hướng nhà đẹp và hợp với tuổi và mệnh của chủ nhà để thu hút vượng khí tránh những sự không vừa ý xảy ra.
Ngoài ra mỗi gia đình nên trồng thêm cây xanh, hoa cỏ xung quanh khu vực sinh sống của cả nhà để thanh lọc không khí, gần gũi với thiên nhiên môi trường tạo hệ sinh thái gần gũi với mọi người. Nếu nhà bạn hạn chế về diện tích đất sử dụng có thể thiết kế ban công hoặc hiên nhà rộng rãi làm sao mang đến cho không gian nhà mình màu xanh tươi mát của tự nhiên.
Với những ý kiến trên chúng tôi tin rằng sẽ mang lại cgo quý gia chủ những mẫu thiết kế nhà cấp 4 80m2 sang trọng, hiện đại, phù hợp voeid nhu cầu và kinh terers của gia đình. Chúng tôi với mong muốn đưa những không gian đẹp và tiện ích đén từng nhà và rất mong được sự đón nhận của quý độc giả.


































