Những mẫu nhà cấp 4 đẹp giá rẻ 300 triệu được các gia đình ở nông thôn và những người sống ở ngoại thành lựa chọn vì sự độc đáo trong thiết kế và tiết kiệm chi phí. Những mẫu nhà cấp 4 giá 300 triệu thường có thiết kế đơn giản, tiết kiệm chi phí và đặc biệt là tiện lợi trong quá trình sử dụng và phù hợp với túi tiền của các gia đình Việt. Khám phá ngay những mẫu nhà cấp 4 dưới 300 triệu đẹp nhất đang là xu hướng hiện nay để có thêm gợi ý cho gia đình.

Ưu điểm của những mẫu nhà cấp 4 giá 300 triệu
Một số ưu điểm của những mẫu nhà cấp 4 với giá 300 triệu đồng là:
Giá thành hợp lý
Với ngân sách 300 triệu đồng, bạn có thể xây dựng một ngôi nhà cấp 4 nhỏ gọn và tiết kiệm chi phí. Giá thành thấp giúp bạn tiết kiệm được nhiều tiền và có khả năng xây dựng nhanh chóng.
Tiết kiệm diện tích
Nhà cấp 4 thường có diện tích không quá lớn, giúp tiết kiệm diện tích đất sử dụng. Điều này đặc biệt hữu ích trong các khu đô thị có giá đất cao hoặc khi bạn chỉ cần một không gian nhỏ để sinh sống.
Thiết kế linh hoạt
Mẫu nhà cấp 4 thường có thiết kế đơn giản, tiện lợi và linh hoạt. Bạn có thể tùy chỉnh kiểu dáng và bố trí phòng theo nhu cầu của gia đình mình. Thiết kế linh hoạt giúp tối ưu hóa không gian sử dụng và đảm bảo sự thoải mái cho cư dân.
Dễ dàng bảo trì và vận hành
Với kích thước nhỏ gọn, việc bảo trì và vận hành nhà cấp 4 thường đơn giản hơn so với các ngôi nhà lớn hơn. Chi phí bảo trì, sửa chữa và nâng cấp cũng thường ít hơn.
Tiết kiệm năng lượng
Những mẫu nhà cấp 4 thông thường có diện tích nhỏ, điều này giúp giảm thiểu lượng năng lượng cần thiết để làm mát hoặc sưởi ấm ngôi nhà. Bạn có thể tận dụng ánh sáng và gió tự nhiên để giảm điện năng tiêu thụ.
Xây dựng nhanh chóng
Với kích thước nhỏ và thiết kế đơn giản, việc xây dựng một ngôi nhà cấp 4 thường nhanh chóng và đơn giản hơn so với những công trình phức tạp hơn. Thời gian xây dựng ngắn hơn giúp bạn sớm có thể chuyển vào ở.
Tuy nhiên, cần lưu ý rằng những mẫu nhà cấp 4 với ngân sách hạn chế có thể có một số hạn chế như không gian sống hạn chế và thiếu tiện nghi phức tạp. Do đó, cân nhắc kỹ lưỡng và lên kế hoạch chi tiết trước khi xây dựng.

Chia sẻ kinh nghiệm xây dựng nhà cấp 4 dưới 300
Xây dựng một ngôi nhà cấp 4 dưới 300 triệu đồng có thể là một thách thức, nhưng vẫn hoàn toàn khả thi. Dưới đây là một số kinh nghiệm và gợi ý để giúp bạn xây dựng một ngôi nhà cấp 4 với ngân sách hạn chế.
Lập kế hoạch kỹ lưỡng
Trước khi bắt đầu xây dựng, hãy lập kế hoạch chi tiết về kiểu dáng, diện tích và vật liệu bạn muốn sử dụng. Xác định rõ ràng các yêu cầu cần thiết để tránh lãng phí và tránh những thay đổi không cần thiết trong quá trình xây dựng.
Tìm hiểu và so sánh giá
Nghiên cứu các loại vật liệu xây dựng và thiết bị gia dụng để tìm ra những lựa chọn phù hợp với ngân sách của bạn. Hãy tham khảo nhiều nguồn cung cấp và so sánh giá cả để đảm bảo bạn mua được vật liệu chất lượng với giá hợp lý.
Xây dựng theo kiểu cơ bản
Chọn một kiểu nhà đơn giản và tiết kiệm chi phí, tránh các chi tiết phức tạp và cầu kỳ. Một ngôi nhà cấp 4 thông thường thường có diện tích nhỏ và không cần nhiều tiện nghi phức tạp.
Tận dụng các vật liệu tái chế
Cân nhắc sử dụng các vật liệu tái chế hoặc vật liệu giá rẻ khác như gạch nung, gỗ tái chế, tấm xi măng amiăng (AC), v.v. Điều này giúp giảm chi phí và có tác động tích cực đến môi trường.
Tự làm một số công việc
Nếu bạn có kỹ năng và kiến thức cần thiết, hãy tự thực hiện một số công việc như sơn, trát tường, lắp đặt đèn, v.v. Điều này giúp tiết kiệm được một khoản tiền dành cho nhân công.
Sử dụng nguồn lao động địa phương
Tuyển dụng lao động địa phương có thể giảm chi phí nhân công so với việc thuê nhân công chuyên nghiệp từ xa. Hãy thương lượng và thỏa thuận với những người làm công để đảm bảo giá cả hợp lý.
Cân nhắc việc mua sẵn hoặc xây tạm
Nếu bạn có ngân sách hạn chế, hãy xem xét việc mua một ngôi nhà sẵn có hoặc xây dựng một căn nhà tạm thời như nhà container để tiết kiệm chi phí. Sau đó, khi tài chính của bạn cải thiện, bạn có thể nâng cấp hoặc xây dựng một ngôi nhà cố định.
Lưu ý rằng giá cả và kinh nghiệm xây dựng có thể khác nhau tùy thuộc vào vùng địa lý và điều kiện cụ thể. Nên tham khảo ý kiến của các chuyên gia xây dựng và kiểm tra các quy định xây dựng địa phương trước khi bắt đầu dự án.
Mẫu nhà cấp 4 dưới 300 triệu 3 phòng ngủ mái thái
Đối với những mẫu nhà cấp 4 300 triệu 3 phòng ngủ mái thái được nhiều gia đình lựa chọn nhất bởi kiểu thiết kế này là kiểu kiến trúc cơ bản nhất hiện nay. Thiết kế cân đối giữa các phòng đảm bảo công năng sử dụng của các thành viên trong gia đình.

Thiết kế phòng ngủ đẹp mắt

Phối cảnh nội thất bên trong
Nhìn vào bản phối cảnh nội thất bên trong có thể thấy thiết kế 4 phòng ngủ cân đối và diện tích như nhau thành một hàng thẳng, đặc biệt các phòng đều có cửa sổ và không gian thông thoáng. Đối với phòng khách và phòng bếp được thiết kế thông nhau để đảm bảo diện tích tốt nhất cho ngôi nhà cũng như sự tiện lợi khi sử dụng.
Mẫu nhà cấp 4 đẹp giá rẻ 300 triệu có gara ô tô
Đây là một trong những phong cách thiết kế hiện đại được các gia đình yêu thích bởi sự tiện dụng và không gian hài hòa, cân đối giữa ngoại thất và nội thất. Gara ô tô được thiết kế gắn liền với không gian của ngôi nhà nhưng vẫn đảm bảo được diện tích sử dụng và sự tiện nghi cho gia đình

Mẫu thiết kế nhà cấp 4 300 triệu có gara ô tô không cầu kỳ, các khối không gian được liên kết với nhau tạo thành một thể thống nhất bắt mắt và đảm bảo tối đa công năng của lô đất. Đây là một trong những phong cách thiết kế được nhiều gia đình lựa chọn hiện nay.

Mẫu nhà cấp 4 dưới 300 triệu mái thái kép
Dưới đây là mẫu nhà cấp 4 có kinh phí xây dựng dưới 300. Mẫu thiết kế này với nét độc đáo tạo nên điểm nhấn cho ngôi nhà chính là phần mái thái. Mẫu này khi được Xây Dựng Số đăng tải trên fanpage của website đã nhận được rất nhiều phản hồi tích cực và rất nhiều gia chủ mong muốn được sở hữu một ngôi nhà như vậy.

Để tăng thêm không gian và diện tích sử dụng, kts đã thống nhất với gia chủ thiết kế thêm một tầng lửng nhưng vẫn giữ nguyên chiều cao của ngôi nhà. Thêm phần gác lửng thường là giải pháp rất tốt cho những gia đình có nhà cấp 4 chật hẹp. Thêm gác lửng giúp tiết kiệm diện tích và tiết kiệm chi phí đầu tư cho gia chủ. Đây là mẫu thiết kế phù hợp với những lô đất có diện tích khoảng 5mx20m. Mẫu thiết kế với đặc điểm nổi bật là: có mái che, có thêm gác lửng. Mặt tiền ngôi nhà được thiết kế tỉ mỉ từng chi tiết mang tính thẩm mỹ cao. Ngôi nhà mặt tiền tuy đi với nhà cấp 4 nhưng vẫn tạo được sự sang trọng và bề thế đó là sự kết hợp hài hòa từ cách bố trí hợp lý đến việc sử dụng các hoa văn trang trí nhẹ nhàng, hài hòa. Cùng với đó là việc sử dụng gỗ cũng tạo nên sự sang trọng riêng cho ngôi nhà. Mặt tiền ngôi nhà được bố trí 2 cửa lớn tạo sự thông thoáng cho không gian hẹp bên trong.

Tầng 1: phòng khách được thiết kế gần cửa chính. Tiếp theo là kết nối với tầng lửng. Khoảng không gian trống trong phòng khách do gác lửng để lại tạo không gian thông thoáng hơn cho phòng khách, đồng thời cũng giúp phòng khách tăng thêm phần sang trọng. Bên trong là phòng ăn, nhà vệ sinh và phía dưới là phòng ngủ.

Mẫu nhà cấp 4 dưới 300 triệu mái bằng
Mẫu nhà cấp 4 mái thái là gì với chi phí xây dựng trong khoảng 200 triệu đồng. Với khoảng không phía trên mái bằng chúng ta có thêm không gian để ngồi uống cafe và ngắm cảnh sân vườn đẹp.

Với đường nét thiết kế đơn giản, tông màu chủ đạo là trắng và cam kết hợp hài hòa tạo nên vẻ đẹp cho ngôi nhà. Nếu bạn có mảnh đất khoảng 5x12m và muốn tiết kiệm chi phí nhất khi xây nhà thì đây chính là mẫu thiết kế khiến bạn phải lưu tâm.

Đây là mẫu nhà cấp 4 nhưng với phần móng kết cấu của ngôi nhà, sau này gia chủ có thể nâng cấp lên thêm 2 tầng. Ngôi nhà được thiết kế theo phong cách hiện đại, với tông màu trắng chủ đạo là màu của các đồ trang trí. Phía trước nhà để lại không gian rộng rãi để xe và sân.

Với phương án nâng cấp sau này, khu vực làm việc của ngôi nhà rất đơn giản: 1 phòng khách đặt cạnh cửa chính, cạnh đó là bếp và cầu thang lên mái. Đi vào phía sau bên trong là 1 phòng ngủ và 1 phòng tắm. Với cách bố trí công năng như vậy, ngôi nhà chỉ phù hợp với một gia đình có 2 vợ chồng trẻ.
Mẫu nhà cấp 4 dưới 300 triệu mái thái
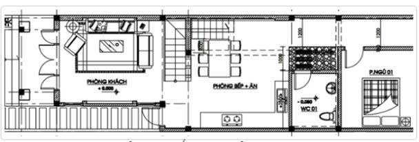
Quay lại sự lựa chọn mái khác. Với những ngôi nhà cấp 4, việc lựa chọn mái thái là một lựa chọn rất phổ biến. Bởi kiểu mái thái với chi phí tiết kiệm và về mặt thẩm mỹ luôn đẹp và không sợ lỗi thời. Đây là mẫu nhà cấp 4 diện tích xây dựng 130m2 với công năng được xác định: 4 phòng ngủ, 1 phòng thờ. Nhà cấp 4 hiện đại 130m2 có 4 phòng ngủ là mẫu thiết kế phù hợp với gia đình có 3 thế hệ: vợ chồng, con cái và bố mẹ. Không gian sống được tính toán kỹ lưỡng để đảm bảo sự riêng tư cho các thành viên trong gia đình.

Bước vào tổng thể ngôi nhà gây ấn tượng với sự kết hợp của những hình khối đơn giản, cùng với những họa tiết trang trí khiến ngôi nhà trở nên có sức sống hơn. Đại sảnh với 2 cột trụ trang trí tạo nên sự khỏe khoắn cho ngôi nhà và gây ấn tượng mạnh cho mọi vị khách ghé thăm. Xung quanh nhà trồng thêm cây cảnh để tạo thêm không gian xanh gần gũi với thiên nhiên. Những thảm hoa bằng đá tự nhiên tạo nên sự ấn tượng và lạ mắt. Bậc tam cấp không quá cao, không quá thấp tạo tầm nhìn rất thoáng từ trong ra ngoài.

Phòng khách được bố trí ngay sau sảnh chính, 2 phòng ngủ 2 bên. Đi vào bên trong là phòng bếp và khu sinh hoạt chung của gia đình. Có 2 phòng ngủ. Với 4 phòng ngủ, có 3 phòng ngủ có phòng vệ sinh khép kín tạo không gian riêng tư cho các thành viên. Mỗi phòng ngủ đều có cửa sổ nhìn ra bên ngoài với những bồn hoa tạo view đẹp cho từng phòng ngủ. Trên đây Xây Dựng Số đã giới thiệu đến bạn đọc một số mẫu nhà cấp 4 có chi phí xây dựng trong khoảng 300 triệu. Mong rằng bạn đọc có thể lựa chọn cho mình một ngôi nhà đẹp và phù hợp với bản thân.
Mẫu nhà cấp 4 đẹp giá rẻ 300 triệu hình chữ L hiện đại
Mẫu nhà cấp 4 chữ L được nhiều gia đình lựa chọn bởi sự đơn giản trong thiết kế, không gian ấn tượng và độc đáo. Mỗi mẫu nhà cấp 4 chữ L đều thể hiện được không gian sống hài hòa và đặc biệt tiện dụng.

Không gian ngoại thất của mẫu nhà cấp 4 mái thái 300 triệu chữ L hài hòa, kết hợp hoàn hảo giữa phần mái thái với gam màu sáng và không gian sử dụng đảm bảo sự thông thoáng cần thiết và tối ưu cho gia đình. Ngoại thất mẫu thiết kế nhà cấp 4 này được thiết kế 2 sảnh trong đó thiết kế mái thái che sảnh chính tạo không gian thoáng và che chắn tốt cho sảnh chính.

Các phòng được bố trí khoa học, tiện nghi đảm bảo công năng sử dụng và giúp các thành viên có được sự riêng tư cần thiết. Đây là một trong những mẫu nhà cấp 4 giá rẻ 300 triệu mái thái được nhiều người sử dụng nhất hiện nay. Trên đây là những mẫu nhà cấp 4 mà Xây Dựng Số gửi đến bạn. Hy vọng bạn sẽ tìm được ý tưởng cho ngôi nhà sắp tới của mình!
Xem thêm:
Những mẫu nhà cấp 4 chữ L giá 300 triệu


































