Mẫu nhà cấp 4 rất được yêu thích cả ở khu vực thành phố và nông thôn. Với ưu điểm là đáp ứng đầy đủ nhu cầu sử dụng, nhu cầu thẩm mĩ mang đến không gian sống thoáng đãng, mẫu nhà này đang chinh phục được không ít những chủ đầu tư. Bài viết của chúng tôi hôm nay sẽ giúp quý khách có được những mẫu nhà cấp 4 rộng 7m nhỏ gọn gàng đang được yêu thích hiện nay.
Đặc điểm của mẫu nhà cấp 4 7m nhỏ gọn gàng
Trước khi cùng đi ngắm nhìn chi tiết các bản thiết kế phối cảnh mẫu nhà cấp 7 rộng 7m chúng ta cùng tìm hiểu qua một số đặc điểm nổi bật của các mẫu nhà cấp 4 với diện tích 7m hiện nay khiến các chủ đầu tư yêu thích lựa chọn nhé.

Mẫu nhà cấp 4 dù rộng hay hẹp với không gian 7m là chúng ta thấy đủ để đáp ứng nhu cầu thẩm mỹ, phù hợp với đặc điểm khí hậu tại Việt Nam. Dù là nhà cấp 4 bình thường hay có gác lửng thì nhìn chung mẫu nhà này đều rất phù hợp với đặc điểm của điều kiện khí hậu nhiệt đơi của Việt Nam cũng như thị hiếu thẩm mỹ của người Việt.
Mẫu nhà cấp 4 diện tích 7m còn thích hợp với lối kiến trúc truyền thống phổ biến tại nước ta, mẫu nhà cấp 4 từ xưa đến nay vẫn được yêu thích bởi mẫu nhà này mang đến cảm giác gần gũi thân thuộc cho mỗi người Việt Nam ta.
Gần gũi với vẻ đẹp truyền thống, đổi mới theo hướng hiện đại với những mẫu nhà đa dạng về kiểu dáng như nhà cấp 4 mái bằng, nhà cấp 4 mái thái, nhà cấp 4 theo phong cách nhà vườn... Chính bởi vẻ đẹp này nên mẫu nhà cấp 4 đang có mặt ở khắp mọi miền của tổ quốc.

Mẫu nhà cấp 4 diện tích 7m còn mang đến cảm giác gần gũi, thân thuộc với thiên nhiên. Với kiến trúc 1 tầng thì các mẫu nhà cấp 4 xung quanh còn được bao bọc bởi một vẻ đẹp đến từ thiên nhiên xung quanh mà khó có mẫu nhà nào có thể làm được như mẫu nhà cấp 4. Đặc biệt khi không gian ngôi nhà cấp 4 được kết hợp các chất liệu hiện đại chẳng hạn như kính cường lực thì nó càng khiến cho không gian càng trở nên thoáng đãng và rộng rãi hơn rất nhiều.
Khi lựa chọn mẫu nhà cấp 4 còn giúp các chủ đầu tư tiết kiệm được chi phí xây dựng khá lớn sơ với những mẫu nhà cao tầng. Phù hợp với tài chính của nhiều chủ đầu tư. Hơn nữa mẫu nhà cấp 4 có kiểu dáng khá đơn giản nên vật liệu xây dựng ít, chi phí nhân công không quá nhiều nên tiết kiệm chi phí đáng kể.
Phối cảnh – bản vẽ chi tiết những mẫu nhà cấp 4 diện tích 7m đẹp nhất hiện nay
Mẫu nhà cấp 4 đầu tiên chúng tôi giới thiệu trên đây ghi lại dấu ấn trong lòng các chủ đầu tư bằng vẻ đẹp mộc mạc, nhẹ nhàng cùng với thiên nhiên cây cỏ. Với diện tích 7m thì ngôi nhà trên đây chính là sự lựa chọn được xem là phù hợp nhất. Mẫu nhà này chúng ta thấy nó không chỉ phù hợp ở khu vực nông thôn mà cả khu vực thành phố nơi đất chật người đông sự quay trở về với một cuộc sống dân giã thì chẳng phải đó là một điều rất tuyệt vời.

Ngôi nhà được là sự hòa quyện giữa những vẻ đẹp từ hệ mái ngói chữ A nổi, cửa kính trong suốt mở rộng không gian và mang được cả nguồn ánh sáng đến với căn nhà. Xung quanh ngoại thất của ngôi nhà được trồng cây xanh là nơi bạn có thể chăm chút vẻ đẹp của ngôi nhà sau cuối ngày làm việc căng thẳng và mệt mỏi.
Nhà cấp 4 mái bằng diện tích 7m trở thành sự lựa chọn phổ biến với những lô đất ở khu vực thành phố và những khu vực nông thôn phát triển. Góp mặt trong danh sách các mẫu nhà cấp 4 đang được ưa chuộng nhất hiện nay chúng ta không thể bỏ qua mẫu nhà cấp 4 mái bằng này. Bởi đây là mẫu nhà rất phù hợp với cuộc sống hiện đại, phù hợp với diện tích 7m của lô đất, phù hợp với nhu cầu thẩm mĩ ngày càng cao của con người.

Mẫu nhà cấp 4 diện tích 7m tuy không quá rộng nhưng chúng ta thấy toát lên đó là một vẻ đẹp khỏe khoắn của ngôi nhà trước sự thay đổi mưa nắng của thời tiết. Mặt tiền của ngôi nhà được thiết kế ấn tượng với màu xanh non của cây cỏ, khiến cho con người cảm thấy yêu đời, trong một cuộc sống có được một bầu không khí trong lành.
Bề mặt của ngôi nhà được lựa chọn là gam màu trắng sáng càng làm nổi bật vẻ đẹp của những điểm nhấn được tạo nên từ ngôi nhà cấp 4 mái bằng này đó là dưới nền trắng ta càng thấy rõ một vẻ đẹp hiện đại khi có sự góp mặt của màu xám sang trọng làm điểm nhấn, màu nâu sọc kẻ ngang ngay viền của cửa lớn bằng kính trong suốt, khiến cho ngôi nhà 7m càng được mở rộng không gian.

Nếu yêu thích sự mới mẻ, phá cách trong thiết kế nhà cấp 4 chúng ta có thể đến với mẫu nhà cấp 4 diện tích 7m mái lệch trên đây của chúng tôi. Hệ nhà mái lệch trong những năm gần đây đang rất phát triển trên thị trường kiến trúc xây dựng của Việt Nam. Bởi lẽ mẫu nhà này mang đến một lối kiến trúc độc đáo, mang tính thẩm mĩ cao và đặc biệt là vẫn đảm bảo được công năng sử dụng tiện nghi, hiện đại cho gia đình 4 – 5 thành viên.
Mẫu nhà này cũng không lựa chọn gam màu sắc sỡ mà mà vẫn an toàn tạo nên vẻ đẹp bằng màu trắng sáng quen thuộc. Vì màu trắng được xem là gam màu có khả năng “ an gian” diện tích cho ngôi nhà với không gian tuy 7m nhưng chúng ta không hề cảm thấy chật trội mà ngược lại với lối thiết kế các phòng chức năng hợp lý, sự sắp xếp gọn gàng ngôi nhà vẫn trở lên rộng rãi và thoải mái trong sinh hoạt.
Phía bên ngoài mặt tiền của ngôi nhà được thiết kế, bày trí khá bắt mắt với sự xuất hiện của bể cây cảnh, đá trang trí, một chỗ ngồi ngắm cảnh thiên nhiên lý tưởng ngay tại sân của gia đình bạn. Tuy nhiên khi xây dựng nhà cấp 4 mái lệch bạn cần chú ý trong quá trình đổ móng cho ngôi nhà bạn cần đặt sự an toàn chắc chắn lên hàng đầu vì ngôi nhà có trọng lực mái lệch dồn về một bên, nên để công trình có độ bền lâu, an toàn cho người sử dụng thì bạn cũng cần hết sức lưu ý.

Bên cạnh một mẫu nhà cấp 4 mái bằng, mái lệch. Với diện tích 7m bạn cũng có thể hoàn toàn lựa chọn mẫu nhà mái thái này cho ngôi nhà trong tương lai của gia đình mình. Ngôi nhà này dù được thiết kế ở khu vực thành phố hay là khu vực nông thôn thì cũng rất hợp lý.
Mẫu nhà mái thái màu xanh than được nổi bật trên nền nhà màu trắng vô cùng bắt mắt. Nhìn từ xa ngôi nhà đã toát lên vẻ sang trọng của một ngôi nhà cấp 4 lựa chọn phong cách mái thái, Mẫu nhà này được thiết kế với hệ cửa chính và cửa phụ. Nhìn tổng quan ngôi nhà ngoài bộ mái chắc chắn, chúng ta thấy xuất hiện với vẻ đẹp ngoại thất còn có bộ cửa gỗ tự nhiên chắc chắn với màu nâu cánh gián có kết hợp ô kính, 2 trụ cột tròn được đặt ngay vị trí trung tâm ngôi nhà tạo nên sự chắc chắn, an tâm cho gia chủ.
Ngắm nhìn ngôi nhà chúng ta còn thất mẫu thiết kế này còn được thiết kế khá nhiều cửa sổ giúp cho ngôi nhà luôn luôn được đảm bảo một nguồn ánh sáng đủ và một không gian thực sự khoáng đạt, tự nhiên.

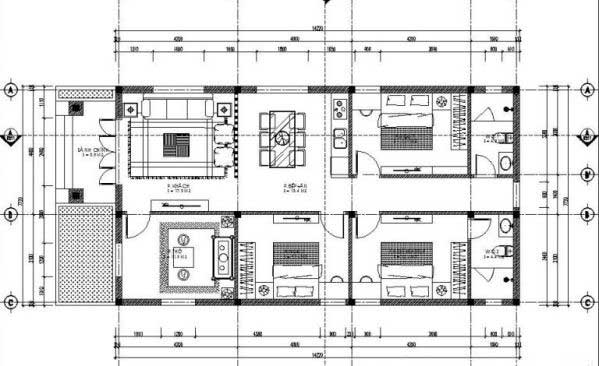
Trên đây là bản vẽ chi tiết cho mẫu nhà cấp 4 có diện tích 7m nằm ngang. Như chúng ta thấy rõ đây là bản vẽ khá chi tiết cụ thể cho một ngôi nhà cấp 4 với phía trước của ngôi nhà là phần sảnh trước nhà bạn có thể trang trí thêm để cho phần trước của ngôi nhà thêm phần bắt mắt.
Đi qua sảnh chúng ta thất đầu tiên là phòng khách. Đây là nơi mà các thành viên trong gia đình sinh hoạt nhiều hơn cả. Nên khu vực này thường được ưu tiên nhất về diện tích và cả về trang trí nội thất. Ngoài ở bản vẽ thiết kế này chúng ta còn thấy được thiết kế thêm một phòng thờ là nơi không thể thiếu trong kiến trúc xây dựng nhà ở tại Việt Nam.
Ngôi nhà cấp 4 này mặc dù chỉ 7m nhưng vẫn được thiết kế gọn gàng với 3 phòng ngủ, 1 phòng bếp và phòng ăn. Ngoài ra nhà vệ sinh để tiện lợi trong sinh hoạt thì được thiết kế nhà nhà vệ sinh. Trong đó 1 nhà nằm khép kín ở phòng ngủ. Phòng còn lại nằm ở bên ngoài.
Với những chia sẻ trên đây của chúng tôi về mẫu nhà cấp 4. Hi vọng đã ít nhiều mang đến cho quý chủ đầu tư những thông tin hữu ích về mẫu nhà cấp 4 7m nhỏ gọn gàng để quý khách tham khảo cho mẫu nhà trong tương lai của gia đình mình.


































