Hiện nay nhà cấp 4 có gác lửng 5x16m với chi phí thấp đang là chủ đề của nhiều gia đình tìm kiếm. Mô hình này thường được xây dựng chủ yếu ở các vùng nông thôn có diện tích quỹ đất vuông vức đẹp mắt. Bạn có thể tận dụng tối ưu quỹ đất mình đang có bằng cách mở rộng không gian theo chiều cao mà không làm phát sinh chi phí. Để tham khảm nhiều mẫu nhà cấp 4 ấn tượng nhất, bạn có thể theo dõi bài viết dưới đây từ Xây Dựng Số nhé!
Nhà cấp 4 có gác lửng là gì?
Nhà cấp 4 thường là mẫu nhà ở được xây dựng theo dạng thấp tầng, thông thường là nhà một tầng, để đáp ứng nhu cầu sử dụng của mọi người trong gia đình mà nhiều người lựa chọn xây thêm phần gác lửng
Tầng lửng hay còn được gọi là gác xép, gác lửng là một trong những kiến trúc nhà khá phổ biến hiện nay. Đó là một tầng trung gian giữa các tầng trong ngôi nhà hoặc là một tòa nhà chính do đó thường không được tính trong số các tầng tổng thể của một tòa nhà
Mẫu nhà cấp 4 có gác lửng 5x16m đẹp đang là sự lựa chọn hàng đầu của những gia đình có kinh phí xây dựng bị hạn chế ngày nay

Làm thế nào để có được các mẫu nhà cấp 4 có gác lửng 4x16m ấn tượng nhất?
Theo các chuyên gia xây dựng nhà có thiết kế hiện đại, để có được nhà cấp 4 có mái lửng ấn tượng thì bạn không thể bỏ qua những lời khuyên như sau:
Thứ nhất, xác định chức năng của gác lửng
Trước khi tiến hành xây dựng, bạn cần xác định sẽ dùng gác lửng để làm không gian sinh hoạt cho những nhu cầu nào? Là phòng khách, phòng sinh hoạt chung, phòng ngủ hay phòng thờ…?

Nếu như không gian gác lửng dự định là phòng khách hoặc phòng sinh hoạt chung thì bạn có thể thiết kế không gian theo phong cách mở để tạo sự thông thoáng chung. Hoặc nếu như bạn định thiết kế gác lửng làm phòng ngủ thì nên phân chia không gian gác lửng cho hợp lý, đảm bảo không gian riêng tư nhưng không được quá bí bách.
Thứ hai, màu sắc tươi mới, ánh sáng vừa đủ
Đây chính là bí quyết giúp bạn có được mẫu nhà cấp 4 có gác lửng 4x16 hiện đại, tiện dụng và ấn tượng nhất. Những gam màu tươi sáng, đồ nội thất màu trung tính chắc chắn sẽ giúp cho không gian trở nên nhẹ nhàng và thư thái hơn. Đồng thời, gam màu này cũng giúp an gian chiều rộng của căn nhà, tạo nên một không gian sống rộng rãi và có chiều sâu hơn.
Thứ ba, không nên tham lam thiết kế gác lửng quá lớn
Gác lửng hay còn gọi là gác xép, thực chất là biện pháp giúp bạn mở rộng diện tích sử dụng theo chiều cao. Chính vì vậy, bạn không nên quá tham lam mở rộng diện tích mà thiết kế căn gác lửng đồ sộ với diện tích khổng lồ.

Nghe có vẻ như không ăn khớp gì nhưng trên thực tế, một căn gác quá rộng sẽ làm cho không gian tổng thể bị tù túng và bí bách hơn. Theo đó, chiều cao cho mỗi căn gác lửng không nên vượt quá ngưỡng 3 mét, chiều rộng bằng 2/3 diện tích của mặt sàn và không nên vượt quá 80% tổng diện tích xây dựng.
Thứ tư, lựa chọn vị trí đặt cầu thang bộ cho phù hợp
Gác lửng có bậc thang tuy nhiên thường thì số bậc sẽ bị giới hạn. Chính vì thế, bạn hãy cân nhắc vị trí đặt cầu thang để vừa đảm bảo yếu tố thẩm mỹ, vừa tránh sự bất tiện trong quá trình sinh sống sau này.
Theo Xây Dựng Số vị trí lý tưởng nhất để đặt cầu thang bộ chính là giáp tường, ngay cạnh phòng khách nếu phòng khách ở ngay phía dưới.
Phối cảnh mẫu nhà cấp 4 có gác lửng 5x16m hiện nay
Ngày nay nhà cấp 4 có gác lửng thưởng được thiết kế đơn giản, tuy nhiên luôn thể hiện được không gian sống thoáng rộng,đầy đủ tiện nghi mang lại sự thoải mái, dễ chịu cho cách thành viên trong gia đình.

Sự kết hợn màu sắc của ngôi nhà luôn được các gia đình trẻ quan tâm, các ngôi nhà cấp 4 thường được phối hợp hài hòa giữa cac màu trắng, xanh và nâu đẹp mắt. Ngôi nhà luôn tràn ngập ánh sáng tự nhiên với hệ cửa kính viền nhôm mang lại cảm giác thoải mái và dễ chịu. Vì là nhà cấp 4 nên rất nhiều người quan tâm đến hệ thống mái của nhà cấp 4. Mái nhà thường có màu đỏ, ghi và đen giúp hài hòa hơn với tổng thể màu sắc của ngôi nhà. Bạn sẽ có cảm giác được hòa mình vào với thiên nhiên hơn khi có thiết kế sân vườn rộng rãi, thoáng mát trước nhà
Với lối thiết kế thông minh, giàu tính sáng tạo của kiến trúc sư. Bạn sẽ chọn chon mình được những mẫu thiết kế nhà cấp 4 gác lửng ưng ý nhất. Sau đây là thiết kế mặt bằng cơ bản của nhà cấp 4 mà bạn có thể tham khảo
Mặt bằng tầng trệt

Bản vẽ bao gồm 3 phòng ngủ và các phòng chức năng khác.Tầng trệt nhà cấp 4 được thiết kế ngay tại sảng chính bước vào phòng khách nên đón được nhiều ánh sáng và thông thoáng. Ngay cạnh phòng khách là phòng bếp ăn được bố trí cạnh cầu thang và được phân cách với phòng khách bởi vách ngăn. Phòng ngủ được bố trí ở cuối ngôi nhà và tách biệt với không gian chung -là nơi cần cần không gian yên tĩnh, riêng tư. WC được thiết kế phía cuối cùng của hành lang,cạnh bên sân sau thoáng mát đáp ứng nhu cầu sinh hoạt của cách thành viên trong gia đình tiện lợi hơn
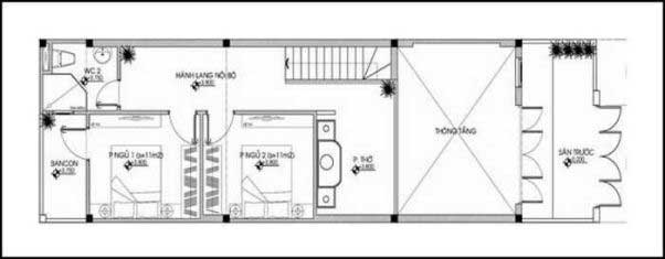
Mặt bằng gác lửng

Các nhà cấp 4 có gác lửng thường được thiết kế có khoảng thông tầng giúp đối lưu không khí tốt hơn cảm giác sẽ không bị tù túng, bí bách. Việc thiết kế khoảng thông tầng sẽ giảm bớt được hiện tượng nồm ẩm, phù hợp với kiểu thời tiết của Việt Nam. Phòng thờ thường được thiết kế ở khu vực đầu tiên nhằm đảm bảo yêu tố phong thủy và trang nghiêm cần có.Hai phòng ngủ được thiết kế phía trong với phòng ngủ phía sau có ban công mát mẻ, thoáng đãng. Ở cuối hành lang là nhà vệ sinh chung thuận tiện cho việc sử dụng
Bên cạnh việc thiết kế phối cảnh và công năng cho mẫu nhà cấp 4 có gác lửng 5×16, nội thất trong nhà cũng cần có sự đồng bộ, đảm bảo về thẩm mỹ để tạo nên một không gian sống hoàn hảo.
Kiến trúc sư đã lên phương án sắp xếp đồ nội thất một cách hợp lý nhất, tạo được sự thông thoáng cho lối đi. Màu sắc của đồ nội thất gỗ được hài hòa với tone màu chủ đạo của trần, tường và sàn nhà tạo nên một không gian phòng khách ấm cúngThiết kế nội thất phòng khách

Thiết kế nội thất phòng khách
Không gian phòng bếp và ăn sử dụng đồ nội thất gỗ cao cấp với bàn bếp được ốp đá tươi sáng cùng bộ bàn ghế ăn tinh tế. Những chậu cây xanh tô điểm cho căn phòng trở nên sinh động hơn. Bức tranh treo tường là điểm nhấn nghệ thuật cho không gian này.

Thiết kế nội thất phòng bếp
Thiết kế phòng ngủ rộng rãi với đầy đủ nội thất tiện nghi cho gia chủ thoải mái và thư giãn nhất có thể. Gam màu trầm xám được lựa chọn cho căn phòng này, đem lại sự quý phái không gian riêng tư. Sàn nhà và bức tường đầu giường bằng gỗ tạo cảm giác sang trọng nhưng vẫn gần gũi, thân thiện.Thiết kế nội thất phòng ngủ

Thiết kế nội thất phòng ngủ
Phòng thờ được bố trí cùng hướng với ngôi nhà đảm đảo yếu tố phong thủy cho không gian linh thiêng này. Nội thất gỗ phong cách truyền thống thể hiện sự trang trọng và thành kính với ông bà, tổ tiên.

Thiết kế nội thất phòng thờ
Các gia đình trẻ với nguồn kinh phí hạn chế luôn tìm kiếm cho mình mẫu nhà đẹp, tiện ích phù hợp với túi tiền của mình. Và những mấu nhà cấp 4 có gác lửng luôn là sự lựa chọn hàng đầu
Nhà cấp 4 có gác lửng 3 phòng ngủ mái bằng

Mẫu nhà cấp 4 có gác lửng 6×15 thường sẽ được rộng hơn một chút. Mái bằng tuy không mang lại giá trị thẩm mỹ cao như mái thái. Đối với mái bằng thì nhà cấp 4 không bao giờ sợ lỗi mốt và tiện sử dụng, trang trí.
Với kiểu nhà này, ngoài 3 phòng ngủ, dễ dàng thiết kế thêm phòng khách, khu sinh hoạt chung, nhà vệ sinh chung, phòng thờ và có thể thêm phòng làm việc.
Nhà cấp 4 gác lửng 3 phòng ngủ thêm sân vườn

Kiểu nhà sân vườn này phù hợp với những ô đất rộng, vuông vắn mà chi phí xây dựng lại không quá cao.
Bạn có thể bố trí các không gian trong nhà như sau: Tầng 1 gồm phòng khách, phòng bếp ăn, 2 phòng ngủ, khu giặt phơi và nhà vệ sinh. Tầng lửng: Phòng thờ có ban công, 1 phòng ngủ và 1 nhà vệ sinh.
Nhà ống cấp 4 gác lửng 3 phòng ngủ diện tích hẹp

Với những nhà tại thành phố, các gia đình nên lựa chọn mẫu nhà ống dạng nhà cấp 4 có gác lửng 3 phòng ngủ này. Đối với diện tích hẹp thì các nhà cấp 4 này vẫn hoàn toàn đầy đủ tiện nghi và dễ sử dụng.
Mặt bằng nhà cấp 4 có gác lửng được thiết kế rất nhỏ gọn với 3 phòng ngủ, 1 phòng vệ sinh chung. Diện tích sử dụng từ khoảng 8-12m2 đối với các phòng ngủ. Phòng khách nhìn lên gác lửng, qua phòng khách là phòng bếp và nhà vệ sinh, nên thiết kế thêm giếng trời để căn nhà thoáng đãng hơn
Dự trù kinh phí thiết kế, xây dựng mẫu nhà cấp 4 có gác lửng 5×16
Dự trù xây dựng cho mẫu nhà cấp 4 có gác lửng diện tích 5×16, chúng tôi sẽ gử đến bạn dự toán chi phí thi công công trình này với tổng diện tích sàn là 250m2.
Phần thô: 199m2 x 3.200.000 = 636.800.000vnđ (tính theo đơn giá 3.200.000đồng/m2 đối với nhà cấp 4 hiện đại)
Trọn gói: 199m2 x 4.800.000 = 955.200.000vnđ (tính theo đơn giá 5.000.000đồng/m2 đối với nhà cấp 4 hiện đại)
Tuy nhiên đây chỉ là cách tính chi phí xây dựng mẫu nhà cấp 4 gác lửng 5 × 16 mang tính chất tham khảo, đơn vị có bản vẽ thiết kế và khảo sát tổng thể mới có thể tính được giá một cách chi tiết, cụ thể nhất. hoàn thiện chi tiết từng ngôi nhà.
Trên đây là một số mẫu nhà cấp 4 có gác lửng được ưa chuộng hiện nay mà Xây Dựng Số gửi tới bạn. Hy vọng bạn sẽ tìm thấy những ý tưởng cho căn nhà sắp tới của mình!
































