Trước đây, nhà cấp 4 được coi là dành cho những người có thu nhập thấp. Nhưng hiện nay, những mẫu nhà cấp 4 có gác lửng 5x15 trở nên rất phổ biến và là sự lựa chọn đúng đắn của hầu hết các hộ gia đình Việt. Bởi thiết kế này còn mang đến cho gia chủ đầy đủ tiện nghi và kiến trúc hiện đại. Nếu bạn đã có mảnh đất xây dựng 5 × 15 (m2) thì hãy cùng Xây Dựng Số tham khảo nhé!
Tại sao mẫu nhà cấp 4 có gác lửng 5x15 lại được ưa chuộng nhất?
Để lý giải cho mẫu thiết kế nhà cấp 4 có gác lửng 5x15m phổ biến hiện nay, người ta đúc kết bằng câu “nhỏ nhưng có võ”. Mặc dù nó được xây dựng dựa trên kinh phí hạn chế, nó đi kèm với việc bố trí thêm gác lửng. Tuy nhiên, mẫu nhà cấp 4 có gác lửng 5x15m đẹp giá rẻ vẫn chiếm được lòng tin của mọi người bởi:
Việc thiết kế thêm gác lửng không ảnh hưởng đến thiết kế của ngôi nhà. Mà còn tăng diện tích sử dụng, gia chủ có thể tăng diện tích đó lên để làm diện tích để đồ sinh hoạt

Mẫu nhà cấp 4 đẹp có gác lửng 5x15 vẫn đảm bảo yêu cầu về thẩm mỹ
Gác lửng phù hợp với những hộ gia đình có không gian nhỏ cũng như diện tích đất 5x15m Nhà cấp 4 gác lửng thiết kế đơn giản khoa học. Bạn hoàn toàn có thể biến nó thành không gian sống hoặc điểm nhấn của ngôi nhà. Đặc biệt, chi phí xây nhà cấp 4 gác lửng diện tích 5x15m rẻ hơn so với việc gia chủ bỏ túi để xây thêm một tầng nữa cho ngôi nhà.
Cách trang trí gác lửng nhà cấp 4 theo nhiều phong cách khác nhau. Điều này giúp gia chủ tận dụng được sự sáng tạo trong chính ngôi nhà của mình. Bạn có thể tự do thiết kế và trang trí ngôi nhà của mình miễn là bạn hài lòng với thiết kế tổng thể. Thông thường tầng lửng được thiết kế theo một số phong cách nổi bật như: Tân cổ điển, Hiện đại
Đối với những cặp vợ chồng trẻ có mức thu nhập trung bình khá và muốn xây nhà với kinh phí 400 triệu đổ xuống đáp ứng đủ công năng: 1 phòng khách, 2 phòng ngủ, 1 bếp và 1 vệ sinh. Bên cạnh đó, mẫu nhà cấp 4 có gác lửng 5x15m còn phải đảm bảo tính thẩm mỹ, thoáng mát và hiện đại.
Nhà cấp 4 mái thái có gác lửng 5 × 15 có gara
Ngày nay mẫu nhà cấp 4 có gác lửng được thiết kế đơn giản nhưng luôn thể hiện được không gian sống rộng rãi, đầy đủ tiện nghi mang đến sự an nhiên và thoái mái của gia chủ

Việc phối hợp màu sắc cho ngôi nhà luôn được các gia đình trẻ quan tâm, các mẫu nhà cấp 4 thường được phối hợp hài hòa giữa các gam màu trắng, xanh, nâu đẹp mắt. Ngôi nhà luôn tràn ngập ánh sáng tự nhiên với hệ thống cửa kính viền nhôm tạo cảm giác thông thoáng, dễ chịu. Vì là mẫu nhà cấp 4 nên hệ thống mái thái của mẫu nhà cấp 4 được rất nhiều người quan tâm. Mái nhà thường có màu đỏ, xám và đen giúp hài hòa với màu sắc tổng thể của ngôi nhà. Bạn sẽ cảm thấy hòa mình vào thiên nhiên hơn khi có thiết kế sân vườn rộng rãi trước nhà
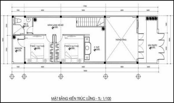
Mặt bằng công năng của mẫu nhà cấp 4 có gác lửng 5x15m
Không gian sử dụng của mẫu nhà cấp 4 có gác lửng 5 × 15 hiện đại. Thiết kế có 3 phòng ngủ, 1 phòng thờ và 2 phòng vệ sinh được chia đều cho không gian tiện ích bên trên và bên dưới. Cầu thang kết hợp giếng trời lấy sáng từ mái xuống thiết kế âm tường, lệch tầng tối ưu không gian. Nội thất phòng ngủ master do vợ chồng anh Tuấn thiết kế có bàn làm việc. Tủ để tivi đầy đủ trong phòng riêng lịch sự rộng gần 14m2. Trên gác lửng của mẫu nhà 1 tầng rưỡi đẹp 5 × 15 thiết kế có phòng thờ rộng 8m2, 2 phòng ngủ con 11m2, phòng vệ sinh chung. Trong đó, phòng ngủ sau của con gái có ban công đón gió mát. Quý khách có thể ngồi uống trà trong phòng thờ có thể nhìn bao quát toàn bộ không gian phòng khách tầng trệt nhờ khoảng không gian thông thoáng bên ngoài tầng lửng..

Bản vẽ mặt bằng công năng mẫu nhà cấp 4 gác lửng hiện đại có gara ngang 5m
Mặt tiền mẫu nhà gác lửng đẹp 5m có ngoại thất sơn trắng với hai cột trụ vuông vắn. Chân tường được ốp bằng đá sọc xám. Tầng trệt 3,8m gác lửng 3,4m. Kiến trúc tương đương với mẫu nhà đẹp 2 tầng mái thái thông thoáng. Trên mẫu trần nhà đẹp 1 tầng có gác lửng 5 × 15 chống nóng. Trần thạch cao cách nhiệt, hệ thống đèn led trang trí và chiếu sáng. Vật liệu khá tốt, cáp quang hiện đại.

Kích thước xây dựng nhà 5×15 cấp 4 có gác lửng 3 phòng ngủ
Những mẫu nhà cấp 4 có gác lửng 5 × 15 là một sự lựa chọn hoàn hảo cho những gia đình nhỏ. Đặc biệt là đối với những gia đình trẻ sống tại TP. Bởi gác lửng là giải pháp tiết kiệm chi phí xây dựng, giúp cuộc sống trở nên tiện lợi hơn. Đặc biệt là khắc phục được nhược điểm của ngôi nhà nhỏ.
Nhà cấp 4 mái thái có gác lửng 5 × 15 hiện đại
Đặc điểm lớn nhất của mẫu nhà cấp 4 mái thái là thiết kế mái dốc. Nội thất trong nhà tùy theo sở thích của gia chủ mà lựa chọn những mẫu mã, kiểu dáng phù hợp. Vì mái thái là kiểu mái được thiết kế cao. Do đó, bạn có thể tận dụng tầng áp mái để làm gác lửng. Nhờ đó gia chủ sẽ tiết kiệm diện tích một cách tối đa. Vì mái thái là kiểu mái được thiết kế cao. Do đó, bạn có thể tận dụng tầng áp mái để làm gác lửng. Điều này sẽ giúp tiết kiệm diện tích tối đa.

Kiến trúc sư với con mắt thẩm mĩ cao, mái thái được sử dụng nhiều giúp mang đến hơi thở hiện đại, mang không khí Châu Âu cho những mẫu nhà cấp 4 gác lửng với chi phí rẻ. Đặc biệt, khả năng thay đổi màu sắc của mẫu mái rất đa dạng nên hoàn toàn có thể chiều lòng gia chủ với bất kỳ xu hướng nào

Thiết kế cầu thang gác lửng với tay vịn gỗ, bên hông cầu thang gia chủ thiết kế đèn trang trí vô cùng đẹp mắt.

Nội thất phòng khách tuy nhỏ nhưng đáp ứng đầy đủ nhu cầu sinh hoạt của gia đình.

Nội thất phòng ngủ nhỏ xinh và ấm áp
Nhà cấp 4 có gác lửng 5x15m mái bằng
Mái bằng thường được thiết kế theo phong cách cổ điển. Với mẫu thiết kế nhà cấp 4 có gác lửng mái bằng 5 × 15, bạn có thể dễ dàng thay đổi phần mái để làm sân vườn xanh mát

Mẫu nhà cấp 4 có gác lửng diện tích 5x15m2 gồm 2 phòng ngủ được thiết kế lấy sáng thông minh xóa tan cảm giác căn nhà nhỏ. Điểm nhấn của mẫu nhà cấp 4 có gác lửng là thiết kế gác lửng cách tân, hiện đại với hệ thống thông gió..

Thiết kế cầu thang dọc nhà giúp tối ưu diện tích không gian. Phòng khách được thiết kế liên thông với phòng bếp mang đến cảm giác thông thoáng cho ngôi nhà

Nội thất phòng bếp đơn giản, tiện nghi, mang hơi thở hiện đại

Thiết kế giếng trời thông minh tạo cảm giác tươi mới cho ngôi nhà nhỏ, hẹp.

Nội thất phòng ngủ trang nhã,tiện nghi. Gia chủ thiết kế cửa sổ phòng ngủ lớn giúp lưu thông không khí trong nhà tốt hơn
Nhà cấp 4 có gác lửng 5 × 15 thiết kế mái thái
Với mẫu nhà cấp 4 có gác lửng diện tích 5 × 15, thiết kế mái chéo sẽ khiến cho ngôi nhà cấp 4 trở nên mới mẻ và trẻ trung hơn. Đặc điểm của phần mái này sẽ chi phối phong cách thiết kế bên dưới. Mái chéo sẽ có phần mái cao hơn và phần mái thấp hơn. Do đó, bạn có thể linh hoạt trong khi thiết kế để tận dụng hết diện tích bên dưới.

Kiểu mái này hiện đang được rất nhiều gia chủ yêu thích bởi không chỉ giúp ngôi nhà cấp 4 này trở nên cao ráo hơn mà còn đảm bảo độ thoáng mát vào mùa hè và tránh ẩm ướt, thấm nước

Không gian phòng khách

Nội thất phòng bếp, với vách kính thiết kế, mọi ngóc ngách trong nhà đều nhận được đầy đủ ánh sáng tự nhiên

Thiết kế cầu thang ngay cạnh phòng khách, với thiết kế vách ngăn tạo điểm nhấn cho phòng khách thêm hiện đại.
Nhà cấp 4 có gác lửng 5×15 mái tôn
Mẫu nhà cấp 4 gác lửng 5 × 15 mái tôn là một trong những kiểu nhà cấp 4 đơn giản, dễ xây dựng và tiết kiệm chi phí. Nó phù hợp cho các cặp vợ chồng trẻ, hộ gia đình có thu nhập thấp

Tuy nhiên, đặc điểm của mái tôn là khả năng chống nóng kém. Với gác lửng bạn nên bố trí kịch trần để tạo sự thông thoáng cho ngôi nhà.
Dự trù kinh phí thiết kế, xây dựng mẫu nhà cấp 4 có gác lửng 5×16
Đơn giá xây nhà trọn gói 4.500.000đ / m2 - 6 tr / m2 • Diện tích sử dụng kể cả ban công tính 100% diện tích.
- MBTCT sân thượng: 30% diện tích.
- Mái ngói = 80% mặt bằng
- Sân thượng có mái che và quầy bar trang trí: tính 60% diện tích.
- Sân trước: 50% diện tích.
- Sân sau: 30% diện tích.
- Nền 40% diện tích.
Đơn giá xây hoàn thiện phần thô + nhân công: 2,8tr - 3,2tr / m2.
Lưu ý: Trên đây là bảng báo giá các mẫu nhà cấp 4 gác lửng cho chung cư phổ biến hiện nay chỉ mang tính chất tham khảo. Tùy theo công trình thực tế, diện tích xây dựng, vị trí địa lý, vật liệu xây dựng,… sẽ có giá khác nhau.
Mẫu nhà cấp 4 3 phòng ngủ 5 × 15 có gác lửng này đều là giải pháp hữu hiệu giúp bạn nới rộng không gian. Giúp gia chủ bố trí công năng một cách hiệu quả, không những thế nó còn mang đến tính thẩm mỹ cho cả không gian ngôi nhà. Cách hộ gia đình trẻ ngày thường có xu hướng lựa chọn những mẫu nhà cấp 4 5 × 15 có gác lửng để tận dụng không gian sống thoải mái, được xây dựng với chi phí rẻ.
Những mẫu nhà cấp 4 gác lửng 5 × 15 đẹp sẽ là gợi ý rất thú vị cho gia chủ có nhu cầu tìm kiếm thi công năm 2024. Trên đây là một số mẫu nhà cấp 4 có gác lửng được ưa chuộng nhất hiện nay mà https://xaydungso.vn/gửi đến bạn. Hi vọng bạn sẽ tìm được ý tưởng cho ngôi nhà sắp tới của mình!
































