Ngôi nhà hình chữ L được tạo ra để phù hợp với diện tích vốn có của ngôi nhà. Với mẫu nhà này, gia chủ vừa có thể tận dụng được tối đa diện tích đất, vừa giúp ngôi nhà trở nên thông thoáng hơn. Trong bài viết này, Xây Dựng Số mang đến cho bạn những sự lựa chọn hoàn hảo cho mẫu nhà cấp 4 chữ L 2 phòng ngủ. Hãy cùng chúng tôi tham khảo nhé!
Nhà cấp 4 chữ L là gì?
Mẫu nhà cấp 4 chữ L là công trình mô phỏng hình chữ L. Là mẫu nhà có thiết kế chiều cao xây dựng dưới 1 tầng và được xây dựng trên diện tích dưới 1000 m2. Nhà cấp 4 đang là giải pháp thiết kế được nhiều gia chủ lựa chọn bởi nó có nhiều ưu điểm.

Lợi ích khi thiết kế nhà cấp 4 hình chữ L
- Qua những hình ảnh thiết kế trên chúng ta có thể thấy những mẫu nhà cấp 4 hình chữ L có ưu điểm thiết kế mặt tiền ngoại thất tạo nên vẻ đẹp độc đáo còn hình chữ L như tạo nên một ngôi nhà 2 mặt tiền. kết hợp các đường nét thiết kế mang đến sự phản chiếu sang trọng ấn tượng.
- Mặt khác, ưu điểm vượt trội của ngôi nhà hình chữ L là tận dụng được khoảng góc tạo thành khoảng sân rất tự nhiên làm khuôn viên để xe, sân chơi cho trẻ nhỏ mà vẫn đảm bảo tính thẩm mỹ kiến trúc nhất định.
- Việc phân chia thiết kế nội thất bên trong cũng đơn giản và dễ dàng hơn so với các mẫu Nhà cấp 4 đơn giản khác, gia chủ có thể thiết kế các phòng chức năng riêng biệt mà vẫn đảm bảo tính thống nhất thiết thực của toàn bộ không gian nội thất nhằm 'giúp nhu cầu sinh hoạt được nghỉ ngơi. thoải mái.
- Nhà hình chữ L có thể phù hợp với nhiều ô đất khác nhau dù là hình vuông hay hình chữ nhật. Và dù ở thành thị hay ngoại thành, nông thôn thì thiết kế kiến trúc này luôn rất thích hợp.
- Một trong những ưu điểm nổi bật của mẫu nhà cấp 4 chữ l là thời gian thiết kế và thi công khá nhanh, chi phí xây dựng rẻ hơn so với các mẫu nhà cao tầng khác nhưng vẫn đảm bảo không gian sống tiện nghi. Mái che rất phù hợp với những gia đình lớn tuổi vì hạn chế leo cầu thang.
Khi xây nhà cấp 4 chữ L cần lưu ý những điều gì?
Ngoài vẻ đẹp thẩm mỹ hay tính khoa học về công năng thì yếu tố phong thủy vẫn được nhiều người quan tâm trong thiết kế xây dựng nhà ngày nay vì nó phần nào ảnh hưởng đến tài lộc, vượng khí cũng như sự may mắn, thịnh vượng của mọi thành viên trong gia đình.

Các mẫu thiết kế nhà cấp 4 chữ L có nhiều ưu điểm vượt trội về mặt thẩm mỹ và công năng, tuy nhiên xét về yếu tố phong thủy thì kiểu nhà hình chữ L lại bộc lộ những khuyết điểm, mất cân đối về hình thức sẽ hạn chế nguồn vượng khí. vượng khí, cơ hội phát tài phát lộc cho chủ nhân.
Đặc biệt có hình dạng giống như một con dao mà vị trí đắc lực nằm trên lưỡi dao. Nếu sắp xếp không phù hợp sẽ gây ảnh hưởng không tốt đến các thành viên trong gia đình. Đặc biệt, sẽ ảnh hưởng không tốt đến vấn đề cưới hỏi nếu phòng ngủ, phòng bếp hay phòng ăn của vợ chồng đặt ở cánh trên của chữ L…
Vì vậy, khi xây nhà cấp 4 hình chữ L bạn cần lưu ý những điều sau để hóa giải phong thủy xấu kể trên.
- Trong trường hợp phòng ngủ, phòng bếp và phòng ăn nằm ở vị trí hình chữ L có nghĩa là hình lưỡi dao thì nên treo gương trước những vị trí này để loại bỏ thế hình chữ L trong nhà. Hoặc bạn có thể treo gương ở bức tường bên ngoài của cánh chữ L.
- Mẫu nhà cấp 4 có thiết kế hình chữ L các góc hình chữ L lúc này sẽ giống như một con dao nằm ngang, buồng nên đặt ở vị trí cánh hẹp hay còn được gọi với cái tên là cán dao. Nó sẽ tăng thêm sinh khí và giúp gia đình thêm yên ấm.
- Đặc biệt nếu nhà cấp 4 có phòng ngủ, phòng bếp, phòng làm việc ở phương vị đao, hãy hóa giải bằng cách treo gương trên tường đối diện những vị trí này, giúp đưa những điều này ra ngoài an toàn.
Ngoài ra, có thể hóa giải nhà hình chữ L bằng cách đặt ban thờ ở cửa để tạo thế cân bằng hoặc thiết kế lối đi bằng đá, gạch, xi măng từ ngoài đường thành hình chữ V, tận dụng hiệu quả những cơ hội may mắn vào nhà. Trang Chủ.
Với những hình ảnh về mẫu thiết kế nhà đẹp hình chữ L cùng với những lợi ích và lưu ý khi xây nhà cấp 4, chúng tôi mong rằng sẽ góp thêm một số thông tin hữu ích giúp các bạn dễ dàng lên ý tưởng cho ngôi nhà. kinh nghiệm khi xây nhà.
Gia chủ nếu có ý định xây nhà cấp 4 thì hãy tham khảo những mẫu thiết kế nhà cấp 4 chữ L với kiểu dáng, mẫu mã đa dạng hay sự cộng hưởng màu sắc vô cùng khác biệt sau đây. Cùng là hình chữ L nhưng mỗi ngôi nhà được thiết kế với những ý tưởng riêng tùy theo diện tích và sở thích của gia chủ để làm nên một mẫu nhà đẹp.
Nhà cấp 4 chữ L có 2 phòng ngủ mái thái

Mẫu thiết kế nhà đẹp hình chữ L có khoảng sân được tận dụng làm nơi thư giãn, ăn uống thoải mái bên ngoài cho các thành viên trong gia đình. Phong cách hiện đại tàn bạo với chất liệu gỗ mộc mạc kết hợp vẻ đẹp tươi mới của khu vườn ngoài trời tạo nên một không gian thư giãn đồng quê tuyệt vời.

Những ngôi nhà hình chữ L được thiết kế góc sân để xe dễ dàng, mặt khác tạo cảm giác thông thoáng, đễ chịu với hệ thống cửa kính để dễ dàng đón ánh sáng từ ngoài vào trong. Mẫu nhà cấp 4 đẹp sử dụng mái ngói đỏ tươi nổi bật bởi những đường nét phào chỉ Việt đơn giản.

Mẫu nhà chữ L nông thôn mái thái sang trọng, một bên được sử dụng trồng nhiều cây xanh và cửa kính giúp ngôi nhà nhỏ trở nên thoáng mát hơn rất nhiều. Với chi phí xây dựng ít, nó là sự lựa chọn tuyệt vời dành cho bạn.

Với thiết kế hình chữ L tạo nên mặt tiền đẹp, kiến trúc sư cũng rất khéo léo khi tạo những đường sọc ngang trên tường và sự thanh thoát của phần mái giúp cho mẫu nhà cấp 4 thêm phần tinh tế. Với diện tích đất rộng, sân, ngõ trồng cây xanh rộng thoải mái.
Nhà cấp 4 chữ L 2 phòng ngủ theo phong cách đơn giản

Các mẫu thiết kế nhà cấp 4 theo phong cách đơn giản,tinh tế hình chữ L đẹp được xây dựng trên nền cao giúp ngôi nhà trở nên cao ráo và thông thoáng hơn. Ngoài ra, hệ thống cây xanh, mái che, cửa kính tạo điều kiện cho quá trình trao đổi không khí không lo nóng bức rất phù hợp với vùng đất miền Trung.
Mẫu nhà cấp 4 mái thái hình chữ L cân đối và nổi bật với gam màu vàng nhạt kết hợp với mái ngói xanh đậm. Hệ thống cửa được làm bằng gỗ và kính giúp ngôi nhà thông thoáng, đón nhiều ánh sáng.
Mặt bằng nhà cấp 4 chữ L

Nhà cấp 4 chữ L mái thái, 2 phòng ngủ, 1 phòng thờ.
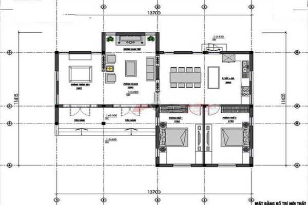
Mẫu nhà cấp 4 hình chữ L 2 phòng ngủ được thiết kế đơn giản nhưng khoa học, đáp ứng được nhu cầu sử dụng của các thành viên trong gia đình. Điểm đặc biệt của ngôi nhà cấp 4 này là có 2 cửa chính, 1 cửa vào phòng khách, 1 cửa còn lại vào phòng thờ.

Mặt bằng nhà cấp 4 chữ L

Nhà cấp 4 chữ L đẹp 2 phòng ngủ hiện đại
Ngôi nhà cấp 4 hình chữ L nổi bật bởi bức tranh tường trắng tinh tế kết hợp với hệ cửa gạch nâu, bậc cao và mái dốc tạo ấn tượng về độ cao và sự sang trọng.
Mặt bằng nhà cấp 4 chữ L gồm phòng khách với 2 cửa chính rộng rãi, khu bếp và phòng ăn đầy đủ tiện nghi và 2 phòng ngủ đảm bảo sự riêng tư.

Mặt bằng nhà cấp 4 chữ L

Nhà cấp 4 chữ L 2 phòng ngủ theo phong cách biệt thự nhà vườn
Trước đây các mẫu nhà cấp 4 thường được xây dựng theo kiểu 3 gian để tạo không gian chung cho việc nghỉ ngơi, thư giãn thì ngày nay các mẫu nhà cấp 4 đẹp được thiết kế sáng tạo đáp ứng được công năng trong quá trình sáng tạo. Các phòng ngủ đầy đủ sự riêng tư và đảm bảo quá trình sinh hoạt thoải mái, tiện lợi nên các mẫu phòng ngủ cấp 4 chữ L 2 phòng ngủ được nhiều gia đình trẻ ưa chuộng.

Mẫu nhà cấp 4 đẹp thiết kế hiện đại như một biệt thự vườn với những hàng cây đặc biệt xung quanh cửa kính giúp giao thoa với ngoài trời tốt hơn. Phần mái với phần tà dài hình chữ A giúp nước thoát nhanh chống thấm.

Mái thái hình chữ L nhưng màu đen hiện đại, với gam màu trắng đơn giản làm chủ đạo, kết hợp mái thái nâu và sân vườn thoáng mát bên ngoài, không gian bên trong được trang bị đầy đủ tiện nghi mang đến một không gian sống và nghỉ ngơi yên bình.
Nhà cấp 4 mái thái chữ L mặt bằng
Với mẫu nhà cấp 4 chữ L mái bằng hiện đại mang đến vẻ vuông vắn, khỏe khoắn phù hợp với xu hướng kiến trúc hiện nay, mặt khác so với mái thái thì mái bằng sẽ tiết kiệm chi phí xây dựng hơn.

Mẫu nhà cấp 4 chữ L mái vuông phong cách hiện đại nhưng không hề đơn điệu khi được kiến trúc sư thiết kế những khung cửa độc đáo, thêm vào đó là sự kết hợp màu sắc khéo léo giữa gam màu xám, trắng và gỗ tạo nên nét riêng biệt và độc đáo.

Mẫu thiết kế nhà cấp 4 chữ L mái bằng phù hợp với những gia chủ muốn thay đổi thiết kế nhà cấp 4 mái thái truyền thống.
Trên đây là một số mẫu nhà cấp 4 có gác lửng được ưa chuộng nhất hiện nay mà Công Ty Xây Dựng Số gửi đến các bạn. Hi vọng bạn sẽ tìm được ý tưởng cho ngôi nhà sắp tới của mình!
































