Ngày nay, nhiều hộ gia đình có mảnh đất 2 mặt tiền cần tìm những mẫu thiết kế nhà cấp 4 mái thái có 2 mặt tiền đẹp, độc đáo với chi phí xây dựng hợp lý. Những mẫu nhà đẹp giới thiệu dưới đây sẽ cung cấp cho bạn những gợi ý tuyệt vời giúp bạn biến ngôi nhà trở thành ý tưởng độc đáo trong mơ của mình.
Nói đến nhà cấp 4 có lẽ không ai còn xa lạ, bởi đây là kiểu kiến trúc của những ngôi nhà Việt Nam chúng ta thường xuất hiện ở các vùng quê. Ngày nay với mức sống của người dân ngày càng được nâng cao, các mẫu nhà cao tầng ra đời nhưng mẫu nhà cấp 4 vẫn chiếm được sự ưu ái của nhiều chủ đầu tư. Bởi vẻ đẹp truyền thống của mẫu nhà cấp 4 đã vượt qua những hàng rào tre ở nông thôn và xuất hiện ở các thành phố lớn với diện mạo mới độc đáo nhưng vẫn phảng phất đâu đó tinh thần của mẫu nhà truyền thống.

Nhà cấp 4 mái thái 2 mặt tiền là gì?
Nhà 2 Mặt tiền là nhà nằm ở góc 2 mặt đường giao nhau. Chính vì vậy, khi nhắc đến hai mặt tiền đẹp người ta nghĩ ngay đến những căn nhà mặt phố, nhà lô góc. Do vị trí là nơi giao nhau giữa 2 con phố nên nhà 2 mặt tiền thường được coi là vị trí đẹp nhất phố rất tiện kinh doanh.
Ưu điểm của các mẫu nhà mái thái có 2 mặt tiền đẹp
Trái ngược với mẫu nhà hình ống có phần tường bên ngoài hẹp và sâu, mẫu nhà hình ống này chỉ có một mặt thoáng, các mặt còn lại tiếp giáp với nhà bên .... Mẫu nhà đẹp 2 mặt thoáng chiếm ưu thế. Những mẫu này không chỉ mang đến sự thông thoáng mà còn có thể cho ánh sáng tự nhiên vào nhà. Mẫu nhà 2 tầng tinh tế cũng có thể dễ dàng thể hiện được những đường nét, hình khối kiến trúc độc đáo, nổi bật trong quần thể. Với vẻ ngoài gần như nhân bản, các kiến trúc sư có thể sử dụng vô số ý tưởng độc đáo khác nhau để thỏa sức sáng tạo. Do đó nhà cấp 4 mái thái 2 mặt tiền luôn là sự lựa chọn của những hộ gia đình vừa và khá
Nhà cấp 4 mái thái 2 mặt tiền với diện tích sử dụng lớn
Mẫu đầu tiên có vẻ ngoài bề thế, trang nhã, uy nghiêm và đã thu hút sự chú ý của mọi người ngay từ đầu. Mẫu nhà cấp 4 mái thái rộng và 2 mái phụ ở sảnh chính giúp ngôi nhà trở nên cao ráo và bề thế hơn. Đồng thời, mái thái giúp ngôi nhà mát mẻ, thông thoáng vào mùa hè. Xung quanh nhà được thiết kế các luống trồng cây, hoa kiểng.
Khi sự đơn giản được đánh giá cao, hãy chọn những màu tối trung tính. Chân tường, mái và tường bên đều có màu đen. Sử dụng màu vàng nhạt cho các bức tường trắng. Sự kết hợp màu sắc này mang đến cho ngôi nhà vẻ đẹp mộc mạc, nhẹ nhàng, lịch sự nhưng không hề đơn điệu, nhàm chán.

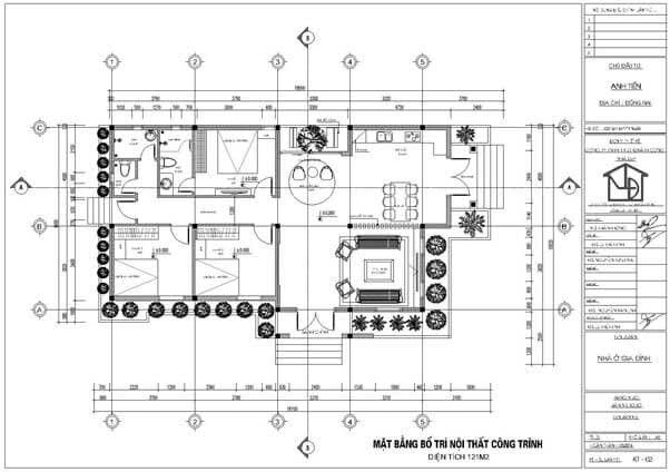
Mặt bằng công năng của nhà cấp 4 mái thái có 2 mặt tiền
Ngôi nhà 1 tầng có đầy đủ các công năng cần thiết. Bước vào sảnh, ngôi nhà được chia thành hai phần. Bên phải là phòng khách và bếp. Có một cửa phụ lớn (cửa 2) dẫn vào phòng ăn. Cửa trước là không gian sinh hoạt chung với lò sưởi. Có 3 phòng ngủ cùng kích thước ở bên trái. Phòng ngủ riêng có phòng tắm riêng và phòng vệ sinh chung ở phía sau nhà.
Mẫu nhà cấp 4 mái thái 2 mặt tiền này không hề đồ sộ và có nhiều hoa văn trang trí tinh tế như những mẫu nhà cao tầng. Nó toát lên vẻ sang trọng, hiện đại, đáp ứng nhu cầu sử dụng của các thành viên trong gia đình một cách thoải mái nhất.

Nhà cấp 4 mái thái 2 mặt tiền cuốn hút nhất
Mẫu nhà cấp 4 mái thái dưới đây không khác biệt thự là mấy. Biệt thự giả kiến trúc hiển nhiên được triển khai theo mô hình gia đình. Thay vì sử dụng những cột vuông thông thường trước sảnh, kiến trúc sư đã bố trí 4 cột trụ nguyên khối dưới chân cột và ốp gạch nâu sẫm tạo thành thế vững chãi. Trụ tròn không chỉ có thể đảm nhận nhiệm vụ giữ nguyên kết cấu chịu lực chung củamẫu nhà mà còn tăng tính thẩm mỹ.

Chủ nhà có thể ốp đá và ốp chân tường có màu vàng nâu nhạt. Các lối đi thường chỉ được thụt vào trên những mảng tường trống để mang lại hiệu quả thẩm mỹ cao cho ngôi nhà. Ngoài ra, phần mái ngang bồng bềnh tạo nên một thiết kế nổi bật bắt mắt, mang đến một thiết kế đa chiều và bất đối xứng chỉ ở hai khía cạnh. Màu xanh tím than mới thay thế cho màu ngói đỏ truyền thống, đảm bảo độ tươi và giữ màu lâu hơn.
Mẫu phòng trọ cấp 4 mái thái được thiết kế 2 sảnh chính nên không gian rất thoáng và khoa học. Từ sảnh vào phòng khách. Tiếp đến là phòng bếp, phòng khách được ngăn cách với phòng khách bằng vách ngăn gỗ đẹp.

Dựa vào bản thiết kế mặt bằng nhà cấp 4 kiểu thái có 2 mặt bằng. Chủ nhà có thể bố trí theo nhiều cách khách nhau
Nếu khu vực nấu nướng được thiết kế trong góc và gần với phòng khách. Khu vực bàn ăn được thiết kế gần sảnh phụ. Thiết kế này vừa thông thoáng vừa tiện dụng là sự lựa chọn tốt nhất cho những ngôi nhà 2 mặt tiền.
Từ gian giữa, tiếp giáp phòng khách và phòng ăn, hành lang được cải tạo thành 3 phòng ngủ. Phòng ngủ chính với phòng vệ sinh riêng được thiết kế lùi về phía sau là nơi tiếp giáp giữa bàn ăn và sảnh phụ. 2 phòng ngủ còn lại được thiết kế hướng vào phía trong căn góc.
Có phòng tắm chung giữa hai phòng để tạo thêm sự thoải mái. Cách bố trí không gian thông minh đảm bảo các thành viên có không gian riêng tư dù ở trên cùng một tầng.
Nhà cấp 4 mái thái 2 mặt tiền theo phong cách cổ điển
Đây là mẫu thiết kế nhà ống cấp 4 có gác lửng 2 mặt tiền trên diện tích xây dựng 200m2, kinh phí xây dựng dự kiến khoảng 600-700 triệu đồng. Hôm nay là mẫu nhà cấp 4 gác lửng đẹp nhất.
Với việc sử dụng vận dụng linh hoạt trong mẫu nhà cấp 4 mái ngói đỏ tươi được sử dụng cân đối không gian trong quá trình cân đối diện tích và tổ chức mặt bằng bên trong nên phong cách của mẫu nhà cấp 4 mái thái 2 tầng ngoại thất này vẫn được giữ nguyên. Ngoài ra, trong số những nhà tiên phong được truyền từ thế hệ này sang thế hệ khác tại Việt Nam, công nghệ làm nhà đã có những bước đột phá về công nghệ, phần sáng tạo của nó có nhiều đặc điểm nổi bật nên công năng của ngoại thất đa chức năng mang tính nhân văn và truyền thống

Ngôi nhà áp dụng thiết kế kiến trúc hiện đại với một số phong cách tân cổ điển. Nói chung là hàng thủ công đẹp và mềm. Tường nhà được sơn tông màu trắng tinh khôi và trang nhã. Thêm những mái ngói đỏ xếp lớp tạo sự trang trí và thu hút mọi ánh nhìn.
Hệ thống cửa kính cường lực và khung gỗ mộc mạc giúp ngôi nhà trở nên bắt mắt và thoáng mát hơn. Đi kèm với đó là điểm nhấn ấn tượng, đó là sảnh mái vòm cuốn sang một bên khiến bạn khó rời mắt.
Mẫu nhà vườn cấp 4 đẹp 2 mặt tiền này mang phong cách tân cổ điển nhưng cốt cách nhất chính là sự chiêm nghiệm và tương tác cao giữa con người với cảnh vật thiên nhiên. Hệ sinh thái xung quanh ngôi nhà tràn đầy sức sống, không gian sân vườn tràn đầy sức sống, nắng gió hòa cùng đất trời, con người như được trở về với thiên nhiên trong lành là điều mà gia chủ có được sau khi ngôi nhà được xây dựng
Sự nhẹ nhàng, thân thiện của mẫu nhà cấp 4 đẹp này là hiện thân của nhiều yếu tố khác nhau của nghệ thuật kiến trúc nhiệt đới quen thuộc nhưng khi được bố trí và sắp xếp hài hòa vẫn toát lên vẻ bề thế.
Mặt bằng công năng của nhà cấp 4 mái thái có 2 mặt tiền
Tầng 1 của ngôi nhà bao gồm phòng khách thông giữa chính và công trình phụ. Có một phòng ăn, ngăn nắp và một bàn ăn lớn. Bên cạnh là phòng ngủ. Ngoài ra còn có đủ không gian ở phía sau của ngôi nhà cho một sân chơi nhỏ.

Tầng lửng của dinh thự sang trọng này có thêm không gian chung và 2 phòng ngủ. Phòng vệ sinh ở tầng 2 được bố trí trên tầng 2 đảm bảo sự thoải mái cho gia đình.

Mặt bằng tầng 2 được bố trí gồm 1 sảnh, 2 phòng ngủ có nhà vệ sinh, một nhà vệ sinh riêng và 1 phòng khách tiện lợi cho sinh hoạt của mọi người trong gia đình.
Trên đây là một số mẫu nhà cấp 4 có gác lửng được ưa chuộng nhất hiện nay mà Xây Dựng Số gửi đến các bạn. Hi vọng bạn sẽ tìm được ý tưởng cho ngôi nhà sắp tới của mình!
































